226,900,000 Ft
600,000 €
- 133m²
- 4 Rooms
A BALATON KÖRNYÉKÉNEK ELIT OTTHONA – CSAK AZOKNAK, AKIK NEM KÉRNEK A KÖZÉPSZERŰBŐL
Van a piacon sok új építésű ház.
És van EZ – amelyet nem lehet összehasonlítani semmivel, ami most elérhető.
Ez NEM egy „szép ingatlan”.
Ez egy presztízsnyilatkozat, egy tudatos döntés arról, hogy Ön és családja a minőség, a kényelem és az értékállóság csúcsát választja.
Ez a ház nem követi a trendeket – ez maga a trend.
A 133 m²-es két szintes luxusotthon olyan műszaki tartalommal, anyaghasználattal és térélménnyel készült, amelyet csak azok értékelnek igazán, akik már megtapasztalták a valódi minőséget – és többé nem hajlandók kevesebbel beérni.
A 717 m²-es telek, a 52 m²-es üvegkorlátos tetőterasz, a 3 fürdőszoba, a monumentalitást sugárzó amerikai konyhás nappali, valamint a kompromisszummentes gépészet olyan együttállást hoz létre, amellyel ez az ingatlan azonnal kilóg a mezőnyből.
És a hab a tortán: a Balaton 800 méterre fekszik.
Ezt a luxust nem kell megvenni – elég megélni.
MIÉRT TARTOZIK A FELSŐ KATEGÓRIÁHOZ EZ A HÁZ?
Mert ott, ahol mások spórolnak, itt hozzátesznek.
Ahol mások „megfelelőt” kínálnak, itt kivételeset kap.
Déli tájolás – természetes fényben úszó, exkluzív terek
Háromrétegű, hangszigetelt prémium nyílászárók – teljes csend és intimitás
A legmodernebb Bosch hőszivattyús rendszer – hosszú távú megtérüléssel
Energiaminőség, amely ma extra, holnap alap – Ön pedig előrébb jár mindenkinél
800 méterre a Balaton – életstílus, amit a legtöbben csak irigyelnek
Fonyód fejlődő, felértékelődő, elit hangulatú övezete
A HÁZ, AMELY MEGMUTATJA, HOGYAN KELL JÓL ÉLNI
133 m² kifinomult lakótér
Amerikai konyhás nappali – a valódi élettér központja
3 különálló hálószoba – privát élettér mindenkinek
3 prémium fürdőszoba – kényelem sorban állás nélkül
16 m² fedett terasz – estékre, beszélgetésekre, meghitt pillanatokra
52 m² tetőterasz – ahol a panoráma és a dizájn találkozik
Rendezett, tágas kert
Térkövezett beálló 2–3 autó számára
MŰSZAKI TARTALOM, AMI KÓDOLVA VAN A PRÉMIUMBA.
Itt nincs „jó lesz az úgy”.
Itt minden elemet úgy terveztek, hogy időtálló, luxusszintű és jövőbiztos legyen.
Bosch hőszivattyú
Padlófűtés + fan-coil egységek
H-tarifás mérő
20–30 cm professzionális hőszigetelés
Monolit vasbeton födém
Kömmerling, háromrétegű nyílászárók elektromos redőnnyel
Tömörfa lépcső
Prémium vinyl melegburkolat
Nagyformátumú, elegáns kerámialapok
EZ AZ INGATLAN AZOKÉ, AKIK DÖNTENEK – NEM AZOKÉ, AKIK VÁRNAK
Az ilyen kategóriájú házakat nem „nézegetik”.
Elviszik.
Ez az otthon annak készült, aki szeret előrébb járni a többieknél.
Annak, aki nem kér a középszerű megoldásokból.
Annak, aki a családjának és önmagának is a legjobbat választja.
Ha Ön közéjük tartozik – akkor ez a ház Önre vár.
Van a piacon sok új építésű ház.
És van EZ – amelyet nem lehet összehasonlítani semmivel, ami most elérhető.
Ez NEM egy „szép ingatlan”.
Ez egy presztízsnyilatkozat, egy tudatos döntés arról, hogy Ön és családja a minőség, a kényelem és az értékállóság csúcsát választja.
Ez a ház nem követi a trendeket – ez maga a trend.
A 133 m²-es két szintes luxusotthon olyan műszaki tartalommal, anyaghasználattal és térélménnyel készült, amelyet csak azok értékelnek igazán, akik már megtapasztalták a valódi minőséget – és többé nem hajlandók kevesebbel beérni.
A 717 m²-es telek, a 52 m²-es üvegkorlátos tetőterasz, a 3 fürdőszoba, a monumentalitást sugárzó amerikai konyhás nappali, valamint a kompromisszummentes gépészet olyan együttállást hoz létre, amellyel ez az ingatlan azonnal kilóg a mezőnyből.
És a hab a tortán: a Balaton 800 méterre fekszik.
Ezt a luxust nem kell megvenni – elég megélni.
MIÉRT TARTOZIK A FELSŐ KATEGÓRIÁHOZ EZ A HÁZ?
Mert ott, ahol mások spórolnak, itt hozzátesznek.
Ahol mások „megfelelőt” kínálnak, itt kivételeset kap.
Déli tájolás – természetes fényben úszó, exkluzív terek
Háromrétegű, hangszigetelt prémium nyílászárók – teljes csend és intimitás
A legmodernebb Bosch hőszivattyús rendszer – hosszú távú megtérüléssel
Energiaminőség, amely ma extra, holnap alap – Ön pedig előrébb jár mindenkinél
800 méterre a Balaton – életstílus, amit a legtöbben csak irigyelnek
Fonyód fejlődő, felértékelődő, elit hangulatú övezete
A HÁZ, AMELY MEGMUTATJA, HOGYAN KELL JÓL ÉLNI
133 m² kifinomult lakótér
Amerikai konyhás nappali – a valódi élettér központja
3 különálló hálószoba – privát élettér mindenkinek
3 prémium fürdőszoba – kényelem sorban állás nélkül
16 m² fedett terasz – estékre, beszélgetésekre, meghitt pillanatokra
52 m² tetőterasz – ahol a panoráma és a dizájn találkozik
Rendezett, tágas kert
Térkövezett beálló 2–3 autó számára
MŰSZAKI TARTALOM, AMI KÓDOLVA VAN A PRÉMIUMBA.
Itt nincs „jó lesz az úgy”.
Itt minden elemet úgy terveztek, hogy időtálló, luxusszintű és jövőbiztos legyen.
Bosch hőszivattyú
Padlófűtés + fan-coil egységek
H-tarifás mérő
20–30 cm professzionális hőszigetelés
Monolit vasbeton födém
Kömmerling, háromrétegű nyílászárók elektromos redőnnyel
Tömörfa lépcső
Prémium vinyl melegburkolat
Nagyformátumú, elegáns kerámialapok
EZ AZ INGATLAN AZOKÉ, AKIK DÖNTENEK – NEM AZOKÉ, AKIK VÁRNAK
Az ilyen kategóriájú házakat nem „nézegetik”.
Elviszik.
Ez az otthon annak készült, aki szeret előrébb járni a többieknél.
Annak, aki nem kér a középszerű megoldásokból.
Annak, aki a családjának és önmagának is a legjobbat választja.
Ha Ön közéjük tartozik – akkor ez a ház Önre vár.
Registration Number
U0049085
Property Details
Sales
for sale
Legal Status
new
Character
house
Construction Method
brick
Net Size
133 m²
Gross Size
149.4 m²
Plot Size
717 m²
Size of Terrace / Balcony
52.2 m²
Garden Size
717 m²
Heating
heat pump
Ceiling Height
290 cm
Number of Levels Within the Property
1
Orientation
South-West
View
river or lake view
Condition
Excellent
Condition of Facade
Excellent
Neighborhood
quiet, good transport, green, central
Year of Construction
2026
Number of Bathrooms
3
Condominium Garden
yes
Water
Available
Gas
On the street
Electricity
Available
Sewer
Available
Multi-Generational
yes
Distance to Waterfront
more than 500 meters
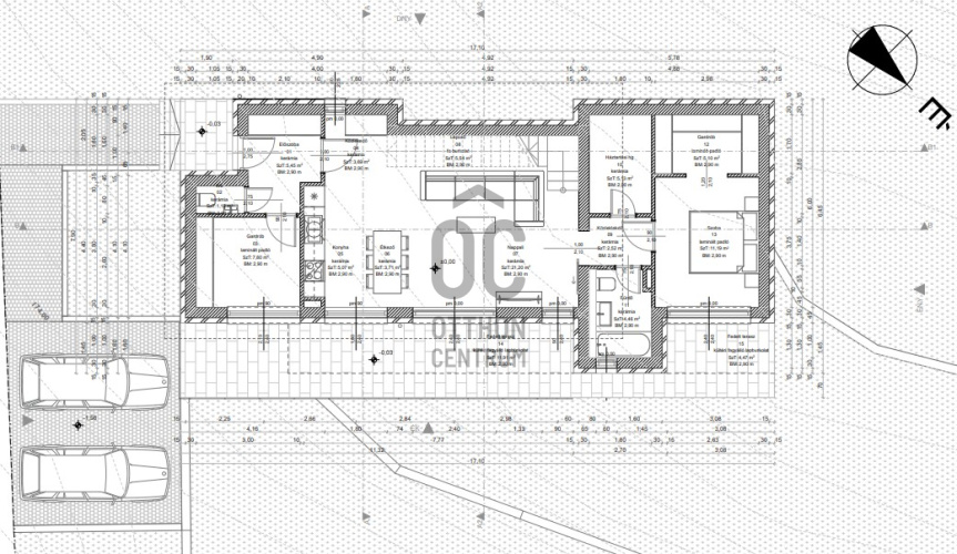
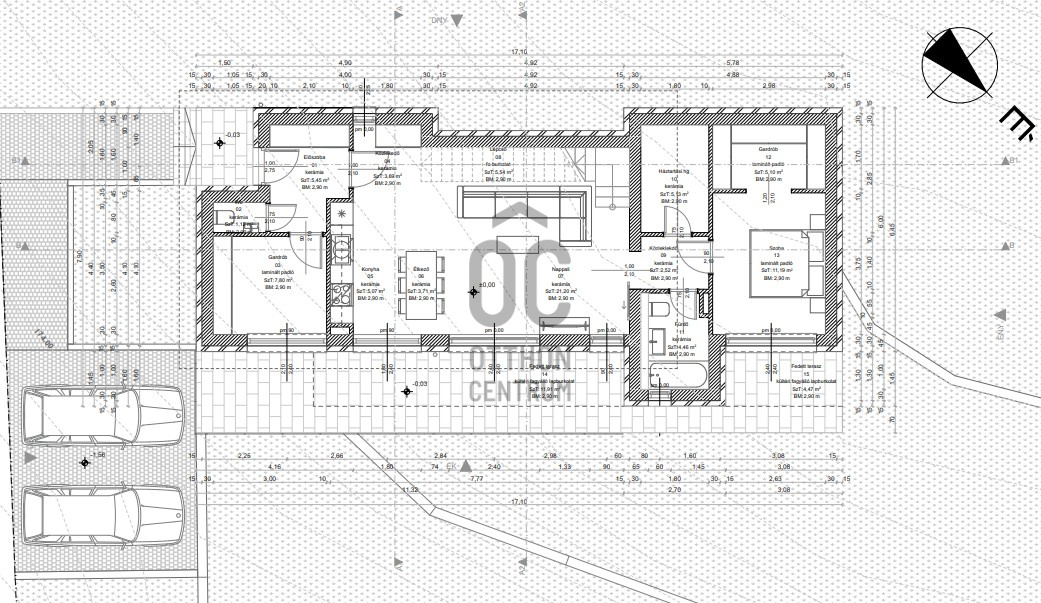
Rooms
entryway
5.45 m²
toilet-washbasin
1.12 m²
wardrobe
7.8 m²
corridor
3.69 m²
kitchen
5.07 m²
dining room
3.71 m²
living room
21.2 m²
staircase
5.54 m²
corridor
2.52 m²
utility room
5.13 m²
bathroom-toilet
4.46 m²
bedroom
11.19 m²
wardrobe
5.1 m²
terrace
11.91 m²
terrace
4.47 m²
corridor
5.6 m²
bathroom-toilet
5.7 m²
bedroom
14.42 m²
bathroom-toilet
5.04 m²
bedroom
20.33 m²
values.realestate.szobatipus.49
52.24 m²
Dienes László
Credit Expert