152,000,000 Ft
401,000 €
- 88.4m²
- 5 Rooms
ÚJÉPÍTÉSŰ, HŰSZIVATTYÚS IKERHÁZ MINDKÉT LAKÁSA ELADÓ!
ÁLLAMI TÁMOGATÁS, (2,6 M Ft)
ÁFA VISSZAIGÉNYLÉS (5%)
ILLETÉKMENTESSÉG (4 %)
BABAVÁRÓ ÉS TÁMOGATOTT CSOK HITEL.
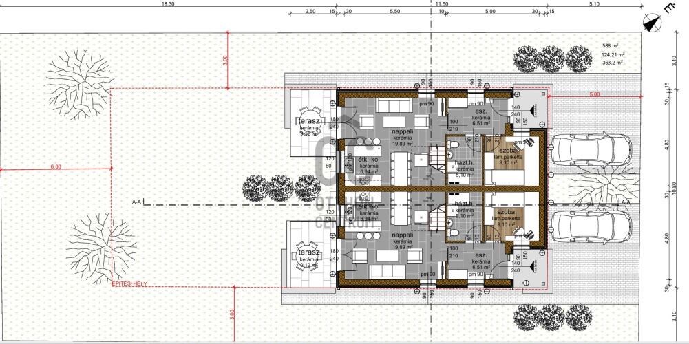
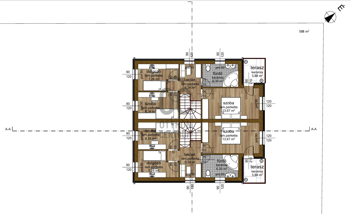
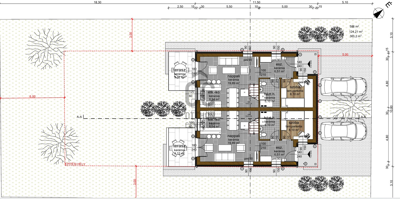
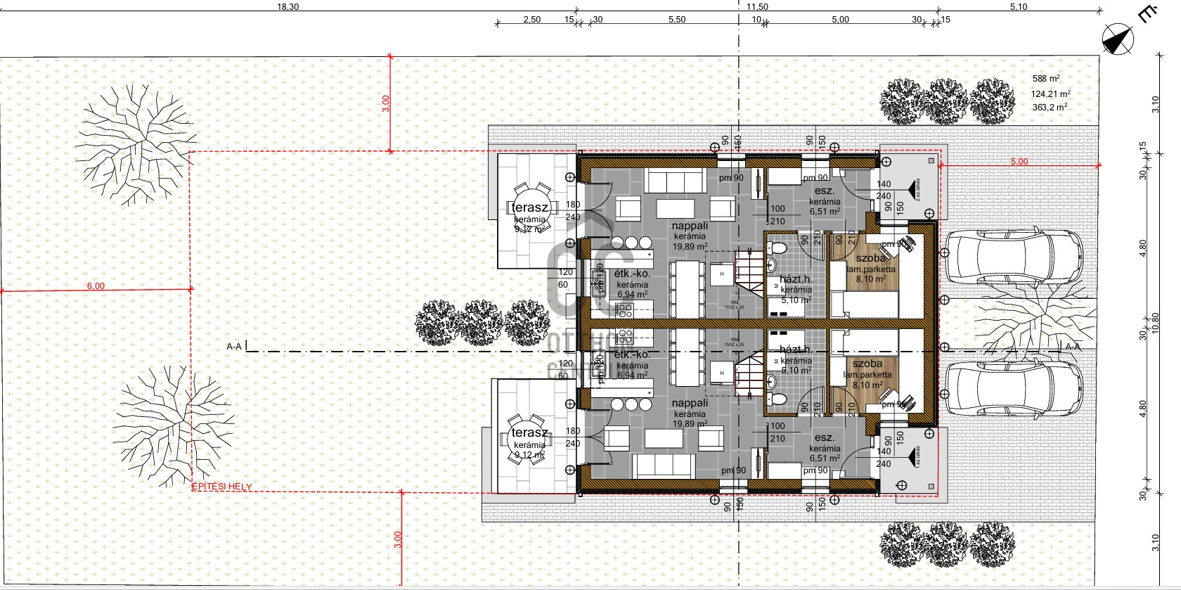
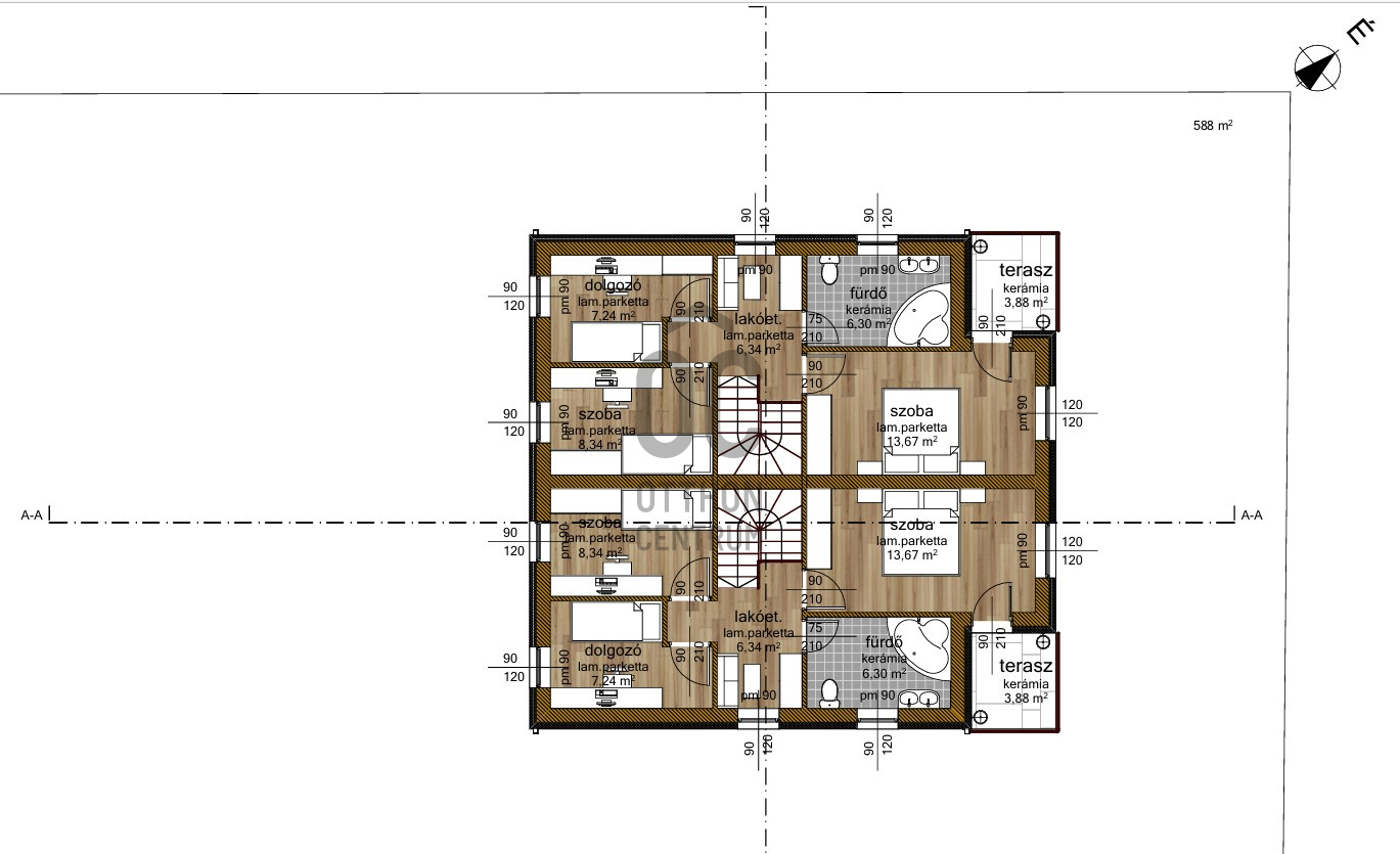
Eladó Budatétényben egy kétszintes, nettó 88,4(bruttó 110) nm-es N + 4 szobás iker ház, 588 nm-es telken(1 számú lakás).
A ház 30-as POROTHERM téglából épül, 15 cm-es DRYVIT szigeteléssel. A nyílászárók háromrétegű üvegezésűek.
A fűtést hőszivattyú (6 KW) biztosítja, padlófűtés hőleadással.
A lakások kulcsrakész állapotban kerülnek átadásra. A burkolatokat, szanitereket, valamint a beltéri ajtókat az új tulajdonos választhatja ki. A parkolásra felszíni kocsibeálló áll rendelkezésre.
1. Lakás: nettó 88,4(bruttó 110) nm-es N + 4 szobás , a hozzá tartozó telekrész ~230 nm Ára: 152M Ft
2. Lakás: nettó 88,4(bruttó 110) nm-es N + 4 szobás , a hozzá tartozó telekrész ~230 nm Ára: 152M Ft
Az infrastruktúrája jó, óvoda, iskola, bevásárlási lehetőség gyalogosan pár perc alatt elérhető.
Valamint a buszmegálló is pár perc sétatávolságra található.
Várható átadás 2026.Nyár.
Az Otthon Centrum irodáiban hitel tanácsadó segíti az igénylés teljes folyamatát, hitel felvétel esetén megkeresi az Önnek legmegfelelőbb ajánlatot a bankok kínálatából.
Vegye igénybe ingyenes szolgáltatásainkat!
Az ingatlan rugalmasan nézhető. Hívjon, egyeztessünk időpontot.
ÁFA VISSZAIGÉNYLÉS (5%)
ILLETÉKMENTESSÉG (4 %)
BABAVÁRÓ ÉS TÁMOGATOTT CSOK HITEL.
Eladó Budatétényben egy kétszintes, nettó 88,4(bruttó 110) nm-es N + 4 szobás iker ház, 588 nm-es telken(1 számú lakás).
A ház 30-as POROTHERM téglából épül, 15 cm-es DRYVIT szigeteléssel. A nyílászárók háromrétegű üvegezésűek.
A fűtést hőszivattyú (6 KW) biztosítja, padlófűtés hőleadással.
A lakások kulcsrakész állapotban kerülnek átadásra. A burkolatokat, szanitereket, valamint a beltéri ajtókat az új tulajdonos választhatja ki. A parkolásra felszíni kocsibeálló áll rendelkezésre.
1. Lakás: nettó 88,4(bruttó 110) nm-es N + 4 szobás , a hozzá tartozó telekrész ~230 nm Ára: 152M Ft
2. Lakás: nettó 88,4(bruttó 110) nm-es N + 4 szobás , a hozzá tartozó telekrész ~230 nm Ára: 152M Ft
Az infrastruktúrája jó, óvoda, iskola, bevásárlási lehetőség gyalogosan pár perc alatt elérhető.
Valamint a buszmegálló is pár perc sétatávolságra található.
Várható átadás 2026.Nyár.
Az Otthon Centrum irodáiban hitel tanácsadó segíti az igénylés teljes folyamatát, hitel felvétel esetén megkeresi az Önnek legmegfelelőbb ajánlatot a bankok kínálatából.
Vegye igénybe ingyenes szolgáltatásainkat!
Az ingatlan rugalmasan nézhető. Hívjon, egyeztessünk időpontot.
Registration Number
U0049084
Property Details
Sales
for sale
Legal Status
new
Character
house
Construction Method
brick
Net Size
88.4 m²
Gross Size
110 m²
Plot Size
588 m²
Size of Terrace / Balcony
13 m²
Heating
heat pump
Ceiling Height
270 cm
Number of Levels Within the Property
2
Orientation
South
Condition
Excellent
Condition of Facade
Excellent
Neighborhood
quiet, good transport, green, central
Year of Construction
2026
Number of Bathrooms
2
Water
Available
Gas
On the street
Electricity
Available
Sewer
Available
Rooms
entryway
6.51 m²
utility room
5.1 m²
room
8.1 m²
open-plan kitchen and dining room
6.94 m²
living room
19.9 m²
terrace
9.12 m²
corridor
6.34 m²
room
7.24 m²
room
8.34 m²
room
13.67 m²
bathroom-toilet
6.3 m²
balcony
3.9 m²
Váczi Zsófia
Credit Expert