data_sheet.details.realestate.section.main.otthonstart_flag.label
For sale new construction semi-detached house,
U0049032
Hajdúsámson, Sámsonkert
55,000,000 Ft
144,000 €
- 84m²
- 4 Rooms
A Szűcs utca közelében új építésű ikerház eladó
Projekt leírás
Új építésű ikerházak Sámsonkertben, kedvező áron eladók!
Debrecen vonzáskörzetében, Debrecenből 4 sávos úton megközelíthető Sámsonkertben
12 db ikerház épül.
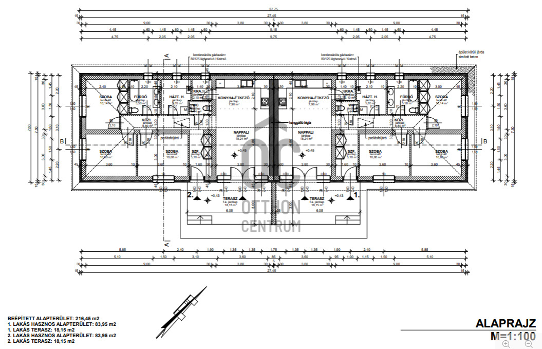
Az ingatlanokhoz 300-400 nm-es önálló telekrész tartozik, az ikerházak nettó alapterülete
83 nm, mindegyikhez 18 nm terasz tartozik.
Főbb jellemzők:
- POROTHERM 30-as tégla falazat
- 15 cm homlokzati hőszigetelés
- cserép tetőhéjazat
- 3 rétegű üvegezésű műanyag ablakok
- hőszivattyús fűtés, padlófűtésen keresztül
- nappali-amerikai konyha-étkező + 3 hálószoba
- minden lakóegység önálló házi vízművel rendelkezik
Várható átadás 2026. 12. 31.
CSOK+, 3 %-os hitel igénybe vehető!
Projekt leírás
Új építésű ikerházak Sámsonkertben, kedvező áron eladók!
Debrecen vonzáskörzetében, Debrecenből 4 sávos úton megközelíthető Sámsonkertben
12 db ikerház épül.
Az ingatlanokhoz 300-400 nm-es önálló telekrész tartozik, az ikerházak nettó alapterülete
83 nm, mindegyikhez 18 nm terasz tartozik.
Főbb jellemzők:
- POROTHERM 30-as tégla falazat
- 15 cm homlokzati hőszigetelés
- cserép tetőhéjazat
- 3 rétegű üvegezésű műanyag ablakok
- hőszivattyús fűtés, padlófűtésen keresztül
- nappali-amerikai konyha-étkező + 3 hálószoba
- minden lakóegység önálló házi vízművel rendelkezik
Várható átadás 2026. 12. 31.
CSOK+, 3 %-os hitel igénybe vehető!
Registration Number
U0049032
Property Details
Sales
for sale
Legal Status
new
Character
house
Construction Method
brick
Net Size
84 m²
Gross Size
102 m²
Plot Size
300 m²
Size of Terrace / Balcony
18 m²
Garden Size
300 m²
Heating
values.realestate.futes.26
Ceiling Height
270 cm
Orientation
South-East
View
Green view
Condition
Excellent
Condition of Facade
Excellent
Neighborhood
quiet, good transport, green
Year of Construction
2026
Number of Bathrooms
1
Condominium Garden
yes
Water
On the street
Gas
On the street
Electricity
Available
Rooms
room
11 m²
room
10 m²
room
10 m²
living room
18 m²
open-plan kitchen and dining room
9 m²
bathroom-toilet
5 m²
toilet-washbasin
1 m²
utility room
5 m²
pantry
2 m²
corridor
6 m²
entryway
5 m²
Plébán László
Credit Expert