data_sheet.details.realestate.section.main.otthonstart_flag.label
For sale new construction family house,
U0048926
Balatonmáriafürdő
64,990,000 Ft
172,000 €
- 60m²
- 3 Rooms
Eladó új építésű ingatlan Balatonkeresztúron !
Fedezze fel ezt a különleges lehetőséget, amely ideális otthont kínál Balatonkeresztúron, Somogy vármegyében. Az ingatlan egy újonnan épülő ház, amely prémium kivitelezésének köszönhetően várja új lakóit.
Ennek előnye ,hogy az új tulajdonos választhatja ki a burkolatokat és még néhány dolgot.
Átadása 2026.
A ház jellemzői :
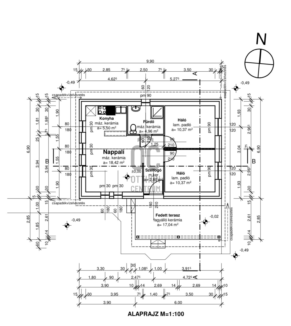
- 60 nm alapterülettel fog rendelkezni ,amelyhez egy 450 nm-es telek tartozik
- Osztatlan közös telek, amely használati megállapodás keretében hasznosítható
- A házat 2 hálószobával, nappalival, fürdővel tervezték, amelyek lehetőséget adnak a kényelmes és modern életvitelre.
- A világos nappali ideális helyszíne a baráti összejöveteleknek.
- A ház egyedi tervezésű, amely a modern életstílushoz igazodik.
- A klíma gondoskodik a kellemes hőmérsékletről a nyári melegben és a téli hidegben egyaránt
- Az ingatlan 2026 végén kerül átadásra !!
Balatonkeresztúr csendes, biztonságos település, amely ideális hely mindenki számára. A közlekedési lehetőségek kiválóak: a közeli buszmegállók és vasútállomás gyors hozzáférést biztosítanak a környező városokhoz és a Balaton partjához.
A településen található üzletek, éttermek és szórakozási lehetőségek mind hozzájárulnak ahhoz, hogy itt élni valóban élvezetes legyen.
Ne hagyja ki ezt az egyedülálló lehetőséget, hogy egy modern, világos és tágas otthonra találjon Balatonkeresztúron!
Ha bármilyen kérdése van, vagy szeretne többet megtudni az ingatlanról, bizalommal keressen minket!
Fedezze fel ezt a különleges lehetőséget, amely ideális otthont kínál Balatonkeresztúron, Somogy vármegyében. Az ingatlan egy újonnan épülő ház, amely prémium kivitelezésének köszönhetően várja új lakóit.
Ennek előnye ,hogy az új tulajdonos választhatja ki a burkolatokat és még néhány dolgot.
Átadása 2026.
A ház jellemzői :
- 60 nm alapterülettel fog rendelkezni ,amelyhez egy 450 nm-es telek tartozik
- Osztatlan közös telek, amely használati megállapodás keretében hasznosítható
- A házat 2 hálószobával, nappalival, fürdővel tervezték, amelyek lehetőséget adnak a kényelmes és modern életvitelre.
- A világos nappali ideális helyszíne a baráti összejöveteleknek.
- A ház egyedi tervezésű, amely a modern életstílushoz igazodik.
- A klíma gondoskodik a kellemes hőmérsékletről a nyári melegben és a téli hidegben egyaránt
- Az ingatlan 2026 végén kerül átadásra !!
Balatonkeresztúr csendes, biztonságos település, amely ideális hely mindenki számára. A közlekedési lehetőségek kiválóak: a közeli buszmegállók és vasútállomás gyors hozzáférést biztosítanak a környező városokhoz és a Balaton partjához.
A településen található üzletek, éttermek és szórakozási lehetőségek mind hozzájárulnak ahhoz, hogy itt élni valóban élvezetes legyen.
Ne hagyja ki ezt az egyedülálló lehetőséget, hogy egy modern, világos és tágas otthonra találjon Balatonkeresztúron!
Ha bármilyen kérdése van, vagy szeretne többet megtudni az ingatlanról, bizalommal keressen minket!
Registration Number
U0048926
Property Details
Sales
for sale
Legal Status
new
Character
house
Construction Method
brick
Net Size
60 m²
Gross Size
80 m²
Plot Size
450 m²
Heating
electric fan-coil
Ceiling Height
270 cm
Orientation
South-West
Condition
Excellent
Condition of Facade
Excellent
Year of Construction
2026
Number of Bathrooms
1
Water
Available
Gas
On the street
Electricity
Available
Sewer
Available
Distance to Waterfront
more than 500 meters
Rooms
entryway
1 m²
open-plan kitchen and living room
1 m²
dining room
1 m²
bedroom
1 m²
bedroom
1 m²
bathroom-toilet
1 m²