data_sheet.details.realestate.section.main.otthonstart_flag.label
For sale new construction family house,
U0048805
Téglás
75,500,000 Ft
193,000 €
- 93m²
- 4 Rooms




Otthon, ami egyszerre korszerű és családbarát
Új építésű, modern családi házat keres egy nyugodt, de dinamikusan fejlődő környéken? Téglás kertvárosi részén, egy új házakkal beépülő utcában kínálunk egy korszerű, energiatakarékos otthont, amely 2026 tavaszán már birtokba vehető.
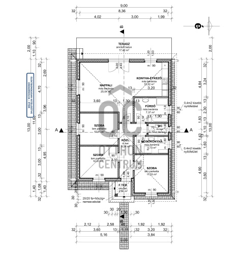
Az egyszintes, 93 m²-es családi ház átgondolt alaprajzzal készül:
- tágas nappali (25 m²)
- külön konyha-étkező (10,8 m²)
- három kényelmes hálószoba,
- fürdőszoba és külön WC,
- praktikus mosókonyha.
A nappali közvetlen kijárattal kapcsolódik a 17 m²-es teraszhoz, amely a mindennapok kényelmét szolgálja. A 603 m²-es telek bőséges lehetőséget kínál kert, játszótér vagy pihenőterület kialakítására.
A ház építése során a korszerű és energiatakarékos megoldások kerülnek előtérbe:
- hőszivattyús fűtés-hűtés rendszer,
- 3 rétegű hőszigetelt nyílászárók,
- kiváló szigetelés, amely alacsony rezsit garantál,
- 2,7 méteres belmagasság, amely világos és tágas tereket biztosít,
- két autó beállási lehetősége a telken belül.
Ez az otthon hosszú távon kényelmes, fenntartható és biztonságos választás, egy olyan utcában, ahol sorra épülnek az új házak, így egy egészen új, barátságos lakókörnyezet formálódik.
Ha Ön is egy új, alacsony fenntartású és korszerű otthont szeretne Téglás egyik leggyorsabban fejlődő utcájában, keressen minket bizalommal a részletekért!
Az egyszintes, 93 m²-es családi ház átgondolt alaprajzzal készül:
- tágas nappali (25 m²)
- külön konyha-étkező (10,8 m²)
- három kényelmes hálószoba,
- fürdőszoba és külön WC,
- praktikus mosókonyha.
A nappali közvetlen kijárattal kapcsolódik a 17 m²-es teraszhoz, amely a mindennapok kényelmét szolgálja. A 603 m²-es telek bőséges lehetőséget kínál kert, játszótér vagy pihenőterület kialakítására.
A ház építése során a korszerű és energiatakarékos megoldások kerülnek előtérbe:
- hőszivattyús fűtés-hűtés rendszer,
- 3 rétegű hőszigetelt nyílászárók,
- kiváló szigetelés, amely alacsony rezsit garantál,
- 2,7 méteres belmagasság, amely világos és tágas tereket biztosít,
- két autó beállási lehetősége a telken belül.
Ez az otthon hosszú távon kényelmes, fenntartható és biztonságos választás, egy olyan utcában, ahol sorra épülnek az új házak, így egy egészen új, barátságos lakókörnyezet formálódik.
Ha Ön is egy új, alacsony fenntartású és korszerű otthont szeretne Téglás egyik leggyorsabban fejlődő utcájában, keressen minket bizalommal a részletekért!
Registration Number
U0048805
Property Details
Sales
for sale
Legal Status
new
Character
house
Construction Method
lightweight
Net Size
93 m²
Gross Size
93 m²
Plot Size
600 m²
Size of Terrace / Balcony
17 m²
Heating
Gas circulator
Ceiling Height
274 cm
Orientation
South-West
Condition
Excellent
Condition of Facade
Excellent
Year of Construction
2025
Number of Bathrooms
1
Water
Available
Gas
Available
Electricity
Available
Sewer
Available
Rooms
living room
25 m²
open-plan kitchen and dining room
10.8 m²
bedroom
10.8 m²
bedroom
10.8 m²
bedroom
11.5 m²
bathroom
7.4 m²
toilet
2 m²
corridor
8 m²
terrace
17 m²

Czellér András
Credit Expert