data_sheet.details.realestate.section.main.otthonstart_flag.label
For sale new construction family house,
U0048789
Hajdúsámson
70,000,000 Ft
186,000 €
- 70.7m²
- 3 Rooms
Álmodja meg most, költözzön jövőre - új építésű ingatlanok kiváló minőségben, verhetetlen áron!
Új építésű családi- és ikerházak épülnek Hajdúsámsonban, legyen az Öné az egyik!
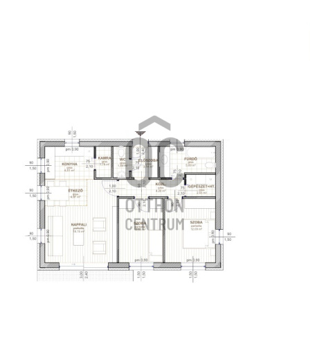
A meghirdetett önálló családi ház paraméterei:
Lakótér:
- nettó 71 nm, hasznos alapterület
- hatalmas amerikai-konyhás nappali
- 2 külön nyíló hálószoba
- fürdőszoba + külön WC
- terasz (igény esetén fedett)
- igény szerint alakítható a helyiségkiosztás
Műszaki jellemzők:
- masszív beton alap
- hagyományos, ácsolt tetőszerkezet, betoncserép fedéssel
- 30-as N+F tégla falazat
- 10 cm Austrotherm AT-N100 aljzatszigetelés
- 15 cm Austrotherm AT-H80 hőszigetelés a homlokzati falakon
- 25 cm Therwoolin hőszigetelés a födémen
- hőhídmentes 6 légkamrás profilrendszerű, horganyzott idomacél merevítéssel és 3 rétegű üvegezéssel ellátott műanyag nyílászárók
- padlófűtés hőszivattyúval az egész lakásban
- választható belső nyílászárók, burkolatok, szaniterek, csaptelepek, stb.
- a belső elrendezés, helyiségkiosztás szabadon variálható
Telek és környezet:
- teljes telek mérete: 807 m²
- új építésű ingatlanok lesznek a környezetében
- a főút 550 méterre található, így a munkába járás rugalmas, a forgalom zajától viszont teljes mértékben mentesül
- S-BOX 7 percre (LIDL, Rossmann, Tedi, KIK, EcoFamily, konditerem, stb)
- kisbolt pár percre, ha kimarad valami a nagy bevásárlásból
Amennyiben felkeltette az érdeklődését ez a lehetőség hívjon és megbeszélünk mindent.
Az elérhető telek méretek 680 nm - 1285 nm között, így ha nem szeretne nagy udvart, avagy pont hogy térre van szüksége, mindenki megtalálja a maga számára megfelelőt.
A felépítmény a 30%-os beépítési szabály szerint lehet bármekkora egészen nettó cc. 300 nm-ig, egyedi igények, műszaki tartalom szerint.
A meghirdetett önálló családi ház paraméterei:
Lakótér:
- nettó 71 nm, hasznos alapterület
- hatalmas amerikai-konyhás nappali
- 2 külön nyíló hálószoba
- fürdőszoba + külön WC
- terasz (igény esetén fedett)
- igény szerint alakítható a helyiségkiosztás
Műszaki jellemzők:
- masszív beton alap
- hagyományos, ácsolt tetőszerkezet, betoncserép fedéssel
- 30-as N+F tégla falazat
- 10 cm Austrotherm AT-N100 aljzatszigetelés
- 15 cm Austrotherm AT-H80 hőszigetelés a homlokzati falakon
- 25 cm Therwoolin hőszigetelés a födémen
- hőhídmentes 6 légkamrás profilrendszerű, horganyzott idomacél merevítéssel és 3 rétegű üvegezéssel ellátott műanyag nyílászárók
- padlófűtés hőszivattyúval az egész lakásban
- választható belső nyílászárók, burkolatok, szaniterek, csaptelepek, stb.
- a belső elrendezés, helyiségkiosztás szabadon variálható
Telek és környezet:
- teljes telek mérete: 807 m²
- új építésű ingatlanok lesznek a környezetében
- a főút 550 méterre található, így a munkába járás rugalmas, a forgalom zajától viszont teljes mértékben mentesül
- S-BOX 7 percre (LIDL, Rossmann, Tedi, KIK, EcoFamily, konditerem, stb)
- kisbolt pár percre, ha kimarad valami a nagy bevásárlásból
Amennyiben felkeltette az érdeklődését ez a lehetőség hívjon és megbeszélünk mindent.
Az elérhető telek méretek 680 nm - 1285 nm között, így ha nem szeretne nagy udvart, avagy pont hogy térre van szüksége, mindenki megtalálja a maga számára megfelelőt.
A felépítmény a 30%-os beépítési szabály szerint lehet bármekkora egészen nettó cc. 300 nm-ig, egyedi igények, műszaki tartalom szerint.
Registration Number
U0048789
Property Details
Sales
for sale
Legal Status
new
Character
house
Construction Method
brick
Net Size
70.7 m²
Gross Size
70.7 m²
Plot Size
807 m²
Heating
heat pump
Ceiling Height
275 cm
Orientation
South
Condition
Excellent
Condition of Facade
Excellent
Year of Construction
2026
Number of Bathrooms
1
Water
Available
Gas
On the street
Electricity
Available
Sewer
Available
Rooms
open-plan kitchen and living room
28.83 m²
room
12.09 m²
room
10.53 m²
bathroom
5.89 m²
toilet-washbasin
1.89 m²
entryway
3.14 m²
corridor
4.2 m²
pantry
1.79 m²
utility room
2.43 m²
Czellér András
Credit Expert