data_sheet.details.realestate.section.main.otthonstart_flag.label
For sale new construction semi-detached house,
U0048693
Balatonszabadi
94,900,000 Ft
242,000 €
- 98.3m²
- 4 Rooms





Balaton közeli újépítésű otthon – Modern ikerház saját kerttel és zöld panorámával Balatonszabadiban.
Ha egy olyan ingatlanra vágyik, amely ötvözi a modern építészetet, a korszerű technológiát és a természet közelségét, akkor most megtalálta.
Balatonszabadi csendes, nyugodt részén kínáljuk megvételre ezt a 2025-ben épülő, földszintes ikerházat, amely ideális választás családoknak, pároknak vagy akár befektetési céllal vásárlóknak is.
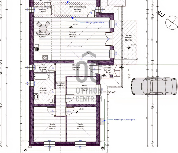
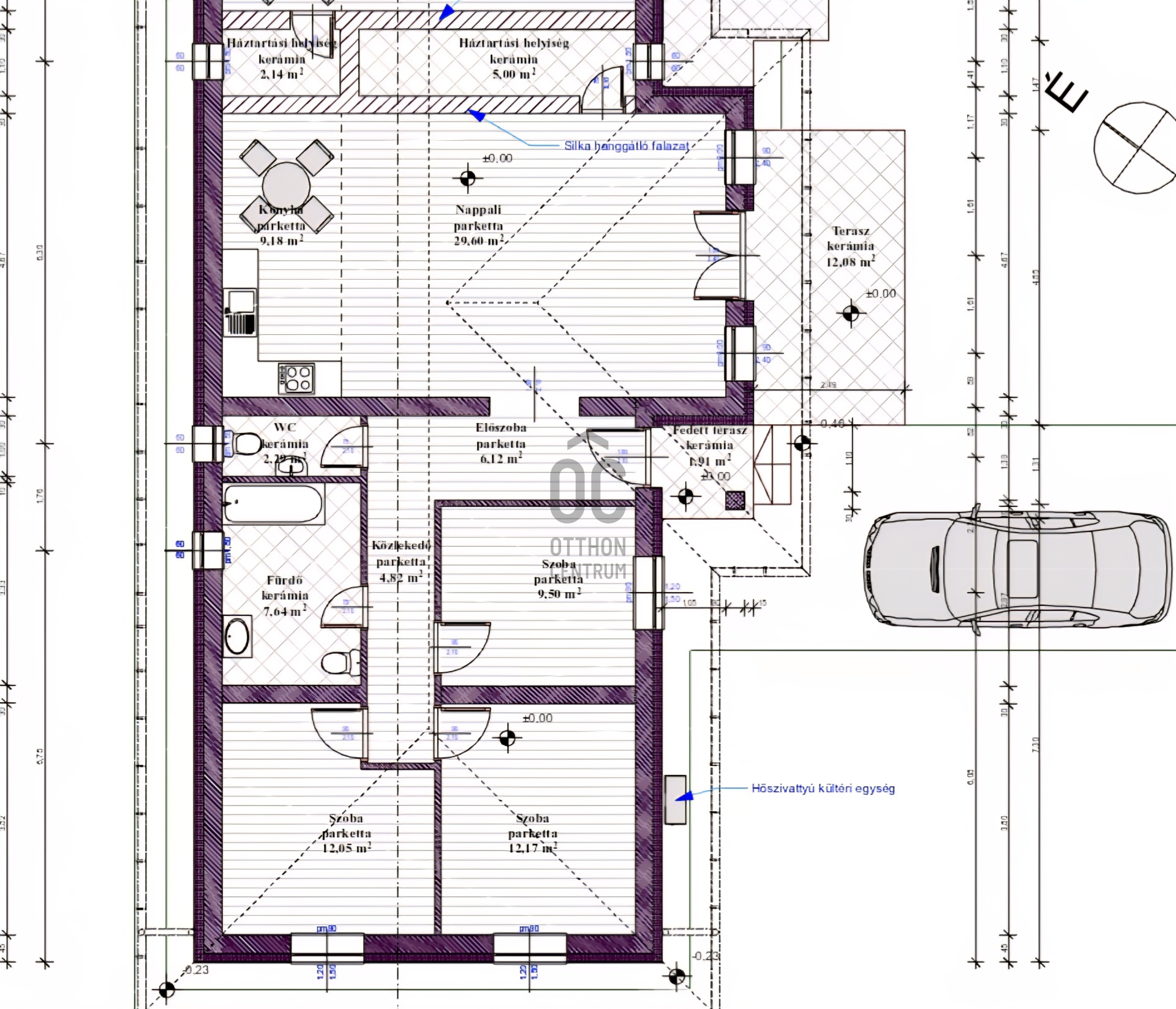
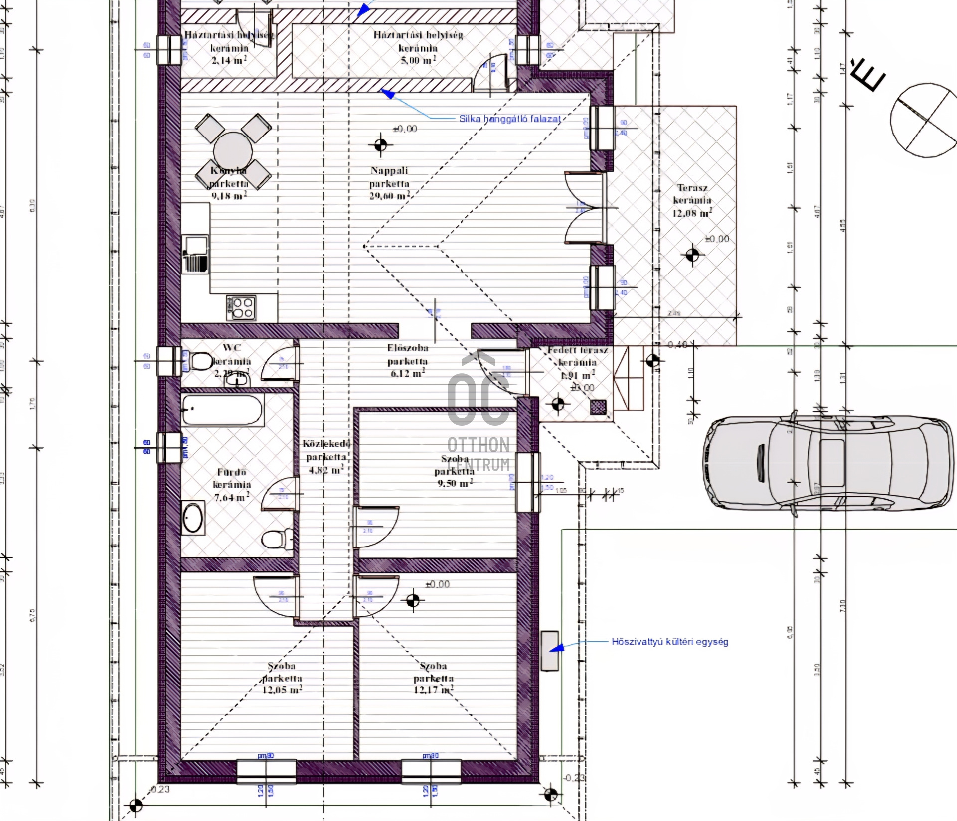
Kialakítás és belső terek
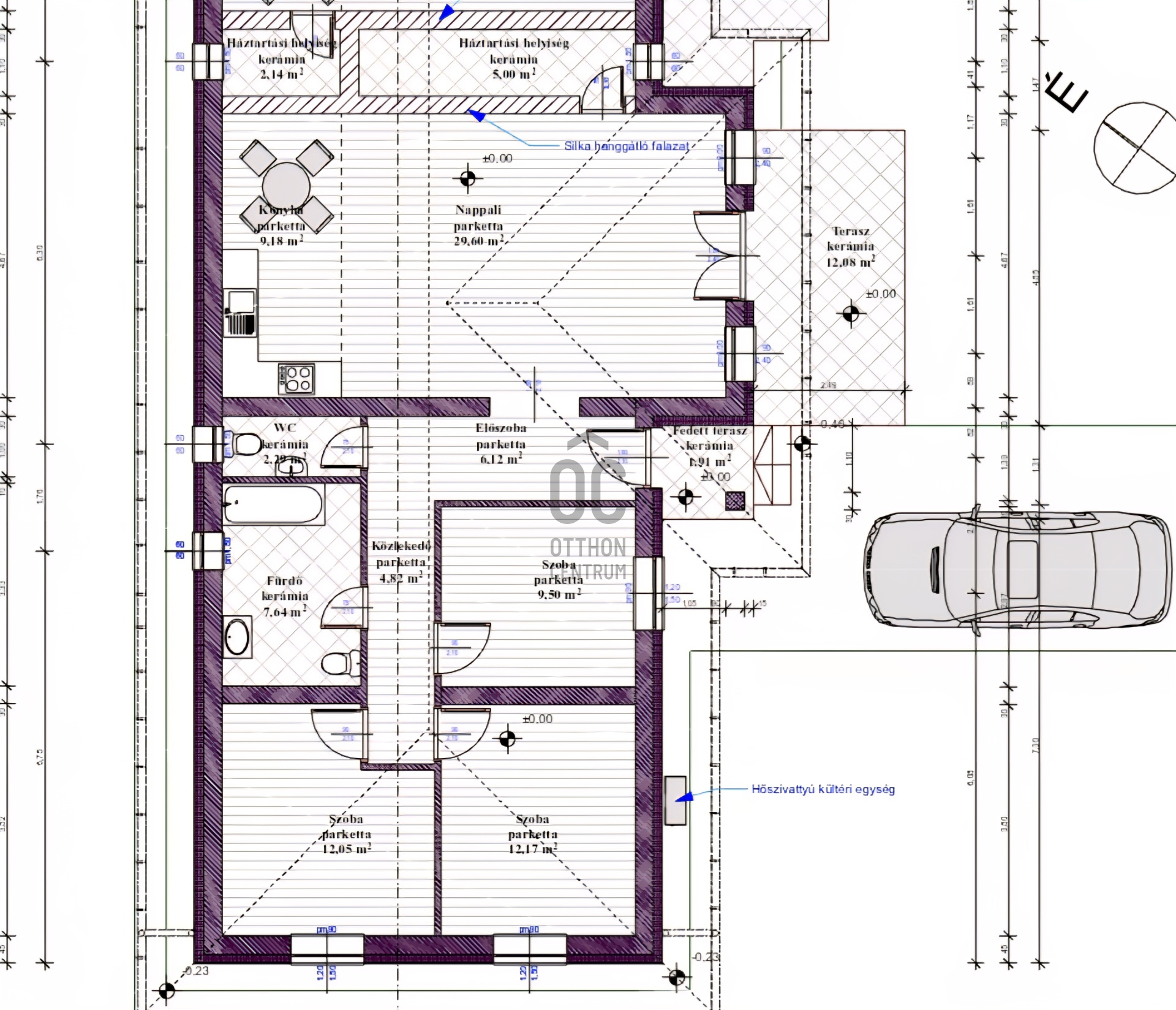
A nettó 98,38 m²-es lakótér minden szeglete a kényelmet szolgálja. Az ingatlanban:
Világos, nagy nappali-konyha-étkező kapott helyet, amely közvetlen kijárattal kapcsolódik a 14 m²-es fedett teraszhoz – tökéletes tér családi és baráti összejövetelekhez.
Három külön nyíló hálószoba biztosítja a privát szférát minden családtag számára.
Egy tágas fürdőszoba WC-vel, különálló vendég-WC kézmosóval, valamint egy praktikus háztartási helyiség teszi igazán élhetővé a mindennapokat.
Az átgondolt alaprajznak köszönhetően minden helyiség kényelmesen használható, jól berendezhető, és természetes fényben úszik.
Külső adottságok és környezet
Az ingatlanhoz tartozik egy 353 m²-es saját kert, amely ideális játszótér a gyerekeknek, helyet adhat egy hangulatos kerti sütögetőnek, medencének, vagy akár saját kis konyhakertnek is. A déli tájolás garantálja a napfényt, a teraszról pedig a zöldre néző panoráma nyújt nyugodt, pihentető látványt.
Műszaki tartalom és előnyök
Bruttó alapterület: 112,37 m²
4 külön nyíló szoba
Építés éve: 2025
Energiatakarékos hőszivattyús fűtés (levegő-víz rendszer) – alacsony rezsiköltség, fenntartható működés
Ytong falazat – kiváló hőszigetelő és időtálló szerkezet
Délnyugati tájolás – világos, napfényes otthon egész nap
Földszintes kialakítás – kényelmes, akadálymentes közlekedés
Miért különleges ez az ingatlan?
Mert a Balaton közelsége (pár perc autóval) ötvöződik a csendes, természetközeli környezettel.
Mert a modern építési technológia és a korszerű fűtési rendszer hosszú távon is értékállóvá és gazdaságossá teszi.
Mert egy szintre tervezve, nagy terasszal és saját kerttel igazi családi otthonná válhat.
Befektetők figyelem...
A Balaton közelsége és a település nyugodt hangulata miatt ez az ingatlan kiválóan alkalmas nyaralóként vagy kiadásra is.
A környék turisztikai vonzereje és az új építés biztosítja a folyamatos keresletet – így nemcsak otthonként, hanem jövedelmező befektetésként is tökéletes választás.
Finanszírozási lehetőség
Most különösen jó időszak a vásárlásra: az ingatlan 3%-os hitellel is megvásárolható, ami rendkívül kedvező konstrukció, és hosszú távon óriási előnyt jelent a finanszírozásban.
Ez az ingatlan több mint egy ház – egy olyan élettér, ahol a kényelmes mindennapok és a természet harmóniája találkozik.
Ne hagyja ki ezt a lehetőséget...
Foglalja le új otthonát időben, és legyen Ön az , aki birtokba veheti ezt a modern, energiatakarékos, balatoni közeli ikerházat.
Ha egy olyan ingatlanra vágyik, amely ötvözi a modern építészetet, a korszerű technológiát és a természet közelségét, akkor most megtalálta.
Balatonszabadi csendes, nyugodt részén kínáljuk megvételre ezt a 2025-ben épülő, földszintes ikerházat, amely ideális választás családoknak, pároknak vagy akár befektetési céllal vásárlóknak is.
Kialakítás és belső terek
A nettó 98,38 m²-es lakótér minden szeglete a kényelmet szolgálja. Az ingatlanban:
Világos, nagy nappali-konyha-étkező kapott helyet, amely közvetlen kijárattal kapcsolódik a 14 m²-es fedett teraszhoz – tökéletes tér családi és baráti összejövetelekhez.
Három külön nyíló hálószoba biztosítja a privát szférát minden családtag számára.
Egy tágas fürdőszoba WC-vel, különálló vendég-WC kézmosóval, valamint egy praktikus háztartási helyiség teszi igazán élhetővé a mindennapokat.
Az átgondolt alaprajznak köszönhetően minden helyiség kényelmesen használható, jól berendezhető, és természetes fényben úszik.
Külső adottságok és környezet
Az ingatlanhoz tartozik egy 353 m²-es saját kert, amely ideális játszótér a gyerekeknek, helyet adhat egy hangulatos kerti sütögetőnek, medencének, vagy akár saját kis konyhakertnek is. A déli tájolás garantálja a napfényt, a teraszról pedig a zöldre néző panoráma nyújt nyugodt, pihentető látványt.
Műszaki tartalom és előnyök
Bruttó alapterület: 112,37 m²
4 külön nyíló szoba
Építés éve: 2025
Energiatakarékos hőszivattyús fűtés (levegő-víz rendszer) – alacsony rezsiköltség, fenntartható működés
Ytong falazat – kiváló hőszigetelő és időtálló szerkezet
Délnyugati tájolás – világos, napfényes otthon egész nap
Földszintes kialakítás – kényelmes, akadálymentes közlekedés
Miért különleges ez az ingatlan?
Mert a Balaton közelsége (pár perc autóval) ötvöződik a csendes, természetközeli környezettel.
Mert a modern építési technológia és a korszerű fűtési rendszer hosszú távon is értékállóvá és gazdaságossá teszi.
Mert egy szintre tervezve, nagy terasszal és saját kerttel igazi családi otthonná válhat.
Befektetők figyelem...
A Balaton közelsége és a település nyugodt hangulata miatt ez az ingatlan kiválóan alkalmas nyaralóként vagy kiadásra is.
A környék turisztikai vonzereje és az új építés biztosítja a folyamatos keresletet – így nemcsak otthonként, hanem jövedelmező befektetésként is tökéletes választás.
Finanszírozási lehetőség
Most különösen jó időszak a vásárlásra: az ingatlan 3%-os hitellel is megvásárolható, ami rendkívül kedvező konstrukció, és hosszú távon óriási előnyt jelent a finanszírozásban.
Ez az ingatlan több mint egy ház – egy olyan élettér, ahol a kényelmes mindennapok és a természet harmóniája találkozik.
Ne hagyja ki ezt a lehetőséget...
Foglalja le új otthonát időben, és legyen Ön az , aki birtokba veheti ezt a modern, energiatakarékos, balatoni közeli ikerházat.
Registration Number
U0048693
Property Details
Sales
for sale
Legal Status
new
Character
house
Construction Method
ytong
Net Size
98.3 m²
Gross Size
112.3 m²
Plot Size
706 m²
Size of Terrace / Balcony
14 m²
Garden Size
353 m²
Heating
values.realestate.futes.27
Ceiling Height
275 cm
Orientation
South
View
Green view
Condition
Excellent
Condition of Facade
Excellent
Neighborhood
quiet, good transport, green, central
Year of Construction
2025
Number of Bathrooms
1
Condominium Garden
yes
Water
Available
Gas
On the street
Electricity
Available
Sewer
Available
Storage
Independent
Rooms
open-plan kitchen and living room
38.79 m²
bathroom-toilet
7.64 m²
toilet-washbasin
2.29 m²
utility room
5 m²
corridor
4.82 m²
bedroom
9.5 m²
bedroom
12.17 m²
bedroom
12.05 m²
terrace
14 m²

Dienes László
Credit Expert