177,500,000 Ft
453,000 €
- 142m²
- 4 Rooms















Exkluzív vízparti ikerház Dunaharaszti Tópark Lakóparkban – otthon és nyaralás egyben!
Képek és tervező által készített alaprajz hamarosan feltöltésre kerül.
Eladó Dunaharaszti legnívósabb lakóparkjában, a Tópark Lakóparkban, egy 144 m²-es, 4 szobás, kétszintes luxus ikerház, 440 m²-es saját telekkel. A tópart közelsége és a lakópark kiemelkedő szolgáltatásai különleges életérzést biztosítanak: itt egyszerre élvezheti az otthon nyugalmát és egy üdülőhely minden előnyét!
Az ingatlan főbb jellemzői:
Modern, porotherm tégla falazat + 15 cm hőszigetelés, nemesvakolat homlokzat
Monolit födém, lapostetős kialakítás, antracit színű állókorcos lemezfedés
3 rétegű, antracit színű nyílászárók, elektromos alumínium redőnyökkel
Motoros, hőszigetelt garázskapu, két távirányítóval
4 tágas szoba, amerikai konyhás nappali, 2 fürdőszoba, erkély és terasz
Hőszivattyús fűtés-hűtés rendszer: padlófűtés és mennyezeti hűtés minden lakótérben
Elektromos törölközőszárító radiátor, épített zuhany, Ravak kád
Okosház előkészítés – redőnyvezérlés, világítás, fűtés-hűtés mobilról irányítható
Kültéri és beltéri burkolatok, szaniterek a vevő igényei szerint választhatók
A lakópark különlegességei:
Zárt, biztonságos környezet – sorompós beléptető rendszer, portaszolgálat és 24 órás járőrszolgálat
Saját strand
Tiszta vizű tó, amely úszásra és vízi sportokra is alkalmas
Vízisípálya és jet-ski tó a lakópark területén
Sportolási lehetőségek: szabadtéri kondipark, futópálya, teniszpálya, futballpálya
Játszótér és közösségi terek a család minden tagjának
Étterem és kávézó a lakóparkon belül
Kiváló infrastruktúra:
Bevásárlási lehetőségek közvetlen közelben: Aldi, Lidl, Tesco, DM, Jysk, KFC és sok más
Budapest az M0-ásnak köszönhetően pár perc alatt elérhető
Ez az ingatlan nem csupán egy otthon, hanem egy életstílus: biztonság, nyugalom, luxus és vízparti élmények egy helyen.
Rugalmasan megtekinthető – ne hagyja ki ezt az egyedülálló lehetőséget!
Képek és tervező által készített alaprajz hamarosan feltöltésre kerül.
Eladó Dunaharaszti legnívósabb lakóparkjában, a Tópark Lakóparkban, egy 144 m²-es, 4 szobás, kétszintes luxus ikerház, 440 m²-es saját telekkel. A tópart közelsége és a lakópark kiemelkedő szolgáltatásai különleges életérzést biztosítanak: itt egyszerre élvezheti az otthon nyugalmát és egy üdülőhely minden előnyét!
Az ingatlan főbb jellemzői:
Modern, porotherm tégla falazat + 15 cm hőszigetelés, nemesvakolat homlokzat
Monolit födém, lapostetős kialakítás, antracit színű állókorcos lemezfedés
3 rétegű, antracit színű nyílászárók, elektromos alumínium redőnyökkel
Motoros, hőszigetelt garázskapu, két távirányítóval
4 tágas szoba, amerikai konyhás nappali, 2 fürdőszoba, erkély és terasz
Hőszivattyús fűtés-hűtés rendszer: padlófűtés és mennyezeti hűtés minden lakótérben
Elektromos törölközőszárító radiátor, épített zuhany, Ravak kád
Okosház előkészítés – redőnyvezérlés, világítás, fűtés-hűtés mobilról irányítható
Kültéri és beltéri burkolatok, szaniterek a vevő igényei szerint választhatók
A lakópark különlegességei:
Zárt, biztonságos környezet – sorompós beléptető rendszer, portaszolgálat és 24 órás járőrszolgálat
Saját strand
Tiszta vizű tó, amely úszásra és vízi sportokra is alkalmas
Vízisípálya és jet-ski tó a lakópark területén
Sportolási lehetőségek: szabadtéri kondipark, futópálya, teniszpálya, futballpálya
Játszótér és közösségi terek a család minden tagjának
Étterem és kávézó a lakóparkon belül
Kiváló infrastruktúra:
Bevásárlási lehetőségek közvetlen közelben: Aldi, Lidl, Tesco, DM, Jysk, KFC és sok más
Budapest az M0-ásnak köszönhetően pár perc alatt elérhető
Ez az ingatlan nem csupán egy otthon, hanem egy életstílus: biztonság, nyugalom, luxus és vízparti élmények egy helyen.
Rugalmasan megtekinthető – ne hagyja ki ezt az egyedülálló lehetőséget!
Registration Number
U0048652
Property Details
Sales
for sale
Legal Status
new
Character
house
Construction Method
brick
Net Size
142 m²
Gross Size
200 m²
Plot Size
300 m²
Heating
heat pump
Ceiling Height
270 cm
Number of Levels Within the Property
1
Orientation
South-West
View
river or lake view
Condition
Excellent
Condition of Facade
Excellent
Neighborhood
quiet, good transport, green
Year of Construction
2025
Number of Bathrooms
1
Garage
Included in the price
Garage Spaces
1
Water
Available
Electricity
Available
Sewer
Available
Storage
Independent
Distance to Waterfront
waterfront
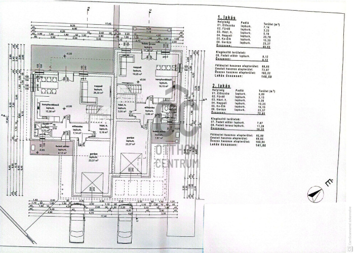
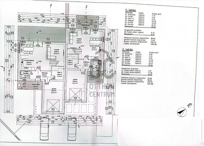
Rooms
garage
23.3 m²
entryway
6.23 m²
toilet
3.07 m²
storage
5.19 m²
living room
29.36 m²
open-plan kitchen and dining room
7.9 m²
terrace
20 m²
staircase
4.38 m²
corridor
7.2 m²
bathroom-toilet
7.2 m²
toilet
2.1 m²
wardrobe
4 m²
room
12.03 m²
room
13.26 m²
room
15.19 m²
balcony
10 m²

Joó Krisztina
Credit Expert