105,000,000 Ft
271,000 €
- 88.7m²
- 4 Rooms
- 2nd floor

























Néhány percre a megújult Egressy tértől újépítésű belső kétszintes lakás ELADÓ!
ALSÓRÁKOS kedvelt utcájában ELADÓ egy 88 m2-es, BELSŐ KÉTSZINTES újépítésű lakás.
A tégla építésű ház 5 lakása a XIV kerületben, társasházi, zöldövezeti környezetben épült. Már az összes lakás elkelt. Ablakos kialakítású zárt lépcsőház. A társasházhoz biciklitároló került kiépítésre.
A Rákos -patak a közelben található, mert mindössze 5-8 perc séta, ami ideális biciklizésre, kocogásra, sétálásra, kutyasétáltatásra.
Az UTOLSÓ eladó lakás paraméterei:
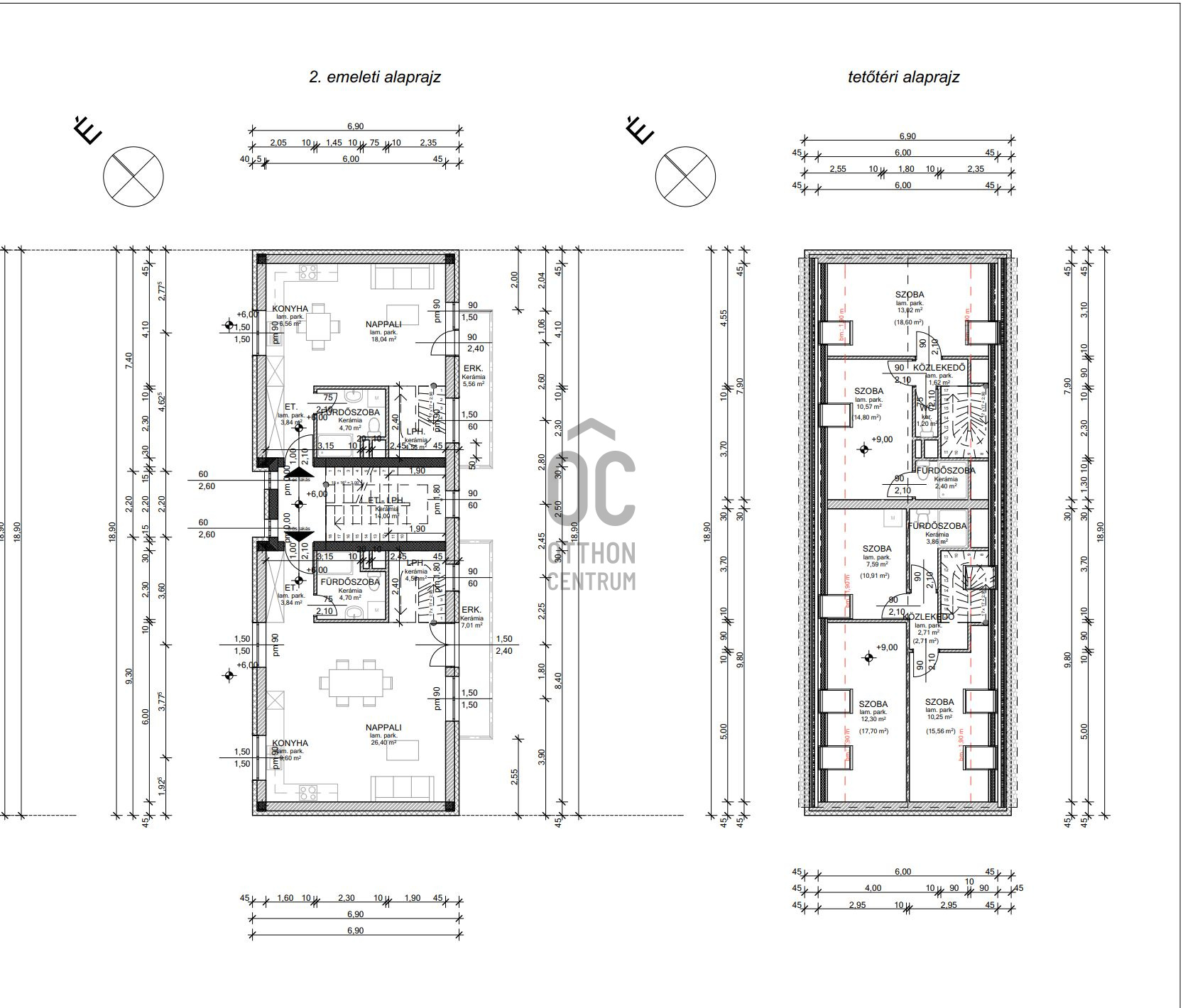
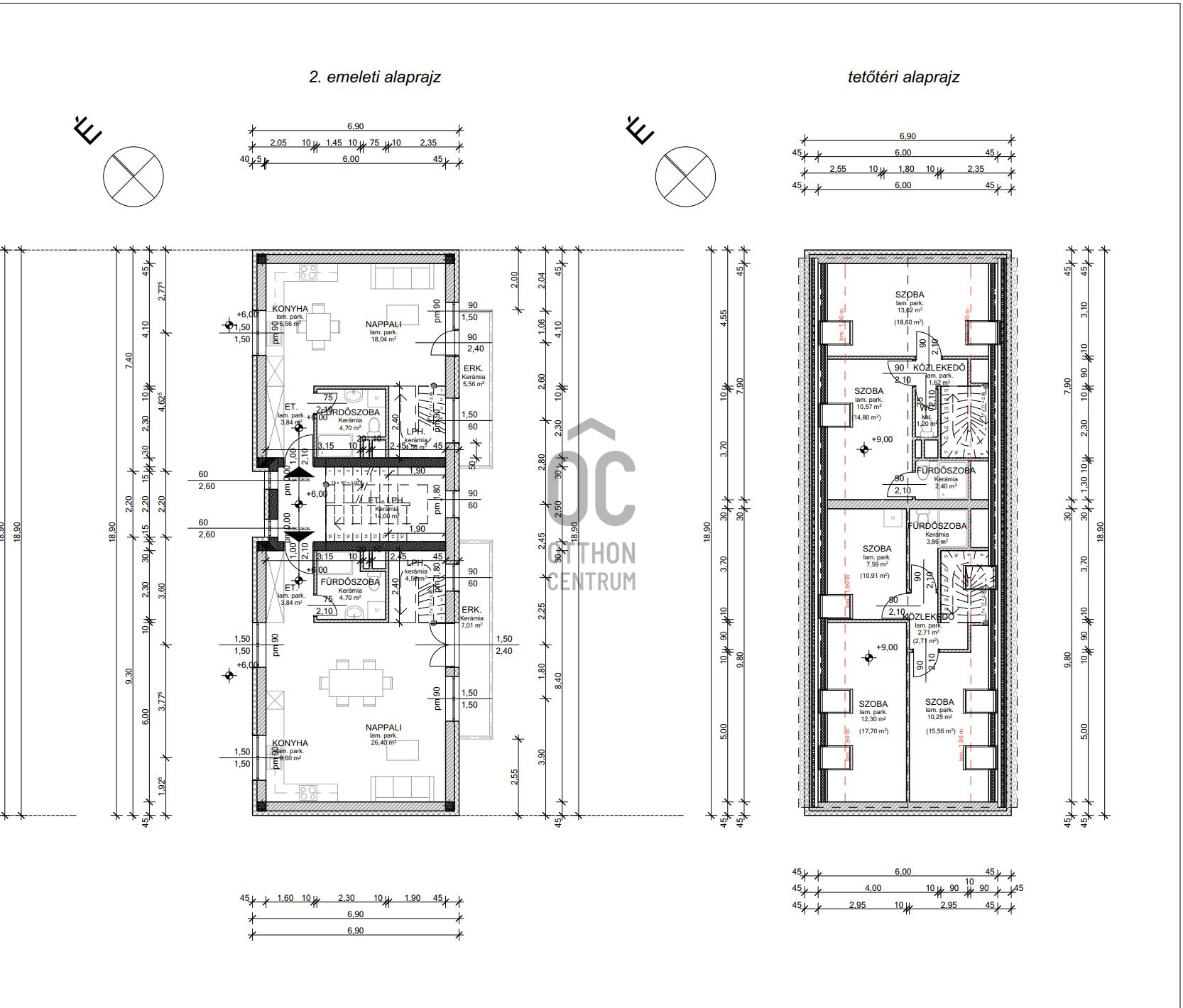
-nettó 88,79 m2 (bruttó: 103,73 m2)
-belmagasság: 260 m
- műanyag nyílászárók
-hőszivattyú (hűtő-fűtő)
-klíma
-hidegburkolat választható
-melegburkolat (parketta)választható
-szaniterek
-riasztó kiállás előkészített verzió
-fedett kocsibeálló (A meghirdetett vételár a gépkocsi beálló árát is tartalmazza!)
Az épületről:
-elektromos kapu
-zárt lépcsőház nyitható ablakokkal
-biciklitároló
-kukatároló
-gépkocsi beállók
A vételár NEM TARTALMAZ konyhabútort!!
Műszaki paraméterek:
alapozás: -minőségi beton
talajnedvesség elleni szigetelés: -CV4 jelű 4,0 mm vastag bitumenes szigetelőlemez + PORMEX RAPID
járda: -kavics ágyon, beton, cement és bitumen az előírt technológiával elkészítve
gépkocsi behajtó: -térkő burkolás jogszabálynak megfelelően
falazat: PHOROTHERM 30 N+ F blokktégla
födém: hagyományos szerkezetű fagerenda + gipszkarton burkolat
tetőszerkezet (45 fokos):-téglavörös színű betoncserép
szigetelés : -külső falon 15 cm -es EPS
esővíz elvezetés: - ereszcsatorna, szürke bádogból (ereszkinyúlás 20 cm)
nyílászárók:-fehér műanyag ablakok
-belső falak festése: fehér műanyag bázisú falfestés
-külső felület színezése: Dryvit rendszerű fehér és dióbarna illetve lábazaton sötétbarna homlokzatvakolat,
burkolatok: parketta, kerámialap
Közelben lévő létesítmények:
-élelmiszer boltok, kifőzde, étterem, kávézó, iskola, óvoda, piac (kocsival 8 perc), fogászati centrum, strandfürdő, cukrászdák
- Közlekedés és tömegközlekedés:
-3, 62, 62A villamos, 32 -es busz (Örs vezér tere (Árkád, Sugár, IKEA 15 perc)
-77 troli (Egressy tér -től Puskás stadion 2-es metro felé)
Ajánlom családoknak vagy befektetőknek.
Egyedi igényekre szabott lakáshitelekkel állunk rendelkezésére.
Bankfüggetlen Hitel Centrumunk az országban elérhető összes bank és hitelintézet ajánlatát versenyezteti az Ön számára díjmentesen. Munkatársaink nagy szakmai tapasztalattal várják Önt az előre egyeztetett időpontban akár a normál munkaidő után is.
Bővebb információért és a megtekintéssel kapcsolatban hívjon bizalommal!
A tégla építésű ház 5 lakása a XIV kerületben, társasházi, zöldövezeti környezetben épült. Már az összes lakás elkelt. Ablakos kialakítású zárt lépcsőház. A társasházhoz biciklitároló került kiépítésre.
A Rákos -patak a közelben található, mert mindössze 5-8 perc séta, ami ideális biciklizésre, kocogásra, sétálásra, kutyasétáltatásra.
Az UTOLSÓ eladó lakás paraméterei:
-nettó 88,79 m2 (bruttó: 103,73 m2)
-belmagasság: 260 m
- műanyag nyílászárók
-hőszivattyú (hűtő-fűtő)
-klíma
-hidegburkolat választható
-melegburkolat (parketta)választható
-szaniterek
-riasztó kiállás előkészített verzió
-fedett kocsibeálló (A meghirdetett vételár a gépkocsi beálló árát is tartalmazza!)
Az épületről:
-elektromos kapu
-zárt lépcsőház nyitható ablakokkal
-biciklitároló
-kukatároló
-gépkocsi beállók
A vételár NEM TARTALMAZ konyhabútort!!
Műszaki paraméterek:
alapozás: -minőségi beton
talajnedvesség elleni szigetelés: -CV4 jelű 4,0 mm vastag bitumenes szigetelőlemez + PORMEX RAPID
járda: -kavics ágyon, beton, cement és bitumen az előírt technológiával elkészítve
gépkocsi behajtó: -térkő burkolás jogszabálynak megfelelően
falazat: PHOROTHERM 30 N+ F blokktégla
födém: hagyományos szerkezetű fagerenda + gipszkarton burkolat
tetőszerkezet (45 fokos):-téglavörös színű betoncserép
szigetelés : -külső falon 15 cm -es EPS
esővíz elvezetés: - ereszcsatorna, szürke bádogból (ereszkinyúlás 20 cm)
nyílászárók:-fehér műanyag ablakok
-belső falak festése: fehér műanyag bázisú falfestés
-külső felület színezése: Dryvit rendszerű fehér és dióbarna illetve lábazaton sötétbarna homlokzatvakolat,
burkolatok: parketta, kerámialap
Közelben lévő létesítmények:
-élelmiszer boltok, kifőzde, étterem, kávézó, iskola, óvoda, piac (kocsival 8 perc), fogászati centrum, strandfürdő, cukrászdák
- Közlekedés és tömegközlekedés:
-3, 62, 62A villamos, 32 -es busz (Örs vezér tere (Árkád, Sugár, IKEA 15 perc)
-77 troli (Egressy tér -től Puskás stadion 2-es metro felé)
Ajánlom családoknak vagy befektetőknek.
Egyedi igényekre szabott lakáshitelekkel állunk rendelkezésére.
Bankfüggetlen Hitel Centrumunk az országban elérhető összes bank és hitelintézet ajánlatát versenyezteti az Ön számára díjmentesen. Munkatársaink nagy szakmai tapasztalattal várják Önt az előre egyeztetett időpontban akár a normál munkaidő után is.
Bővebb információért és a megtekintéssel kapcsolatban hívjon bizalommal!
Registration Number
U0048558
Property Details
Sales
for sale
Legal Status
new
Character
apartment
Construction Method
brick
Net Size
88.7 m²
Gross Size
103.7 m²
Size of Terrace / Balcony
7.1 m²
Heating
renewable
Ceiling Height
260 cm
Number of Levels Within the Property
2
Orientation
South-East
Staircase Type
enclosed staircase
Condition
Excellent
Condition of Facade
Excellent
Condition of Staircase
Excellent
Year of Construction
2024
Number of Bathrooms
2
Position
courtyard-facing
Water
Available
Gas
Available
Electricity
Available
Sewer
Available
Rooms
entryway
3.84 m²
other room
4.56 m²
kitchen
9.6 m²
living room
26.4 m²
bathroom
4.7 m²
room
12.3 m²
room
10.25 m²
corridor
2.71 m²
bathroom
3.86 m²
room
10.57 m²
balcony
7.01 m²