For sale new construction apartment, U0048460
Budapest XVI. kerület, Rákosszentmihály

127,000,000 Ft

328,000 €

  • 103.2m²
  • 5 Rooms
  • 1st floor
Exclusive Contract

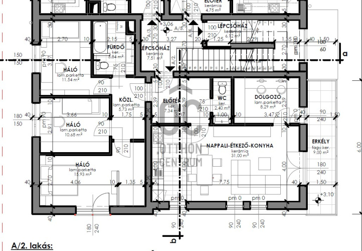
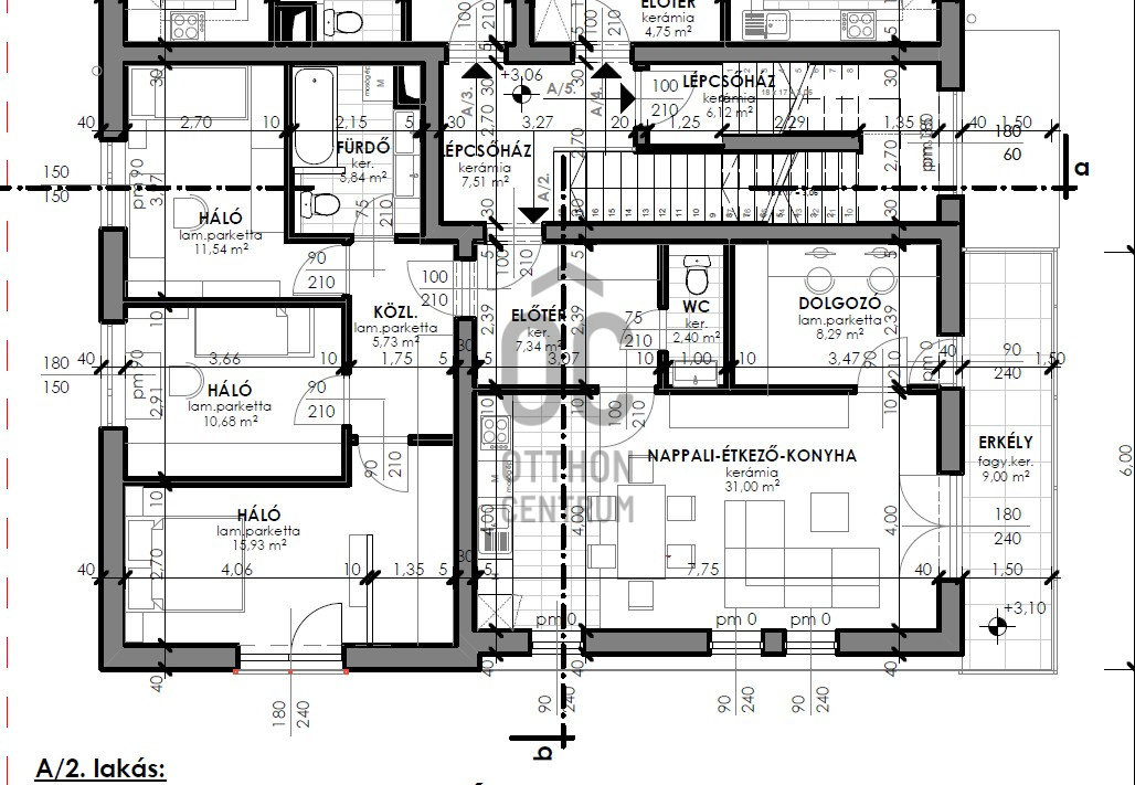
XVI kerület közkedvelt, Zuglóhoz közeli részén eladó új építésű lakások! Egymás mellett épül 2db öt lakásos társasház, egy zöld övezeti új építésű modern környezetben. Ez a lakás az A épület első emeletén található, összesen öt szobás, erkélyes ingatlan, ez ritkaságnak számít.

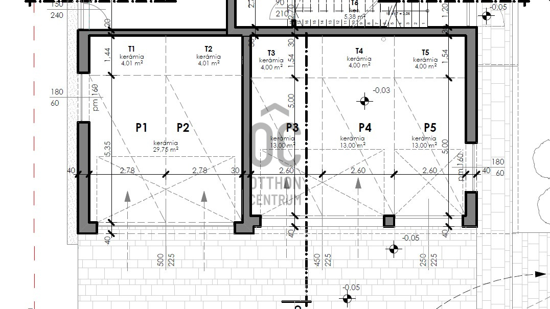
A lakásokhoz külön vásárolható garázsbeálló tárolóval, amiknek az együttes ára 8,5 millió forint. Igény esetén még felszíni, nyitott beálló vásárlására is van lehetőség, ennek ára 4 millió forint.

Főbb paraméterek:
- tégla építés
- modern, műanyag 3 rétegű nyílászárók
- hőszivattyús fűtés
- választható burkolatok, szaniterek

A házak 2026 IV. negyedévére készülnek el, nagy előny, hogy a vevő a saját ízlése és igénye szerint alakíthatja ki új otthonát.

Részletesebb információkért, részletes műszaki tájékoztatásért keressen bizalommal!

Registration Number

U0048460

Property Details

Sales
for sale
Legal Status
new
Character
apartment
Construction Method
brick
Net Size
103.2 m²
Gross Size
107.7 m²
Size of Terrace / Balcony
9 m²
Heating
heat pump
Ceiling Height
265 cm
Number of Levels Within the Property
1
Orientation
South
Staircase Type
enclosed staircase
Condition
Excellent
Condition of Facade
Excellent
Condition of Staircase
Excellent
Neighborhood
quiet, green
Year of Construction
2026
Number of Bathrooms
1
Position
garden-facing
Garage
Separately purchasable
Water
Available
Gas
On the street
Electricity
Available
Sewer
Available

Rooms

open-plan kitchen and living room
31 m²
room
15.93 m²
room
10.68 m²
room
11.54 m²
study
8.29 m²
bathroom-toilet
5.84 m²
entryway
7.34 m²
toilet
2.4 m²
balcony
9 m²
Pomaházi Pál
Pomaházi Pál

Credit Expert

From Our Office Listings - XVI. kerület - Etelköz utca 2-4.

eladó családi ház

Index image
58

eladó családi ház

Index image
Elérhető Otthon Start hitellel
21

kiadó sorház

Index image
22

eladó lakás

Index image
Elérhető Otthon Start hitellel
21

eladó újépítésű lakás

Index image
Elérhető Otthon Start hitellel
5

eladó családi ház

Index image
Elérhető Otthon Start hitellel
27

eladó ikerház

Index image
32

eladó panel lakás

Index image
Elérhető Otthon Start hitellel
13