data_sheet.details.realestate.section.main.otthonstart_flag.label
For sale new construction semi-detached house,
U0048247
Monor
85,600,000 Ft
220,000 €
- 80m²
- 4 Rooms









Monoron újépítésű ikerházfél eladó megbízható, nagy referenciával rendelkező kivitelezőtől.
Főbb jellemzők:
- 30 cm tégla falazat
- két lakás között dupla falazat, közötte hangszigetelés
- műanyag nyílászárók 3 rétegű üvegezéssel
- 10 cm aljzatszigetelés
- 10 cm grafitos hőszigetelés
- 30 cm födém szigetelés
- burkolatok választhatóak 5000 Ft/m2-ig
- inverteres split klíma a nappaliban
- fűtés és melegvíz ellátás hőszivattyúval történik
- padló és radiátoros fűtés
- telekméret: 1. lakás: 274 m2
2. lakás: 426 m2
- csatorna az utcában
- biológiai szennyvíztisztító berendezés (ha a városi szennyvíztisztító telep bővítése korábban elkészül, mint a lakóépület, akkor csatorna rákötés)
- lakásonként 3 fázis
- H tarifa igény szerint!!
- gázcsonk a telken belül
Várható átadás 2026 február
A környék nyugodt, fiatalos.
A ház mindkét lakása eladó külön-külön!
CSOK, babaváró és 5% áfa visszaigénylés!
Hitellel kapcsolatos kérdésekben is állunk rendelkezésére.
További kérdés esetén keressen bizalommal.
Főbb jellemzők:
- 30 cm tégla falazat
- két lakás között dupla falazat, közötte hangszigetelés
- műanyag nyílászárók 3 rétegű üvegezéssel
- 10 cm aljzatszigetelés
- 10 cm grafitos hőszigetelés
- 30 cm födém szigetelés
- burkolatok választhatóak 5000 Ft/m2-ig
- inverteres split klíma a nappaliban
- fűtés és melegvíz ellátás hőszivattyúval történik
- padló és radiátoros fűtés
- telekméret: 1. lakás: 274 m2
2. lakás: 426 m2
- csatorna az utcában
- biológiai szennyvíztisztító berendezés (ha a városi szennyvíztisztító telep bővítése korábban elkészül, mint a lakóépület, akkor csatorna rákötés)
- lakásonként 3 fázis
- H tarifa igény szerint!!
- gázcsonk a telken belül
Várható átadás 2026 február
A környék nyugodt, fiatalos.
A ház mindkét lakása eladó külön-külön!
CSOK, babaváró és 5% áfa visszaigénylés!
Hitellel kapcsolatos kérdésekben is állunk rendelkezésére.
További kérdés esetén keressen bizalommal.
Registration Number
U0048247
Property Details
Sales
for sale
Legal Status
new
Character
house
Construction Method
brick
Net Size
80 m²
Gross Size
80 m²
Plot Size
426.8 m²
Heating
heat pump
Ceiling Height
275 cm
Orientation
South
Condition
Excellent
Condition of Facade
Excellent
Neighborhood
quiet, good transport, green
Year of Construction
2025
Number of Bathrooms
1
Water
Available
Gas
Available
Electricity
Available
Sewer
On the street
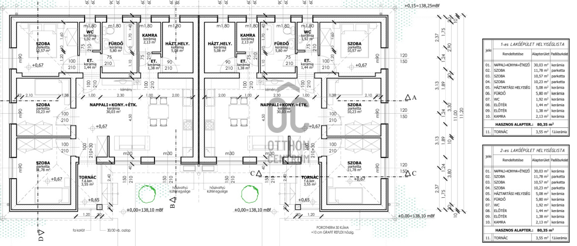
Rooms
open-plan kitchen and living room
30.03 m²
room
11.78 m²
room
10.57 m²
room
10.23 m²
utility room
5.08 m²
bathroom
5.8 m²
toilet-washbasin
1.92 m²
corridor
1.44 m²
corridor
1.38 m²
pantry
2.13 m²

Joó Krisztina
Credit Expert