data_sheet.details.realestate.section.main.otthonstart_flag.label
For sale new construction row house,
U0048217
Bocskaikert
73,900,000 Ft
189,000 €
- 75.3m²
- 4 Rooms














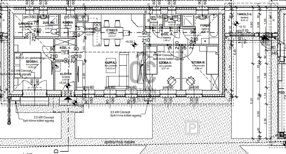
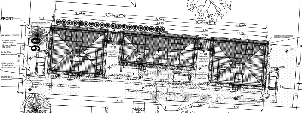
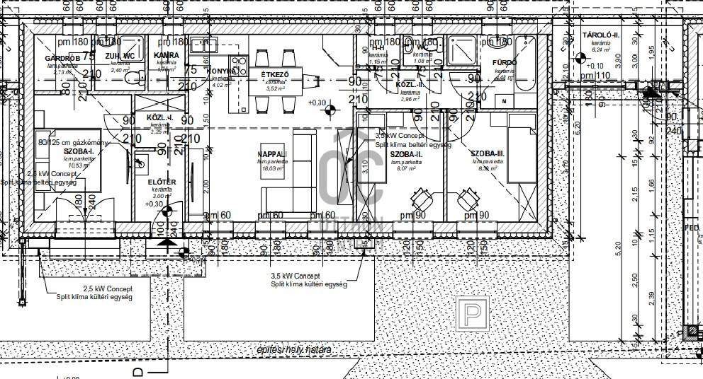
Bocskaikert központjában új 3 lakásos sorház épül az alábbi paraméterekkel:
-Nappali-amerikai konyha + 3 külön nyíló szoba
-Földszintes kialakítás
-Porotherm 30 falazóblokkból + 15 cm hőszigetelés
-Gázcirkó fűtés, igény szerint padlófűtés
-Betoncserép fedés
-Fedett terasz, épített tároló
-Saját kertrész, gépkocsibeállási lehetőséggel
-Második gépkocsinak van hely az épület előtt
-Klíma, 3 rétegű, hőszigetelt műanyag nyílászárók, minimális rezsi
-Társasház alapító okirattal, önálló helyrajzi számra kerülő lakások, CSOK+ alkalmasak
-A lakóegységek csak a tárolóknál csatlakoznak, ebből fakadóan a lakások teljesen különálló épületek, külön tetőszerkezettel
-Az átgondolt tervezésnek köszönhetően dupla komfortos ingatlanok épülnek, a szülői hálóból külön zuhanyzó és WC nyílik a közös fürdőszoba mellett. A különálló 2. WC mellett még egy háztartási helyiség is helyet kapott.
-A tárolónak vasbeton alap készül, egybe lesz öntve az épülettel, igényesen kerül kivitelezésre
-A középső lakásban a szülői hálóban master bedroom kerül kialakításra, gardrób és fürdő épül, a konyhából pedig egy kamra és háztartási helyiség is nyílik.
Minden helyi célpont kényelmes sétatávolságra található, Debrecen központja még a reggeli csúcsban is 13 perc alatt elérhető.
Az építkezés elkezdődött, 2026. tavaszán költözhető, hitel, CSOK+ igényelhető.
Részletes műszaki tartalommal, megtekintési időponttal kapcsolatban várjuk hívását a hét minden napján!
Bocskaikert, földszintes, sorház, 4 szoba, új építésű
-Nappali-amerikai konyha + 3 külön nyíló szoba
-Földszintes kialakítás
-Porotherm 30 falazóblokkból + 15 cm hőszigetelés
-Gázcirkó fűtés, igény szerint padlófűtés
-Betoncserép fedés
-Fedett terasz, épített tároló
-Saját kertrész, gépkocsibeállási lehetőséggel
-Második gépkocsinak van hely az épület előtt
-Klíma, 3 rétegű, hőszigetelt műanyag nyílászárók, minimális rezsi
-Társasház alapító okirattal, önálló helyrajzi számra kerülő lakások, CSOK+ alkalmasak
-A lakóegységek csak a tárolóknál csatlakoznak, ebből fakadóan a lakások teljesen különálló épületek, külön tetőszerkezettel
-Az átgondolt tervezésnek köszönhetően dupla komfortos ingatlanok épülnek, a szülői hálóból külön zuhanyzó és WC nyílik a közös fürdőszoba mellett. A különálló 2. WC mellett még egy háztartási helyiség is helyet kapott.
-A tárolónak vasbeton alap készül, egybe lesz öntve az épülettel, igényesen kerül kivitelezésre
-A középső lakásban a szülői hálóban master bedroom kerül kialakításra, gardrób és fürdő épül, a konyhából pedig egy kamra és háztartási helyiség is nyílik.
Minden helyi célpont kényelmes sétatávolságra található, Debrecen központja még a reggeli csúcsban is 13 perc alatt elérhető.
Az építkezés elkezdődött, 2026. tavaszán költözhető, hitel, CSOK+ igényelhető.
Részletes műszaki tartalommal, megtekintési időponttal kapcsolatban várjuk hívását a hét minden napján!
Bocskaikert, földszintes, sorház, 4 szoba, új építésű
Registration Number
U0048217
Property Details
Sales
for sale
Legal Status
new
Character
house
Construction Method
brick
Net Size
75.3 m²
Gross Size
81.6 m²
Plot Size
64 m²
Heating
Gas circulator
Ceiling Height
270 cm
Orientation
South
Condition
Excellent
Condition of Facade
Excellent
Neighborhood
good transport, green, central
Year of Construction
2026
Number of Bathrooms
2
Water
Available
Gas
Available
Electricity
Available
Sewer
Available
Storage
Independent
Rooms
room
10.53 m²
room
8.38 m²
room
8.07 m²
entryway
3 m²
dining room
3.52 m²
kitchen
4.02 m²
living room
18.03 m²
bathroom-toilet
2.4 m²
utility room
1.15 m²
toilet-washbasin
1.08 m²
bathroom
4.48 m²
pantry
1.76 m²
corridor
6.21 m²
wardrobe
2.73 m²
storage
6.24 m²

Plébán László
Credit Expert