data_sheet.details.realestate.section.main.otthonstart_flag.label
For sale new construction apartment,
U0048183
Vác, Bácska
77,400,000 Ft
199,000 €
- 54m²
- 3 Rooms
- ground floor
ÖRÖK PANORÁMÁS ÚJ ÉPíTÉSŰ, NAPELEMES LAKÁSOK!
Vácon a Bácska dűlőben kínálunk eladásra teraszos, kertkapcsolatos lakásokat
a PIlis hegységre és a szentendrei szigetre néző panorámával.
Az épület dny-i tájolásának köszönhetően a lakások rendkívül világosak, benapozottak.
Magas műszaki tartalom, igényes kivitelezés referenciákkal bíró kivitelezőtől.
A korszerű technológiának és a napelemes rendszernek köszönhetően egy alacsony
költségen fenntartható értékálló ingatlant vásárolhatunk.
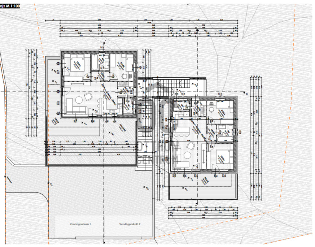
A három szintes négylakásos társasház egy zárt telken kerül kialakításra.
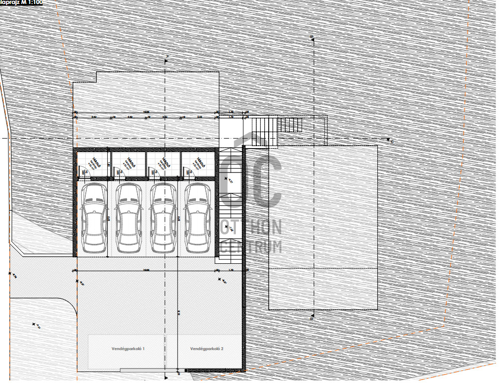
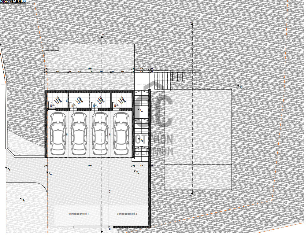
A garázs szinten fedett kocsibeálló és a hozzájuk tartozó tároló opcionálisan megvásárolható.
Valamennyi lakáshoz 1-1 nyitott udvari kocsibeálló tartozik.
Az "A" és "B" épületrészt egy külső lépcsősor választ el egymástól. Mindkét épületben
egy földszinti és egy emeleti lakás kap majd helyet.
GARÁZSZSZINT:
Az "A" épület garázsszintjén négy darab garázs és a hozzájuk tartozó tárolók kerülnek
majd kialakításra. Garázs+tároló 10 M ft ellenében megvásárolható.
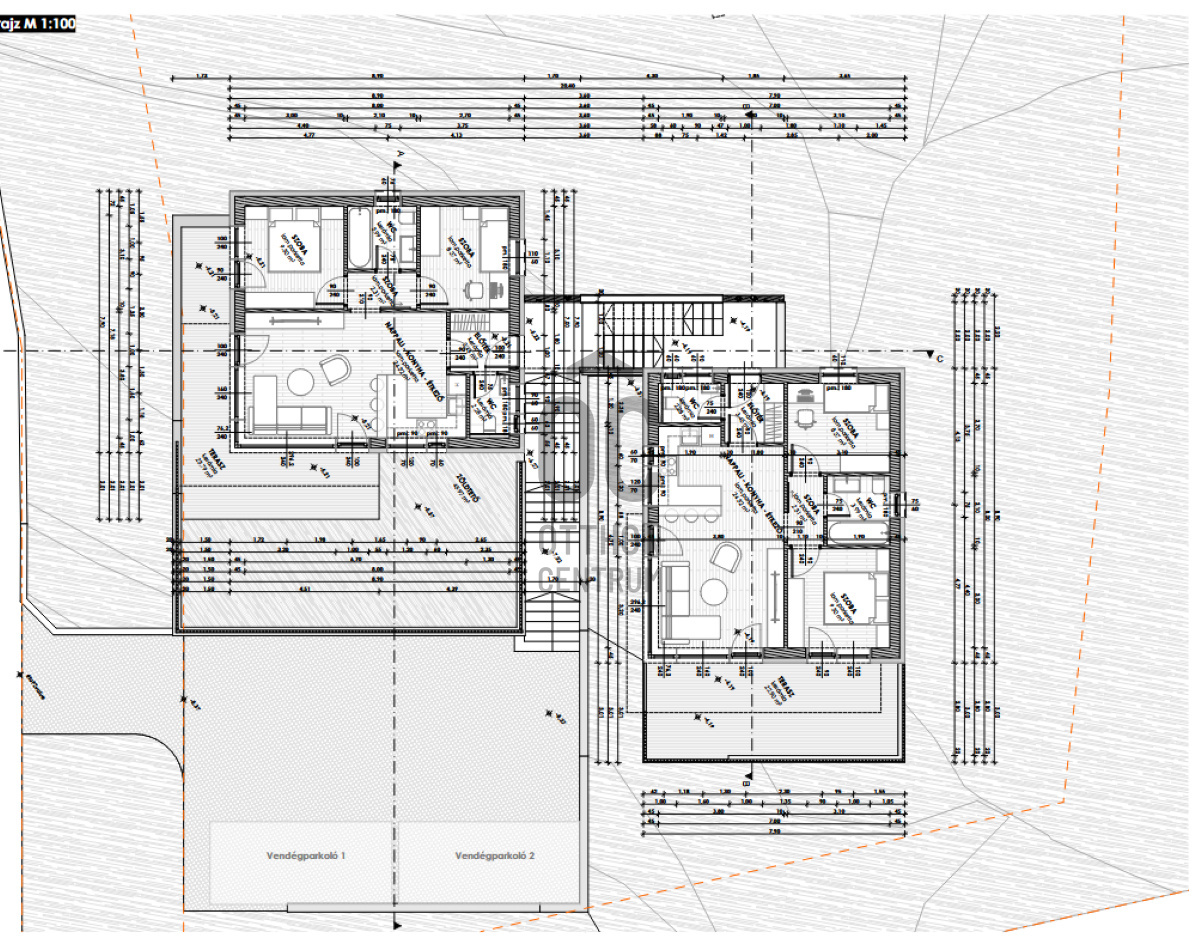
"A" ÉPÜLET:
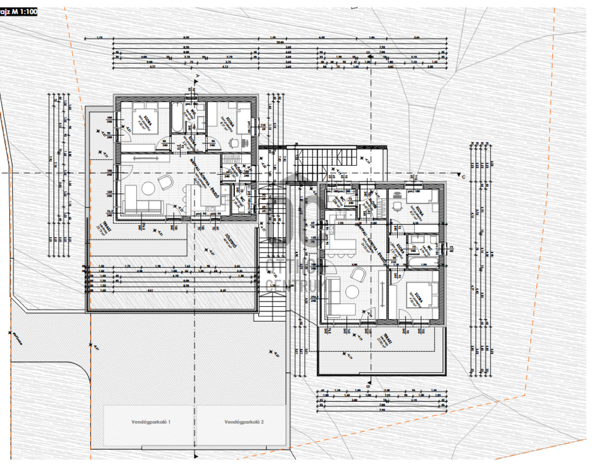
"A1" földszinti lakás 54 nm, 2 háló+nappali, fürdő+wc, wc+mosdó, közlekedő
23,8 nm fedett terasz kertkapcsolattal, udvari kocsibeálló.
"A2" emeleti lakás 54 nm, 2 háló+nappali, fürdő+wc, wc+mosdó, közlekedő
12,2 nm fedett terasz, udvari kocsibeálló.
"B" ÉPÜLET:
"B1" földszinti lakás 54 nm, 2 háló+nappali, fürdő+wc, wc+mosdó, közlekedő
22,9 nm fedett terasz kertkapcsolattal, udvari kocsibeálló.
"B2" emeleti lakás 54 nm, 2 háló+nappali, fürdő+wc, wc+mosdó, közlekedő
14,6 nm fedett terasz, udvari kocsibeálló.
Jelen hírdetés az"B1"-jelű jobb oldali földszinti lakás leírása.
A lakások tervezett átadása 2026 nyara.
MŰSZAKI TARTALOM:
Vasbeton sávalap.Teherhordó falazat 25 cm-es Porotherm falazóelem 15 cm-es homlokzati
szigeteléssel. Monolit vasbeton födém. Korcolt lemez fedés. Műanyag 3 rétegű
nyílászárók szúnyoghálóval redőnnyel szerelve.
Hőszivattyús fűtés és melegvízellátás. Padlófűtés és mennyezethűtés.
5 KW napelemes rendszer tároló akkumulátorral.
Amivel segíteni tudjuk az Ön ingatlanvásárlását:
-ingyenes, bankfüggetlen hitelügyintézés
-jogi háttér
-földhivatali ügyintézés
-energetikai tanúsítvány készítése
-értékbecslés
Amennyiben a hirdetés felkeltette érdeklődését kérem forduljon hozzám bizalommal.
Vácon a Bácska dűlőben kínálunk eladásra teraszos, kertkapcsolatos lakásokat
a PIlis hegységre és a szentendrei szigetre néző panorámával.
Az épület dny-i tájolásának köszönhetően a lakások rendkívül világosak, benapozottak.
Magas műszaki tartalom, igényes kivitelezés referenciákkal bíró kivitelezőtől.
A korszerű technológiának és a napelemes rendszernek köszönhetően egy alacsony
költségen fenntartható értékálló ingatlant vásárolhatunk.
A három szintes négylakásos társasház egy zárt telken kerül kialakításra.
A garázs szinten fedett kocsibeálló és a hozzájuk tartozó tároló opcionálisan megvásárolható.
Valamennyi lakáshoz 1-1 nyitott udvari kocsibeálló tartozik.
Az "A" és "B" épületrészt egy külső lépcsősor választ el egymástól. Mindkét épületben
egy földszinti és egy emeleti lakás kap majd helyet.
GARÁZSZSZINT:
Az "A" épület garázsszintjén négy darab garázs és a hozzájuk tartozó tárolók kerülnek
majd kialakításra. Garázs+tároló 10 M ft ellenében megvásárolható.
"A" ÉPÜLET:
"A1" földszinti lakás 54 nm, 2 háló+nappali, fürdő+wc, wc+mosdó, közlekedő
23,8 nm fedett terasz kertkapcsolattal, udvari kocsibeálló.
"A2" emeleti lakás 54 nm, 2 háló+nappali, fürdő+wc, wc+mosdó, közlekedő
12,2 nm fedett terasz, udvari kocsibeálló.
"B" ÉPÜLET:
"B1" földszinti lakás 54 nm, 2 háló+nappali, fürdő+wc, wc+mosdó, közlekedő
22,9 nm fedett terasz kertkapcsolattal, udvari kocsibeálló.
"B2" emeleti lakás 54 nm, 2 háló+nappali, fürdő+wc, wc+mosdó, közlekedő
14,6 nm fedett terasz, udvari kocsibeálló.
Jelen hírdetés az"B1"-jelű jobb oldali földszinti lakás leírása.
A lakások tervezett átadása 2026 nyara.
MŰSZAKI TARTALOM:
Vasbeton sávalap.Teherhordó falazat 25 cm-es Porotherm falazóelem 15 cm-es homlokzati
szigeteléssel. Monolit vasbeton födém. Korcolt lemez fedés. Műanyag 3 rétegű
nyílászárók szúnyoghálóval redőnnyel szerelve.
Hőszivattyús fűtés és melegvízellátás. Padlófűtés és mennyezethűtés.
5 KW napelemes rendszer tároló akkumulátorral.
Amivel segíteni tudjuk az Ön ingatlanvásárlását:
-ingyenes, bankfüggetlen hitelügyintézés
-jogi háttér
-földhivatali ügyintézés
-energetikai tanúsítvány készítése
-értékbecslés
Amennyiben a hirdetés felkeltette érdeklődését kérem forduljon hozzám bizalommal.
Registration Number
U0048183
Property Details
Sales
for sale
Legal Status
new
Character
apartment
Construction Method
brick
Net Size
54 m²
Gross Size
65.5 m²
Size of Terrace / Balcony
22.9 m²
Heating
values.realestate.futes.26
Ceiling Height
230 cm
Number of Levels Within the Property
1
Orientation
South-West
View
city view, river or lake view, Green view
Staircase Type
none
Condition
Excellent
Condition of Facade
Excellent
Condition of Staircase
Excellent
Year of Construction
2025
Number of Bathrooms
1
Position
garden-facing
Garage
Separately purchasable
Water
Available
Electricity
Available
Connected to Garden
yes
Storage
Separately purchasable
Rooms
bedroom
9.3 m²
bedroom
8.37 m²
open-plan kitchen and living room
24.32 m²
bathroom-toilet
3.99 m²
corridor
2.31 m²
entryway
3.45 m²
toilet-washbasin
2.36 m²
terrace
22.9 m²
Bán Marianna
Credit Expert