data_sheet.details.realestate.section.main.otthonstart_flag.label
For sale new construction semi-detached house,
U0047581
Győrújfalu
84,990,000 Ft
217,000 €
- 93.6m²
- 4 Rooms









A faluk Győre
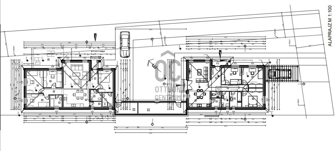
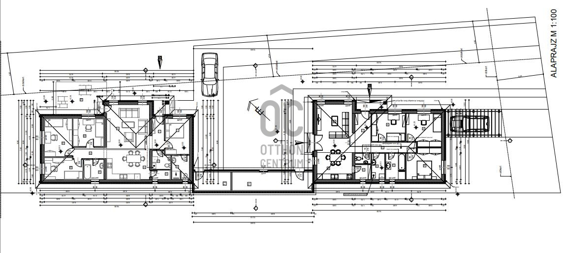
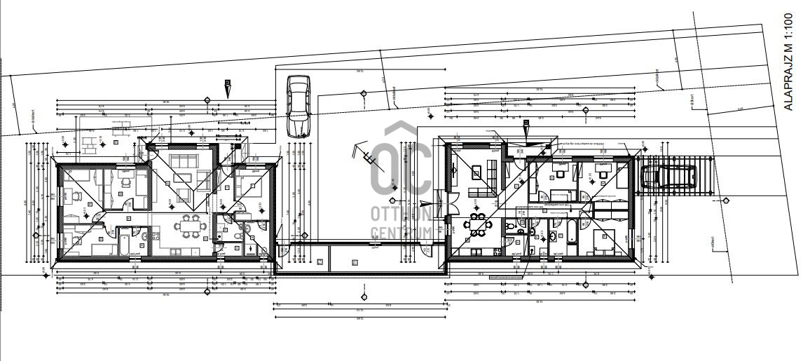
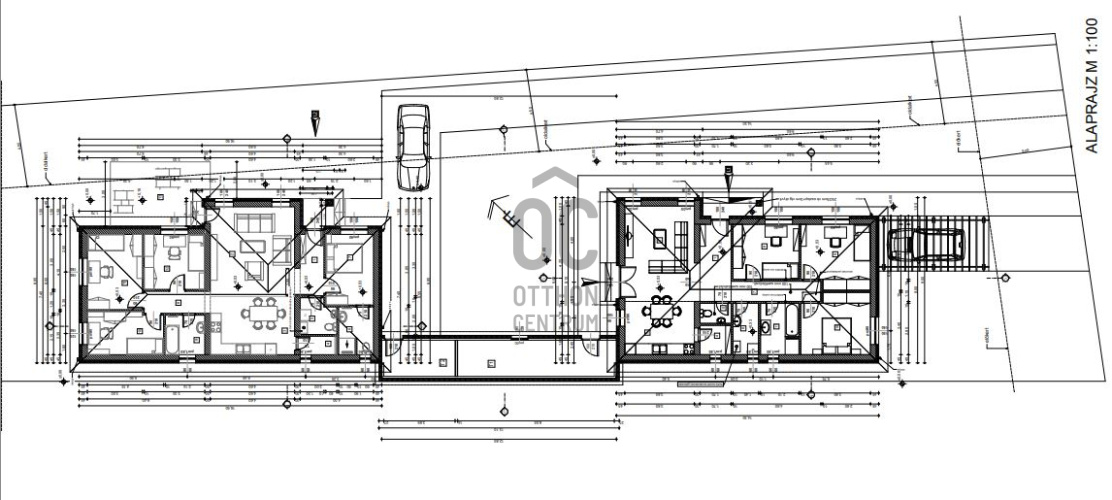
Győr kertvárosában Győrújfalun eladó egy ikerház, amely a minőségi kivitelezésével és kiváló elrendezésével egy fiatalos otthont tud adni. A telekrész 517 nm, a ház pedig 93.66 nm. A két ingatlan külön álló, csak a tárolók kötik össze.
Amerikai konyhás nappali, 3 szoba, fürdőszoba, kamra, külön Wc, háztartási helység, előtér és egy 16.98 nm-es tároló tartozik a házhoz.
Műszaki tartalom:
- 15 cm-es homlokzati szigetelés
- 30-as falazóelem
- 3 rétegű műanyag nyílászárok
- A melegvíz ellátást és a fűtést kondenzációs kazán biztosítja padlófűtéssel
Felár ellenében hőszívattyús fűtés választható., illetve kulcsrakész befejezés kérhető. Átadás ideje 2025 nyár . Az ingatlan fűtéskész ára: 84.900.000
Hitelre van szüksége? Tudunk segíteni!
Az Otthon Centrum az ország egyik legnagyobb és legmegbízhatóbb hitelközvetítőjeként, teljes körű és díjmentes hitel ügyintézéssel, biztosításkötéssel áll rendelkezésére!
Kérje személyre szabott ajánlatunkat Kollégáinktól!
Amerikai konyhás nappali, 3 szoba, fürdőszoba, kamra, külön Wc, háztartási helység, előtér és egy 16.98 nm-es tároló tartozik a házhoz.
Műszaki tartalom:
- 15 cm-es homlokzati szigetelés
- 30-as falazóelem
- 3 rétegű műanyag nyílászárok
- A melegvíz ellátást és a fűtést kondenzációs kazán biztosítja padlófűtéssel
Felár ellenében hőszívattyús fűtés választható., illetve kulcsrakész befejezés kérhető. Átadás ideje 2025 nyár . Az ingatlan fűtéskész ára: 84.900.000
Hitelre van szüksége? Tudunk segíteni!
Az Otthon Centrum az ország egyik legnagyobb és legmegbízhatóbb hitelközvetítőjeként, teljes körű és díjmentes hitel ügyintézéssel, biztosításkötéssel áll rendelkezésére!
Kérje személyre szabott ajánlatunkat Kollégáinktól!
Registration Number
U0047581
Property Details
Sales
for sale
Legal Status
new
Character
house
Construction Method
brick
Net Size
93.6 m²
Gross Size
125 m²
Plot Size
517 m²
Heating
Gas circulator
Ceiling Height
275 cm
Orientation
North
Condition
Excellent
Condition of Facade
Excellent
Neighborhood
good transport
Year of Construction
2025
Number of Bathrooms
1
Water
Available
Gas
Available
Electricity
Available
Sewer
Available
Rooms
entryway
7.4 m²
living room
19.76 m²
open-plan kitchen and dining room
11.02 m²
pantry
2.72 m²
toilet
1.87 m²
utility room
3.92 m²
corridor
5.39 m²
room
10.8 m²
room
12.96 m²
room
12.2 m²
bathroom
5.88 m²
terrace
16.98 m²
terrace
7.8 m²

Dr. Táncos Mónika
Credit Expert