550,000,000 Ft
1,464,000 €
- 258m²
- 8 Rooms
- ground floor
Eladásra kínáljuk ezt a 4 lakásos, társasházat teljes berendezéssel, ahol minden részlet az új tulajdonos sikerét szolgálja.
Nyaraljon családjával, mégis szeparáltan.
Élvezze a közös élményeket családjával vagy baráti társaságával anélkül, hogy lemondana a privát tér adta új szintű kényelemről.
A 4 lakásos, társasház kulcsrakészen, teljes berendezéssel elérhető, és ideális helyszínt kínál a közös pihenéshez és szórakozáshoz.
Miért érdemes ezt választania?
Modern technológia:
Napelemek, klímaberendezés, padlófűtés – az energiatakarékos megoldások biztosítják az alacsony fenntartási költségeket
Kulcsrakész Kényelem:
Minden lakás teljesen berendezett és gépesített – nem kell időt és energiát fordítania a berendezésre.
Az ingatlan azonnal költözhető, így az egész család vagy baráti társaság azonnal élvezheti a kényelmet.
Tágas és Modern Lakások:
A lakások modern dizájnja és tágas terei biztosítják, hogy mindenki kényelmesen elférjen.
Legyen szó családi nyaralásról vagy baráti összejövetelekről, mindenki számára ideális helyet kínál.
Energiatakarékos megoldások:
Napelemek, klímaberendezés és padlófűtés – a fenntartási költségek minimálisak.
Impozáns Wellness Részleg:
Élvezze a kültéri medencét, a szaunát, ahol a közös pihenés új dimenzióba lép.
A wellness részleg tökéletes hely a közös relaxációra, kikapcsolódásra és szórakozásra.
Kényelmes Parkolás:
4 saját parkolóhely biztosítja a kényelmes parkolást, így mindenki könnyen hozzáférhet a járművéhez, legyen szó akár családi kirándulásokról, akár baráti programokról.
Biztonságos és Kényelmes Környezet:
A zárt lépcsőház és a tágas teraszok ideálisak a közös étkezésekhez, társasági eseményekhez vagy egyszerűen csak a nyugodt pihenéshez.
A biztonságos környezet maximális kényelmet és privát szférát biztosít.
Ingatlan Specifikációk:
Lakások száma: 4 exkluzív lakás, mindegyik ideális családoknak és baráti társaságoknak
69,05 m²: Tágas terek, ideális nagyobb családoknak és közös eseményekhez
57,48 m²: Praktikus kialakítás, tökéletes kisebb családoknak vagy baráti összejövetelekhez
65,07 m²: Prémium kivitelezés, nagy terasz a közös pillanatokhoz és szórakozáshoz
53,87 m²: Kompakt luxus, privát szféra a nyugodt pihenéshez és relaxációhoz
Közös Élmények és Kényelem:
Ez a társasház nem csupán egy ingatlan – egy kivételes helyszín a családi nyaralásokhoz és baráti összejövetelekhez.
Minden részlete a közös élményekre és a kényelmes életstílusra lett tervezve, hogy az Ön és szerettei minden pillanatot maximálisan kiélvezhessenek.
Vegye fel velünk a kapcsolatot még ma, és fedezze fel, hogyan válhat ez a ingatlan az új közös kedvenc helyszínévé.
Élvezze a közös élményeket családjával vagy baráti társaságával anélkül, hogy lemondana a privát tér adta új szintű kényelemről.
A 4 lakásos, társasház kulcsrakészen, teljes berendezéssel elérhető, és ideális helyszínt kínál a közös pihenéshez és szórakozáshoz.
Miért érdemes ezt választania?
Modern technológia:
Napelemek, klímaberendezés, padlófűtés – az energiatakarékos megoldások biztosítják az alacsony fenntartási költségeket
Kulcsrakész Kényelem:
Minden lakás teljesen berendezett és gépesített – nem kell időt és energiát fordítania a berendezésre.
Az ingatlan azonnal költözhető, így az egész család vagy baráti társaság azonnal élvezheti a kényelmet.
Tágas és Modern Lakások:
A lakások modern dizájnja és tágas terei biztosítják, hogy mindenki kényelmesen elférjen.
Legyen szó családi nyaralásról vagy baráti összejövetelekről, mindenki számára ideális helyet kínál.
Energiatakarékos megoldások:
Napelemek, klímaberendezés és padlófűtés – a fenntartási költségek minimálisak.
Impozáns Wellness Részleg:
Élvezze a kültéri medencét, a szaunát, ahol a közös pihenés új dimenzióba lép.
A wellness részleg tökéletes hely a közös relaxációra, kikapcsolódásra és szórakozásra.
Kényelmes Parkolás:
4 saját parkolóhely biztosítja a kényelmes parkolást, így mindenki könnyen hozzáférhet a járművéhez, legyen szó akár családi kirándulásokról, akár baráti programokról.
Biztonságos és Kényelmes Környezet:
A zárt lépcsőház és a tágas teraszok ideálisak a közös étkezésekhez, társasági eseményekhez vagy egyszerűen csak a nyugodt pihenéshez.
A biztonságos környezet maximális kényelmet és privát szférát biztosít.
Ingatlan Specifikációk:
Lakások száma: 4 exkluzív lakás, mindegyik ideális családoknak és baráti társaságoknak
69,05 m²: Tágas terek, ideális nagyobb családoknak és közös eseményekhez
57,48 m²: Praktikus kialakítás, tökéletes kisebb családoknak vagy baráti összejövetelekhez
65,07 m²: Prémium kivitelezés, nagy terasz a közös pillanatokhoz és szórakozáshoz
53,87 m²: Kompakt luxus, privát szféra a nyugodt pihenéshez és relaxációhoz
Közös Élmények és Kényelem:
Ez a társasház nem csupán egy ingatlan – egy kivételes helyszín a családi nyaralásokhoz és baráti összejövetelekhez.
Minden részlete a közös élményekre és a kényelmes életstílusra lett tervezve, hogy az Ön és szerettei minden pillanatot maximálisan kiélvezhessenek.
Vegye fel velünk a kapcsolatot még ma, és fedezze fel, hogyan válhat ez a ingatlan az új közös kedvenc helyszínévé.
Registration Number
U0047021
Property Details
Sales
for sale
Legal Status
new
Character
apartment
Construction Method
brick
Net Size
258 m²
Gross Size
258 m²
Size of Terrace / Balcony
78.6 m²
Heating
renewable
Ceiling Height
268 cm
Number of Levels Within the Property
1
Orientation
South-West
View
city view
Staircase Type
enclosed staircase
Condition
Excellent
Condition of Facade
Excellent
Condition of Staircase
Excellent
Neighborhood
good transport, green, central
Year of Construction
2024
Number of Bathrooms
4
Position
street-facing
Condominium Garden
yes
Garage
Included in the price
Water
Available
Electricity
Available
Sewer
Available
Connected to Garden
yes
Distance to Waterfront
more than 500 meters
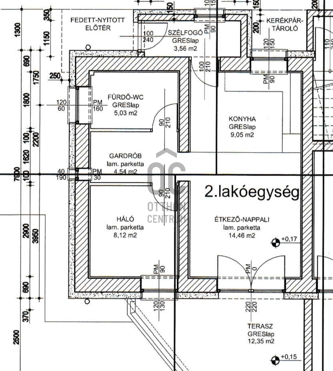
Rooms
open-plan living and dining room
21.26 m²
bedroom
10.6 m²
kitchen
8.03 m²
bathroom-toilet
5.69 m²
terrace
19.65 m²
open-plan living and dining room
21.26 m²
bedroom
10.6 m²
kitchen
8.03 m²
bathroom-toilet
5.69 m²
open-plan living and dining room
19.58 m²
bedroom
11.4 m²
open-plan kitchen and dining room
8.06 m²
bathroom-toilet
6.13 m²
terrace
19.65 m²
living room
19.58 m²
bedroom
11.4 m²
open-plan kitchen and dining room
8.06 m²
terrace
19.65 m²
Dienes László
Credit Expert