180,000,000 Ft
460,000 €
- 230m²
- 4 Rooms
KÖLTÖZZÖN BE A JÖVŐJÉBE !
CSAK AZ OTTHON CENTRUM KIEMELT KÍNÁLATÁBAN !
Figyelmükbe ajánlom a festői Cserszegtomaj legújabb ékkövét , egy modern , új építésű , eladó családi házat . Ez a páratlan ingatlan a letisztult dizájnt , modern élet stílust, kényelmet és a prémium anyaghasználatot ötvözi ,tökéletes otthont kínálva Ön és családja számára.
AZ INGATLAN FŐBB JELLEMZŐI:
- Ár euroban : 547.500€
- 210 m2 lakófelület + dupla terasz , a hátsó terasz grillezésre alkalmas
- 1519 m2 telek terület
- Falazat : Porotherm 30 tégla + 15 cm Austrotherm hőszigetelést.
- Tető : 25 cm vastag tetőszigetelés, Terra antracit cserépfedés.
- Tetőtér: Beépíthető, ideális belmagassággal, víz-villany-csatorna felvezetve
- Fődém: Monolit vasbeton fődém
- Elektromosság:3x20 A , elérhető H-áram tarifával
- Nyílászárók: 3 rétegű műanyag szerkezetű nyílászárók elektromos redőnyökkel, nappaliban zsaluziával felszerelt
- Fűtés és Hűtés: Padlófűtés és mennyezet hűtés, 16 kW-os Fisher hőszivattyús rendszer, mely a melegvíz ellátását is biztosítja.
- Hőszabályozás:Helyiségek külön és központilag termosztáttal vezérelhetők.
- Teraszon üveg korlát
- cpl beltéri ajtók
- Konyhabútor benne van az árban
-Wellis szaniterek
- Medence: 5x3 méteres, fűtés nélküli medence.
- A ház okosítása lehetséges
- Belső kaputelefon betelepítve.
- Hörmann elektromos garázskapu
- Kerítés: elől antracit lemez kapu és 2 szárnyú nyíló elektromos kapu ,oldalt antracit drótfonat
-Parkosított kert
Kiváló ingatlan azok számára, akik minden igényt kielégítő, esztétikus környezetben szeretnék megtapasztalni a balatoni életstílust ,közel a Balatonhoz és Hévízhez , mind otthonként , mind nyaralóként használva.
AMENNYIBEN FELKELTETTEM ÉRDEKLŐDÉSÉT , FORDULJON HOZZÁM BIZALOMMAL , VÁROM HÍVÁSÁT AZ ORSZÁG LEGNAGYOBB ÉS LEGELISMERTEBB INGATLANKÖZVETÍTŐ HÁLÓZATA NEVÉBEN!
Figyelmükbe ajánlom a festői Cserszegtomaj legújabb ékkövét , egy modern , új építésű , eladó családi házat . Ez a páratlan ingatlan a letisztult dizájnt , modern élet stílust, kényelmet és a prémium anyaghasználatot ötvözi ,tökéletes otthont kínálva Ön és családja számára.
AZ INGATLAN FŐBB JELLEMZŐI:
- Ár euroban : 547.500€
- 210 m2 lakófelület + dupla terasz , a hátsó terasz grillezésre alkalmas
- 1519 m2 telek terület
- Falazat : Porotherm 30 tégla + 15 cm Austrotherm hőszigetelést.
- Tető : 25 cm vastag tetőszigetelés, Terra antracit cserépfedés.
- Tetőtér: Beépíthető, ideális belmagassággal, víz-villany-csatorna felvezetve
- Fődém: Monolit vasbeton fődém
- Elektromosság:3x20 A , elérhető H-áram tarifával
- Nyílászárók: 3 rétegű műanyag szerkezetű nyílászárók elektromos redőnyökkel, nappaliban zsaluziával felszerelt
- Fűtés és Hűtés: Padlófűtés és mennyezet hűtés, 16 kW-os Fisher hőszivattyús rendszer, mely a melegvíz ellátását is biztosítja.
- Hőszabályozás:Helyiségek külön és központilag termosztáttal vezérelhetők.
- Teraszon üveg korlát
- cpl beltéri ajtók
- Konyhabútor benne van az árban
-Wellis szaniterek
- Medence: 5x3 méteres, fűtés nélküli medence.
- A ház okosítása lehetséges
- Belső kaputelefon betelepítve.
- Hörmann elektromos garázskapu
- Kerítés: elől antracit lemez kapu és 2 szárnyú nyíló elektromos kapu ,oldalt antracit drótfonat
-Parkosított kert
Kiváló ingatlan azok számára, akik minden igényt kielégítő, esztétikus környezetben szeretnék megtapasztalni a balatoni életstílust ,közel a Balatonhoz és Hévízhez , mind otthonként , mind nyaralóként használva.
AMENNYIBEN FELKELTETTEM ÉRDEKLŐDÉSÉT , FORDULJON HOZZÁM BIZALOMMAL , VÁROM HÍVÁSÁT AZ ORSZÁG LEGNAGYOBB ÉS LEGELISMERTEBB INGATLANKÖZVETÍTŐ HÁLÓZATA NEVÉBEN!
Registration Number
U0046787
Property Details
Sales
for sale
Legal Status
new
Character
house
Construction Method
brick
Net Size
230 m²
Gross Size
270 m²
Plot Size
1,519 m²
Size of Terrace / Balcony
47.3 m²
Heating
heat pump
Ceiling Height
270 cm
Number of Levels Within the Property
2
Orientation
South-West
View
Green view
Condition
Excellent
Condition of Facade
Excellent
Neighborhood
quiet, good transport, green
Year of Construction
2023
Number of Bathrooms
3
Garage
Included in the price
Garage Spaces
2
Water
Available
Electricity
Available
Sewer
Available
Rooms
entryway
14.91 m²
dining room
11.75 m²
kitchen
10.93 m²
living room
28.35 m²
terrace
24.91 m²
corridor
5.7 m²
toilet-washbasin
3.01 m²
storage
5.24 m²
room
10.44 m²
room
10.41 m²
bathroom
7.41 m²
room
12.31 m²
wardrobe
5.13 m²
bathroom-toilet
6.1 m²
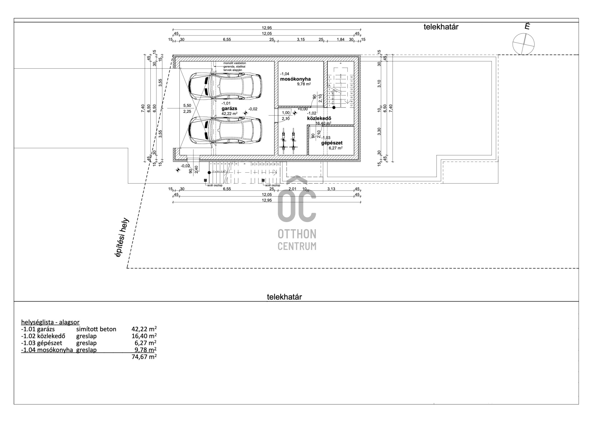
garage
42.22 m²
corridor
16.4 m²
laundry room
9.78 m²
utility room
9.78 m²
terrace
22.42 m²