146,660,000 Ft
378,000 €
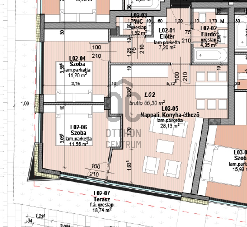
- 64m²
- 3 Rooms
- ground floor




















Prémium, panorámás, teraszos lakások Alsóörsön, szinte a vízparton!
Megvételre kínálok Alsóörsön, a strandtól és a kikötőtől gyalog távolságra,luxus minőségben épülő, panorámás, teraszos lakásokat.
Az ingatlanok méretei 35nm-től, 156nm-ig lesznek elérhetőek. Összesen 15 db lakás, mélygarázzsal, tarolókkal. Már 3 lakás elkelt!
Teljesen egyedi módon, saját személyre szabottan lehet a lakásokat megtervezni. Az épület 5 szintes lesz, a pince szinten kapnak helyet a tárolók és a gépkocsi beállók.
Erről az új építésű projektről tudni kell, hogy a földszintjén négy db, az első emeleten öt darab, a második emeleten is szintén öt db lakás kerül kialakításra, és a harmadik szintre egy lakást tervezett építtető.
Ahhoz, hogy kényelmesen tudja megközelíteni a szinteket, építtető lifttel tervezi a feljutás a szintekre.
Az általam kínált lakás 38 m2-es, de a többi lakást is 156 m2-ig tervezték meg, és kínáljuk eladásra.
A projekt ott tart, hogy Ön ha most felkeres bennünket és elmondja kívánságát, akkor ezek a lakások még személyre szabottan alakíthatóak.
Az épületegyüttesnél a gépkocsi beállók és tárolók a pinceszinten kapnak helyet.
Mélygarázs parkoló opcionálisan lesz vásárolható, 14 db, valamint a kültéri parkolónál 6 db kerül kialakításra.
Tájékoztatjuk kedves ügyfeleinket, hogy az épülő lakások főbb műszaki paraméterei a következők:
* Prémium hideg és meleg burkolatokkal lesznek ellátva,
* Belső nyílászárók német min. MDF borítású dekorfóliával és erősített CPI fóliával válaszhatóak felárral, több színben
* Építtető prémium szanitereket tervezett
* Bejárati ajtó biztonsági MABISZ minősített
* Külső nyílászárók hő és hangszigeltek, német minőségben a hozzá tartozó elektromos redőnnyel, külső párkányokkal, amit készre szerelnek
*A lakások fűtési rendszere hőszivattyús megoldással van tervezve, amely a meleg vizet és a lakások hűtését-fűtését is biztosítja, mennyezet ill. padlófűtéssel.
* A lakások válaszfalazata 10 cm-es Leier N+F téglával tervezett
* A teherhordó falazatát Leier vagy Porotherm 30 N + vázkitöltéssel tervezték
* Az elválasztó falazat hangszigetelt, hanggátlós Silka termékkel tervezett
* Födéme vasbeton, vasalata betonváz
* Külső szigetelése Dryvet rendszerű, 12 cm-es nikecel
A munkálatok, építkezés az elmúlt év szeptemberében megindult, a tervezett átadása 2023. október vége.
Amennyiben felkeltettem érdeklődését ezek után a lakások után, úgy akár a fsz-en, akár az emeleti részen szeretne vásárolni, kérem ne habozzon, még ma hívjon, és egyeztessünk.
Várom megtisztelő hívását!
Az ingatlanok méretei 35nm-től, 156nm-ig lesznek elérhetőek. Összesen 15 db lakás, mélygarázzsal, tarolókkal. Már 3 lakás elkelt!
Teljesen egyedi módon, saját személyre szabottan lehet a lakásokat megtervezni. Az épület 5 szintes lesz, a pince szinten kapnak helyet a tárolók és a gépkocsi beállók.
Erről az új építésű projektről tudni kell, hogy a földszintjén négy db, az első emeleten öt darab, a második emeleten is szintén öt db lakás kerül kialakításra, és a harmadik szintre egy lakást tervezett építtető.
Ahhoz, hogy kényelmesen tudja megközelíteni a szinteket, építtető lifttel tervezi a feljutás a szintekre.
Az általam kínált lakás 38 m2-es, de a többi lakást is 156 m2-ig tervezték meg, és kínáljuk eladásra.
A projekt ott tart, hogy Ön ha most felkeres bennünket és elmondja kívánságát, akkor ezek a lakások még személyre szabottan alakíthatóak.
Az épületegyüttesnél a gépkocsi beállók és tárolók a pinceszinten kapnak helyet.
Mélygarázs parkoló opcionálisan lesz vásárolható, 14 db, valamint a kültéri parkolónál 6 db kerül kialakításra.
Tájékoztatjuk kedves ügyfeleinket, hogy az épülő lakások főbb műszaki paraméterei a következők:
* Prémium hideg és meleg burkolatokkal lesznek ellátva,
* Belső nyílászárók német min. MDF borítású dekorfóliával és erősített CPI fóliával válaszhatóak felárral, több színben
* Építtető prémium szanitereket tervezett
* Bejárati ajtó biztonsági MABISZ minősített
* Külső nyílászárók hő és hangszigeltek, német minőségben a hozzá tartozó elektromos redőnnyel, külső párkányokkal, amit készre szerelnek
*A lakások fűtési rendszere hőszivattyús megoldással van tervezve, amely a meleg vizet és a lakások hűtését-fűtését is biztosítja, mennyezet ill. padlófűtéssel.
* A lakások válaszfalazata 10 cm-es Leier N+F téglával tervezett
* A teherhordó falazatát Leier vagy Porotherm 30 N + vázkitöltéssel tervezték
* Az elválasztó falazat hangszigetelt, hanggátlós Silka termékkel tervezett
* Födéme vasbeton, vasalata betonváz
* Külső szigetelése Dryvet rendszerű, 12 cm-es nikecel
A munkálatok, építkezés az elmúlt év szeptemberében megindult, a tervezett átadása 2023. október vége.
Amennyiben felkeltettem érdeklődését ezek után a lakások után, úgy akár a fsz-en, akár az emeleti részen szeretne vásárolni, kérem ne habozzon, még ma hívjon, és egyeztessünk.
Várom megtisztelő hívását!
Registration Number
U0044323
Property Details
Sales
for sale
Legal Status
new
Character
apartment
Construction Method
brick
Net Size
64 m²
Gross Size
73 m²
Size of Terrace / Balcony
7 m²
Heating
renewable
Ceiling Height
265 cm
Orientation
South
View
river or lake view
Staircase Type
enclosed staircase
Condition
Excellent
Condition of Facade
Excellent
Condition of Staircase
Excellent
Neighborhood
quiet
Year of Construction
2023
Number of Bathrooms
1
Position
garden-facing
Garage
Separately purchasable
Water
Available
Electricity
Available
Sewer
Available
Elevator
available
Storage
Independent
Distance to Waterfront
200 meters
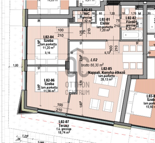
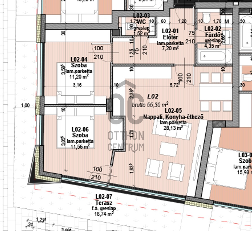
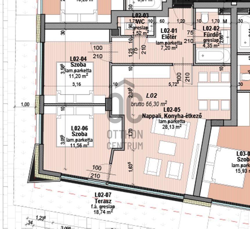
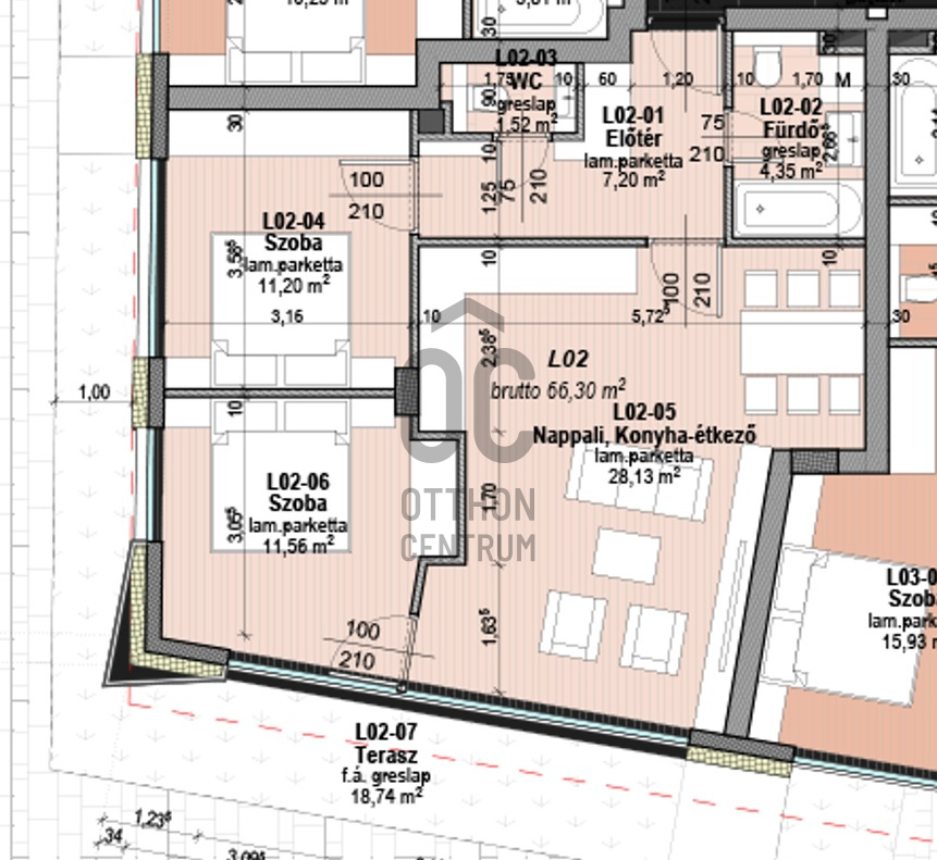
Rooms
living room
28 m²
room
11.2 m²
room
11.6 m²
bathroom
5 m²