169,000,000 Ft
443,000 €
- 161m²
- 5 Rooms
*** SUBURBAN PANORAMIC VIEW! ***
A budai agglomeráció egyik gyöngyszemén, Budajenőn, szőlőbirtokok lankái mellett eladó két szintes új építésű ikerház kerttel, saját zárt gépkocsi beállóval és sok extra lehetőséggel.
Az energiatakarékos, megújuló energiás ház a Budai Tájvédelmi körzet szomszédságában épül magas műszaki színvonalú Leier alapanyagokból.
Budajenő Telki szomszédságában található, nyugodt, kiváló közbiztonsággal, csodás tiszta levegővel rendelkező település Budapesttől mindössze pár km-re. Főként csendet, nyugalmat, természetközeliséget, kertvárosias otthont kereső Családok számára ajánljuk.
Jelen Otthon saját grill terasszal és tetőterasszal is rendelkezik, ahonnan 1 jó pohár borral a kezünkben csodálhatjuk esténként a naplementét. A házhoz saját kert tartozik, mely a gyerekeknek, vagy kertészkedőknek külön "Paradicsom".
A házba a bejárati ajtón és a saját garázsból tudunk belépni; az előtérből nyílik egy mellékhelység.
A közlekedőből jutunk el a nagyon jó benapozottságú amerikai konyhás nappaliba, ahonnan nyílik egy kamra, egy dolgozószoba, illetve a terasz és a saját kert.
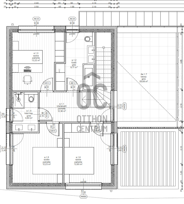
Az emeletre az előtérből jutunk fel, ahol a 3 db hálószoba és 1 kádas, illetve 1 zuhanyzós fürdőszoba található. Az emelet közlekedőjéből jutunk ki a tetőteraszra.
A házak műszaki jellemzői:
•20 cm-es grafitos szigetelés;
•3 rétegű üvegezés;
•Hőszivattyú - padlófűtés (opcionálisan mennyezeti fűtés és hűtés/klíma);
•Napelem előkészítés;
•Okos otthon előkészítés;
•Riasztó előkészítés;
•Redőny (opcionális);
•Térkövezett gépkocsi bejáró, felszíni beálló és kerti járda.
A házhoz 1 db önálló zárt garázsbeálló és 1 felszíni beálló tartozik.
Elérhető házak:
126+70 nm – 5 szobás, 1 garázs + 1 felszíni beálló – 159,5 M Ft
Várjuk megtisztelő érdeklődését!
Egyedi igényekre szabott lakáshitelekkel állunk rendelkezésére. Bankfüggetlen hitelcentrumunk az országban elérhető összes bank és hitelintézet ajánlatát versenyezteti az Ön számára díjmentesen. Munkatársaink nagy szakmai tapasztalattal várják Önt az előre egyeztetett időpontban akár a normál munkaidő után is.
#budajenő #telki # budaörs #budakeszi #budaiaggló #budaiagglomeráció#kertváros #ingatlan #eladóingatlan #zöldhitel #zöldcsok #csok #otthoncentrumörs #ingatlanszakértő #budapest #budapestiingatlanok #hitel #solymár #üröm #nagykovácsi #páty
Az energiatakarékos, megújuló energiás ház a Budai Tájvédelmi körzet szomszédságában épül magas műszaki színvonalú Leier alapanyagokból.
Budajenő Telki szomszédságában található, nyugodt, kiváló közbiztonsággal, csodás tiszta levegővel rendelkező település Budapesttől mindössze pár km-re. Főként csendet, nyugalmat, természetközeliséget, kertvárosias otthont kereső Családok számára ajánljuk.
Jelen Otthon saját grill terasszal és tetőterasszal is rendelkezik, ahonnan 1 jó pohár borral a kezünkben csodálhatjuk esténként a naplementét. A házhoz saját kert tartozik, mely a gyerekeknek, vagy kertészkedőknek külön "Paradicsom".
A házba a bejárati ajtón és a saját garázsból tudunk belépni; az előtérből nyílik egy mellékhelység.
A közlekedőből jutunk el a nagyon jó benapozottságú amerikai konyhás nappaliba, ahonnan nyílik egy kamra, egy dolgozószoba, illetve a terasz és a saját kert.
Az emeletre az előtérből jutunk fel, ahol a 3 db hálószoba és 1 kádas, illetve 1 zuhanyzós fürdőszoba található. Az emelet közlekedőjéből jutunk ki a tetőteraszra.
A házak műszaki jellemzői:
•20 cm-es grafitos szigetelés;
•3 rétegű üvegezés;
•Hőszivattyú - padlófűtés (opcionálisan mennyezeti fűtés és hűtés/klíma);
•Napelem előkészítés;
•Okos otthon előkészítés;
•Riasztó előkészítés;
•Redőny (opcionális);
•Térkövezett gépkocsi bejáró, felszíni beálló és kerti járda.
A házhoz 1 db önálló zárt garázsbeálló és 1 felszíni beálló tartozik.
Elérhető házak:
126+70 nm – 5 szobás, 1 garázs + 1 felszíni beálló – 159,5 M Ft
Várjuk megtisztelő érdeklődését!
Egyedi igényekre szabott lakáshitelekkel állunk rendelkezésére. Bankfüggetlen hitelcentrumunk az országban elérhető összes bank és hitelintézet ajánlatát versenyezteti az Ön számára díjmentesen. Munkatársaink nagy szakmai tapasztalattal várják Önt az előre egyeztetett időpontban akár a normál munkaidő után is.
#budajenő #telki # budaörs #budakeszi #budaiaggló #budaiagglomeráció#kertváros #ingatlan #eladóingatlan #zöldhitel #zöldcsok #csok #otthoncentrumörs #ingatlanszakértő #budapest #budapestiingatlanok #hitel #solymár #üröm #nagykovácsi #páty
Registration Number
U0041909
Property Details
Sales
for sale
Legal Status
new
Character
house
Construction Method
brick
Net Size
161 m²
Gross Size
196 m²
Plot Size
433 m²
Size of Terrace / Balcony
44.5 m²
Heating
heat pump
Ceiling Height
275 cm
Number of Levels Within the Property
2
Orientation
South
View
Green view, Other
Condition
Excellent
Condition of Facade
Excellent
Neighborhood
quiet, good transport, green
Year of Construction
2025
Number of Bathrooms
2
Garage
Included in the price
Garage Spaces
1
Water
Available
Gas
On the street
Electricity
Available
Sewer
Available
Rooms
entryway
7.61 m²
toilet
1.96 m²
study
10.21 m²
living room
19.61 m²
dining room
11.65 m²
kitchen
9.63 m²
pantry
2.07 m²
garage
26.87 m²
terrace
16.81 m²
corridor
12.94 m²
bathroom-toilet
8.77 m²
bedroom
12.22 m²
bathroom-toilet
4.6 m²
bedroom
12.23 m²
bedroom
12.6 m²
values.realestate.szobatipus.49
26.68 m²
Kőrösi Róbert
Credit Expert