For rent family house, H509815
Budapest III. kerület, Testvérhegy

550,000 Ft

1,440 €

  • 200m²
  • 8 Rooms

Exceptional opportunity at the foot of Testvérhegy – spacious family house with a huge garden and enormous potential!

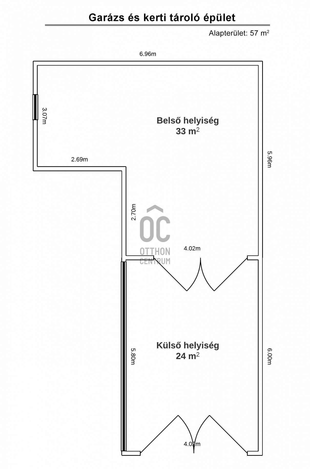
In the 3rd district, at the foot of Testvérhegy, we are offering for sale a spacious 200 m² family house with a garden, which is ideal for large families, entrepreneurs, offices, or clinics. The combination of a peaceful, green environment, excellent transportation, and a spacious plot offers a rare opportunity in the area! Main features: - 200 m², two-story house with large spaces and plenty of natural light - Large, well-maintained garden – a true green oasis with lush vegetation - Terraces, wine cellar (22.5 m²), garage (24 m²), storage (33 m²), and multiple parking spaces - Good layout with many movable walls, allowing the interior spaces to be easily tailored to the new owner's needs - Ground floor: 4+1 rooms, 121 m² - Upper floor: gross 71 m² (net 39 m²), with the potential to create up to 3 spacious rooms - Built in 1970, in need of renovation, but in good structural condition - Central heating (4-year-old boiler), air conditioning (heating-cooling, 2 years old), alarm system installed ???? Excellent location: - Several bus lines just a 1-minute walk away - Shopping options, school, kindergarten, medical clinic within 5 minutes - Quiet, green surroundings, yet quickly accessible to the city center This property is a perfect choice for those who want to realize their dream home according to their own taste or are looking for a representative office/company center in a green environment with excellent location. Don’t miss this rare opportunity! Come and see it in person, and discover the potential it holds!

Registration Number

H509815

Property Details

Sales
for rent
Legal Status
used
Character
house
Construction Method
brick
Net Size
200 m²
Gross Size
215 m²
Plot Size
1,047 m²
Heating
Gas circulator
Ceiling Height
318 cm
Number of Levels Within the Property
2
Orientation
South-East
Condition
To be renovated
Condition of Facade
Average
Year of Construction
1970
Number of Bathrooms
2
Water
Available
Gas
Available
Electricity
Available
Sewer
Available

Rooms

living room
25 m²
room
22.5 m²
room
16 m²
entryway
3.75 m²
kitchen
12.8 m²
bathroom-toilet
7 m²
half room
6 m²
room
9.5 m²
entryway
6 m²
half room
8 m²
hall
8 m²
staircase
5 m²
terrace
9 m²
terrace
15 m²
terrace
1 m²
room
10.3 m²
room
8.8 m²
room
8.1 m²
storage
2 m²
bathroom
4.3 m²
corridor
5.8 m²
cellar
11.5 m²
cellar
11.5 m²
garage
33 m²
storage
24 m²
Kőrösi Róbert
Kőrösi Róbert

Credit Expert

From Our Office Listings - XIV. kerület - Bosnyák utca

eladó lakás

Index image
Elérhető Otthon Start hitellel
40

for sale apartment

Index image
data_sheet.details.realestate.section.main.otthonstart_flag.label
10

for sale apartment

Index image
data_sheet.details.realestate.section.main.otthonstart_flag.label
14

eladó kereskedelmi ingatlan

Index image
10

eladó kereskedelmi ingatlan

Index image
10

Ürömhegyi Green Residence

Index image
4

for sale apartment

Index image
12

for rent family house

Index image
23

Lázár Luxury RoofTop

Index image
4

for sale apartment

Index image
20