114,558,000 Ft
300,000 €
- 137m²
- 3 Rooms
- ground floor
Hévíz kedvelt városrészén újépítésű lakás eladó!
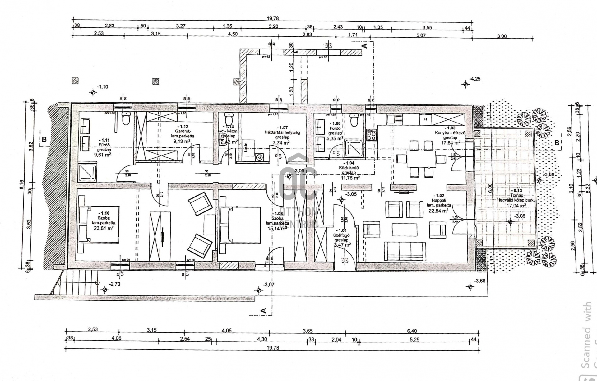
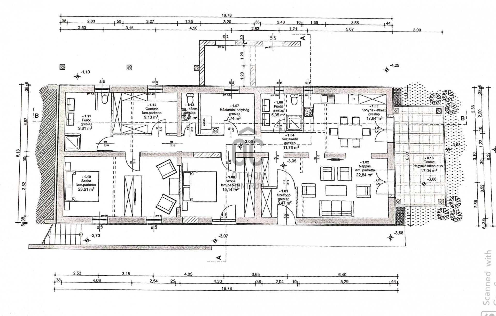
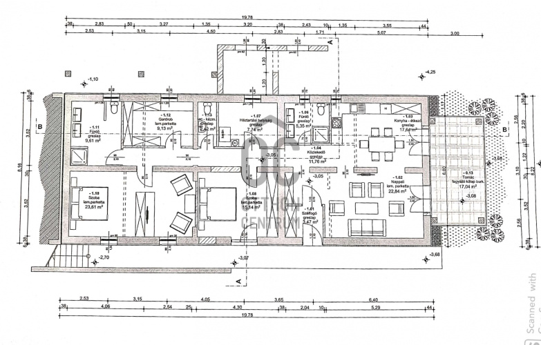
Az ingatlan főbb jellemzői:
- 137 nm lakótér
- tágas nappali-konyha-étkező
- nappaliból, étkezőből közvetlen kapcsolat a teraszra
- 2 hálószoba
- 2 fürdőszoba
- nagy gardróbszoba (akár hálószobaként is használható)
- panorámás fedett terasz
- saját 200 nm kert
- zárt udvarban 2 autó számára beálló
Amennyiben felkeltettem érdeklődését hívjon bizalommal!
Az ingatlan főbb jellemzői:
- 137 nm lakótér
- tágas nappali-konyha-étkező
- nappaliból, étkezőből közvetlen kapcsolat a teraszra
- 2 hálószoba
- 2 fürdőszoba
- nagy gardróbszoba (akár hálószobaként is használható)
- panorámás fedett terasz
- saját 200 nm kert
- zárt udvarban 2 autó számára beálló
Amennyiben felkeltettem érdeklődését hívjon bizalommal!
Registration Number
U0037088
Property Details
Sales
for sale
Legal Status
new
Character
apartment
Construction Method
brick
Net Size
137 m²
Gross Size
147 m²
Size of Terrace / Balcony
17 m²
Heating
Gas circulator
Ceiling Height
260 cm
Orientation
East
View
city view, river or lake view
Staircase Type
none
Condition
Excellent
Condition of Facade
Excellent
Condition of Staircase
Excellent
Neighborhood
quiet, green
Year of Construction
2019
Number of Bathrooms
2
Position
garden-facing
Condominium Garden
yes
Water
Available
Gas
Available
Electricity
Available
Sewer
Available
Connected to Garden
yes
Rooms
living room
23 m²
open-plan kitchen and dining room
18 m²
bathroom
5.3 m²
bathroom
9.6 m²
corridor
12 m²
toilet
2.5 m²
wardrobe
9 m²
room
15 m²
room
24 m²