135,000,000 Ft
348,000 €
- 213m²











Eladó Terézváros szívében, egy 213 m²-es félszuterén üzlethelyiség, amelyet Heidlberr Vilmos által tervezett, szecessziós bérházban találunk.
Az ingatlan 2017-ben teljes körű felújításon esett át:
kicserélték a nyílászárókat, víz- és villanyvezetékeket, megújult a gázkazán, a csatornarendszer, valamint a burkolatok.
Ezen felül automata, hőcserélős szellőztető rendszer került beépítésre.
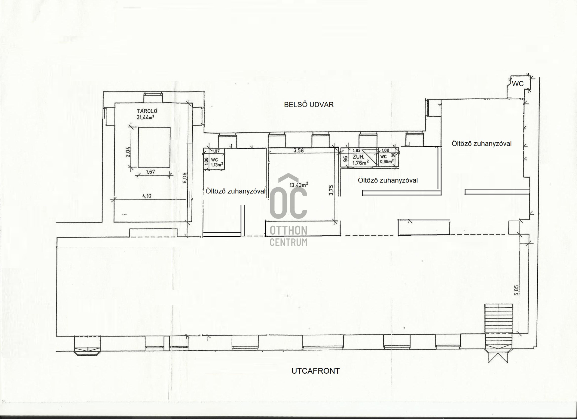
A nettó 110 m²-es, tágas egyterű edzőterem mellett öltözők, mosdók és mellékhelyiségek biztosítják a kényelmet.
Az üzlet előtt parkolási lehetőség adott, valamint frissen felújított zöldfelület is található.
Az utcáról közvetlenül, kényelmesen megközelíthető, és valójában két utcai bejárattal rendelkezik,
jelenleg csak az egyik használatos, de a másik is könnyedén újra megnyitható.
Közlekedése kiváló, a város minden pontjáról könnyen elérhető (Kodály Körönd, Andrássy út, Hunyadi tér).
Az ingatlan 2017-ben teljes körű felújításon esett át:
kicserélték a nyílászárókat, víz- és villanyvezetékeket, megújult a gázkazán, a csatornarendszer, valamint a burkolatok.
Ezen felül automata, hőcserélős szellőztető rendszer került beépítésre.
A nettó 110 m²-es, tágas egyterű edzőterem mellett öltözők, mosdók és mellékhelyiségek biztosítják a kényelmet.
Az üzlet előtt parkolási lehetőség adott, valamint frissen felújított zöldfelület is található.
Az utcáról közvetlenül, kényelmesen megközelíthető, és valójában két utcai bejárattal rendelkezik,
jelenleg csak az egyik használatos, de a másik is könnyedén újra megnyitható.
Közlekedése kiváló, a város minden pontjáról könnyen elérhető (Kodály Körönd, Andrássy út, Hunyadi tér).
Registration Number
TA20696
Property Details
Sales
for sale
Legal Status
used
Character
commercial
Type of Business Property
part of building
Construction Method
brick
Net Size
213 m²
Above-Ground Net Size
1 m²
Ceiling Height
300 cm
Condition
Good
Condition of Facade
Good
Condition of Staircase
Good
Water
Available
Gas
Available
Electricity
Available
Sewer
Available
Utilization
owner-occupied

Németh István
Credit Expert