13,000,000 Ft
34,000 €
- 5,434m²




Eladó telkek Kemecsén!
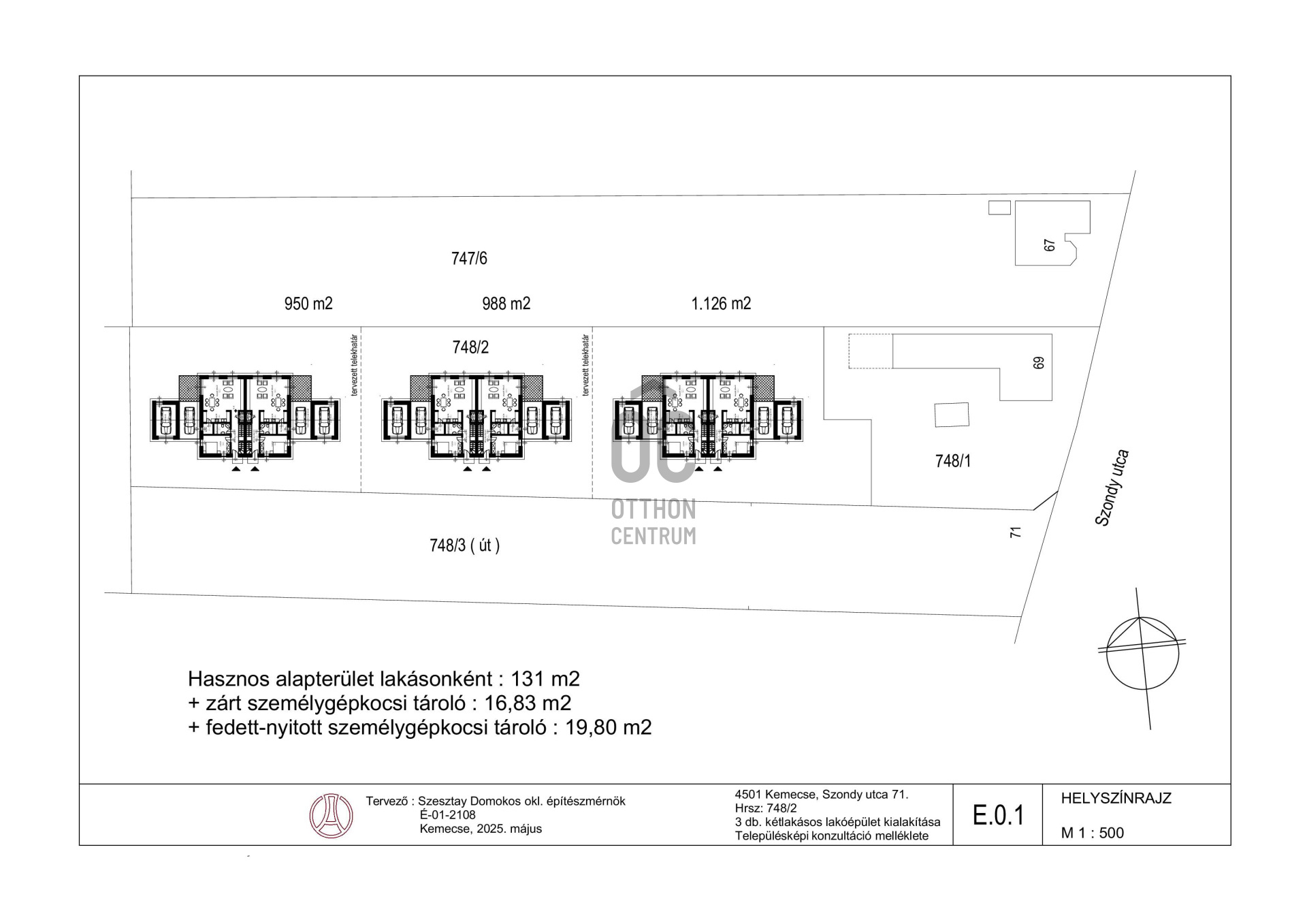
Kemecsén 2 db egymás mellet elhelyezkedő telek eladó!
Legfontosabb tudnivalók:
-A telkek méretei: 3013 és 2421 m2
-A telkek beépíthetősége: 30% (4,5 m építménymagassággal)
-A telkek magánúttal rendelkeznek
-A telkek a magánutat leszámítva három részre oszthatók
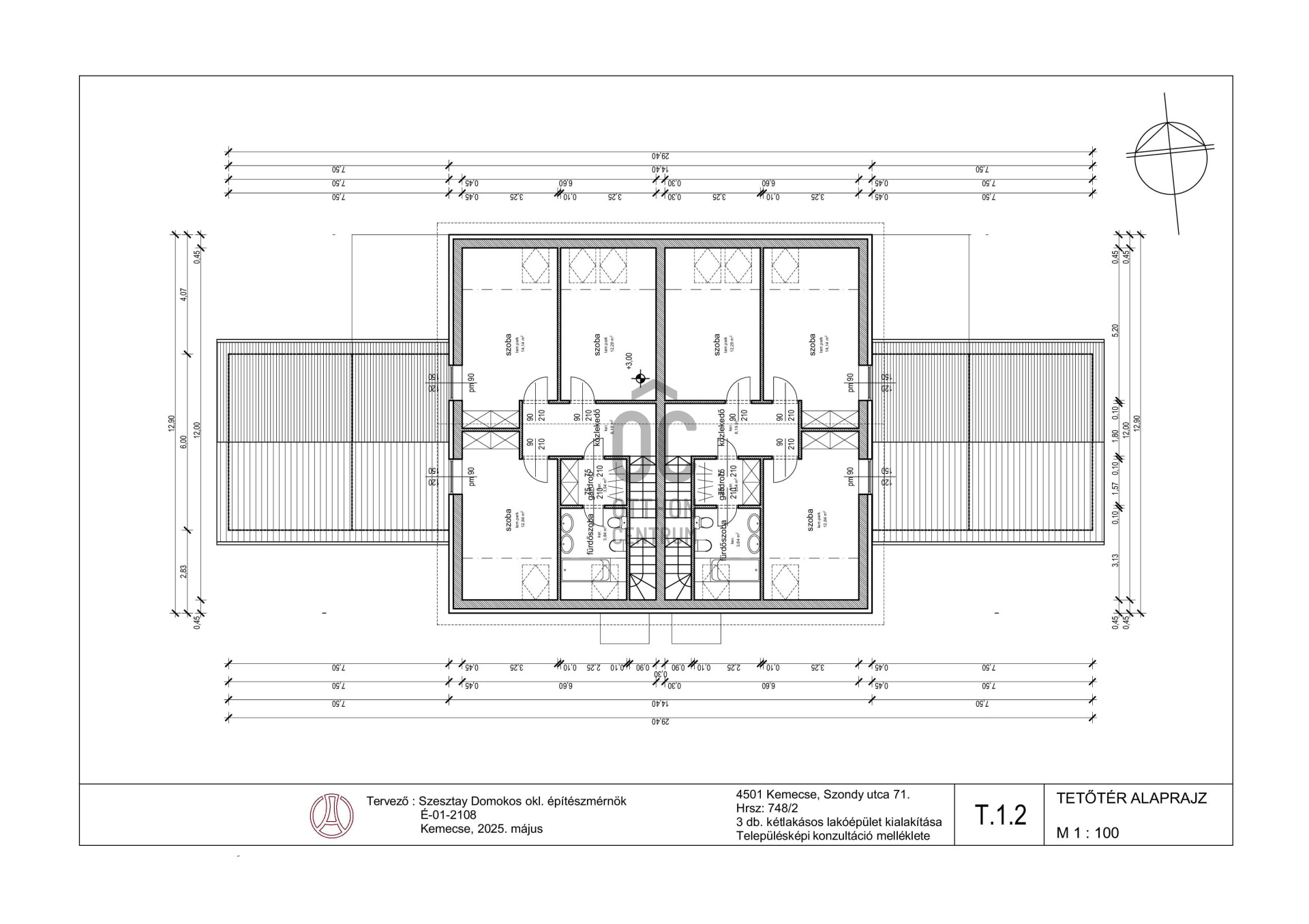
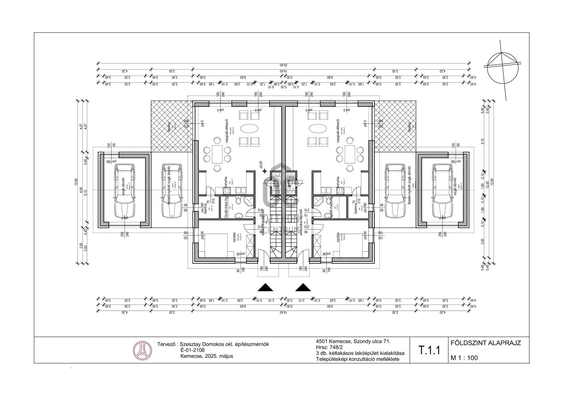
-Projektként is megvásárolható ikerház tervekkel (a feltűntetett rajzok alapján, ikerház jelleggel, összesen 6 ház)
-Igény szerint kerítésanyagokkal
-Összközmű az utcában
-Ipari jellegű hasznosításra is alkalmas
-A telkekre a kamionok részére az akadálymentes ráfordulás zökkenőmentesen lehetséges
A hirdetésben szereplő információk a megbízótól kapott adatok alapján készültek, pontosságukért felelősséget nem vállalunk!
Amennyiben vásárláshoz hitelre is szüksége van, független hitel tanácsadónk ingyenesen tud Önnek segítséget nyújtani a legjobb konstrukciók kiválasztásában és a folyamat lebonyolításában. Irodánk kereső ügyfeleinknek teljes körű szolgáltatást nyújt, szakszerű tanácsadással, energetikai tanúsítvány elkészítésével, hitelügyintézéssel és profi ügyvédi segítséggel. Abban az esetben ha az ingatlan felkeltette érdeklődését keressen bizalommal!
Legfontosabb tudnivalók:
-A telkek méretei: 3013 és 2421 m2
-A telkek beépíthetősége: 30% (4,5 m építménymagassággal)
-A telkek magánúttal rendelkeznek
-A telkek a magánutat leszámítva három részre oszthatók
-Projektként is megvásárolható ikerház tervekkel (a feltűntetett rajzok alapján, ikerház jelleggel, összesen 6 ház)
-Igény szerint kerítésanyagokkal
-Összközmű az utcában
-Ipari jellegű hasznosításra is alkalmas
-A telkekre a kamionok részére az akadálymentes ráfordulás zökkenőmentesen lehetséges
A hirdetésben szereplő információk a megbízótól kapott adatok alapján készültek, pontosságukért felelősséget nem vállalunk!
Amennyiben vásárláshoz hitelre is szüksége van, független hitel tanácsadónk ingyenesen tud Önnek segítséget nyújtani a legjobb konstrukciók kiválasztásában és a folyamat lebonyolításában. Irodánk kereső ügyfeleinknek teljes körű szolgáltatást nyújt, szakszerű tanácsadással, energetikai tanúsítvány elkészítésével, hitelügyintézéssel és profi ügyvédi segítséggel. Abban az esetben ha az ingatlan felkeltette érdeklődését keressen bizalommal!
Registration Number
T040059
Property Details
Sales
for sale
Character
plot
Type of Land
Building plot
Zone
residential zone
Plot Size
5,434 m²
Orientation
North
View
Green view
Neighborhood
quiet
Water
On the street
Gas
On the street
Electricity
On the street
Sewer
On the street
Slope of Land
0-10% slope
Buildability
30%
Facade Height
450
Type of Buildable Property
Family house, Semi-detached house, Industrial hall or warehouse, Farm building

Czövek Zoltánné
Credit Expert