49,900,000 Ft
128,000 €
- 600m²











Panoramic Building Plot with Valid Construction Permit for Sale in Fonyód, on the Southern Shore of Lake Balaton
We offer for sale a 600 m² panoramic building plot located at the highest point of Várhegy in Fonyód, just 1 km from the city beach.
The plot comes with a final and valid building permit, so construction can begin immediately.
Buildable area: 30% (180 m²), side-boundary construction allowed
Permitted building height: 6 meters
Utilities: Water and electricity are already connected; gas and sewage connections are in progress
Easily accessible via paved road
The plot is currently fenced on two sides. The adjacent and rear lots also belong to the seller, offering the possibility to expand the garden if desired.
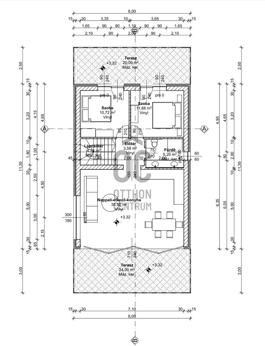
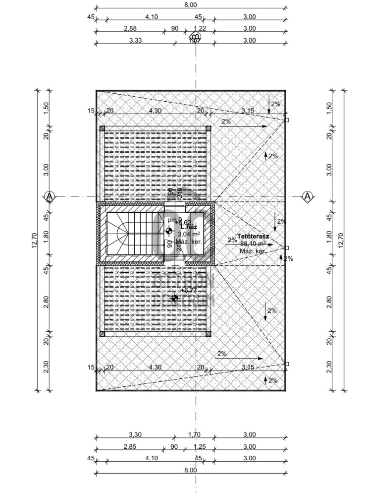
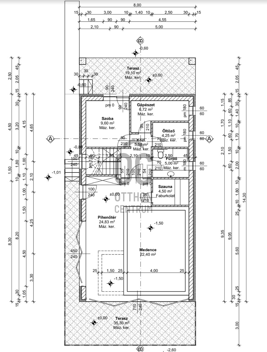
Approved Building Plans – Your Dream Home Is Ready to Be Built
The approved residential building planned for the plot has a total usable floor area exceeding 330 m², including:
152 m² of living space over two full levels
188 m² of terrace space, including an exclusive rooftop terrace with a bar area
3 bedrooms, 2 bathrooms, and a spacious living room
Indoor swimming pool (5.5 × 4 m) with two glass folding walls opening to the garden
A separate guest suite with private entrance on the ground floor – ideal for visitors, rental, or multi-generational living
Every level of the house offers stunning views:
To the south and west, the rolling hills of Zala
To the east, the lakes of Fonyód
From the rooftop terrace, a spectacular panorama of Lake Balaton
The neighboring plots are either already developed or located on lower ground, ensuring the panorama is unobstructed and permanent.
A reliable and experienced construction company is available for the project. The seller has worked with them before and was fully satisfied.
If you're looking for a plot where you can immediately begin building your dream home in a truly exceptional location, don’t miss this rare opportunity!
Please feel free to contact us for more information or to arrange a viewing.
The plot comes with a final and valid building permit, so construction can begin immediately.
Buildable area: 30% (180 m²), side-boundary construction allowed
Permitted building height: 6 meters
Utilities: Water and electricity are already connected; gas and sewage connections are in progress
Easily accessible via paved road
The plot is currently fenced on two sides. The adjacent and rear lots also belong to the seller, offering the possibility to expand the garden if desired.
Approved Building Plans – Your Dream Home Is Ready to Be Built
The approved residential building planned for the plot has a total usable floor area exceeding 330 m², including:
152 m² of living space over two full levels
188 m² of terrace space, including an exclusive rooftop terrace with a bar area
3 bedrooms, 2 bathrooms, and a spacious living room
Indoor swimming pool (5.5 × 4 m) with two glass folding walls opening to the garden
A separate guest suite with private entrance on the ground floor – ideal for visitors, rental, or multi-generational living
Every level of the house offers stunning views:
To the south and west, the rolling hills of Zala
To the east, the lakes of Fonyód
From the rooftop terrace, a spectacular panorama of Lake Balaton
The neighboring plots are either already developed or located on lower ground, ensuring the panorama is unobstructed and permanent.
A reliable and experienced construction company is available for the project. The seller has worked with them before and was fully satisfied.
If you're looking for a plot where you can immediately begin building your dream home in a truly exceptional location, don’t miss this rare opportunity!
Please feel free to contact us for more information or to arrange a viewing.
Registration Number
T039903
Property Details
Sales
for sale
Character
plot
Type of Land
Building plot
Zone
residential zone
Plot Size
600 m²
Orientation
North-West
View
river or lake view
Neighborhood
quiet, good transport, green, central
Gas
On the street
Sewer
On the street
Distance to Waterfront
more than 500 meters
Buildability
30%
Facade Height
600