179,000,000 Ft
461,000 €
- 1,418m²






Eladó építési engedélyes telek!
Fedezze fel ezt a kivételes lehetőséget Budakeszi csendes, idilli környezetében, ahol a természet közelsége és a városi élet kényelme találkozik.
Az ingatlan, amelyet most bemutatunk, egy 1418 négyzetméteres telek, mely a lakóövezet szívében helyezkedik el.
Különösen ajánlom:
Fejlesztőknek, mivel a környék folyamatosan fejlődik, és a kereslet növekvő tendenciát mutat.
Mivel a telek rendelkezik érvényes építési engedéllyel az építkezés azonnal kezdhető, ahogy az ingatlanok értékesítése is!
Közművek:
Ideiglenes áram, víz és csatorna a telken, gáz közvetlenül a telek előtt található.
a telken bontandó épület található.
A tulajdonos cég.
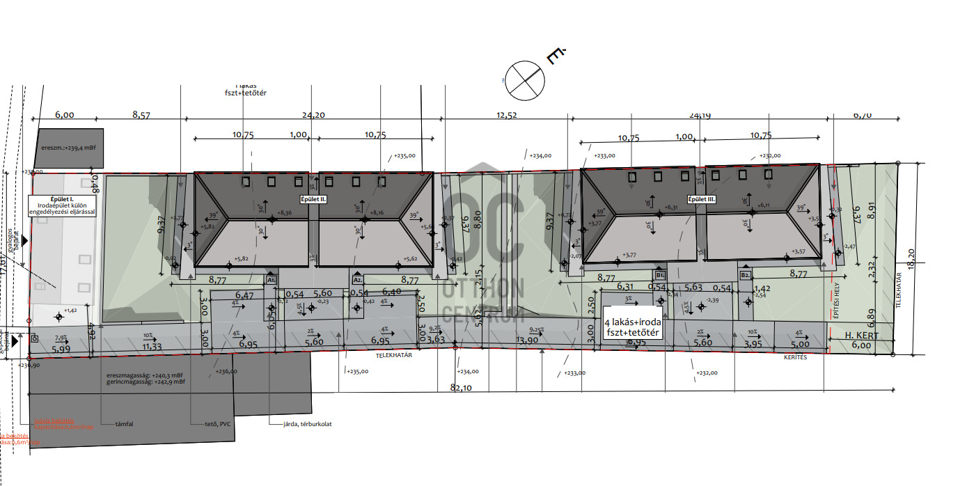
A telek 1413 m2 és a projekt keretében 3 épületben: 1 iroda épület + kettő ikerház megépítése tervezett, benne 4 lakással.
Az ikerházak úgy kerültek megtervezésre, hogy az életterek a lehető legjobban el legyenek egymástól szeparálva, szinte csak a garázsfalak találkoznak egymással és dupla falazat megépítése tervezett.
építési paraméterek:
Főépület lakásszám =T/350
zártsorú beépítési mód
beépíthetőség 40%
zöldfelület 30%
építménymagasság 6 m
I. épület
iroda
84,24 m2+garázs
II. épület
1. lakás
Lakás: 143 m2
Garázs: 17,25 m2
Terasz: 15,47 m2
Telek: 286 m2
2. lakás:
Lakás: 143 m2
Garázs: 17,25 m2
Terasz: 15,47 m2
Telek: 253 m2
III. épület
3. lakás:
Lakás: 143 m2
Garázs: 17,25 m2
Terasz: 15,47 m2
Telek: 255,5 m2
4. lakás:
Lakás: 143 m2
Garázs: 17,25 m2
Terasz: 15,47 m2
Telek: 307,9 m2
A lakások 1 db gépjárműbeállóval+1 felszíni beállóval és kizárólagos használatú, saját kerttel rendelkeznek.
Az épület optimális, DNY-i tájolása, kompakt tömegformálása és kiváló hőszigetelése biztosítják az alacsony energiafelhasználást.
Az ingatlan csendes, mégis központi részen helyezkedik el. Buszmegálló, boltok, óvoda, bölcsőde, iskola, játszótér gyalogosan rövid idő alatt elérhető.
Az ingatlanpiac folyamatosan változik, így érdemes mihamarabb lépni, hogy ne maradjon le erről a remek lehetőségről!
Az ingatlan, amelyet most bemutatunk, egy 1418 négyzetméteres telek, mely a lakóövezet szívében helyezkedik el.
Különösen ajánlom:
Fejlesztőknek, mivel a környék folyamatosan fejlődik, és a kereslet növekvő tendenciát mutat.
Mivel a telek rendelkezik érvényes építési engedéllyel az építkezés azonnal kezdhető, ahogy az ingatlanok értékesítése is!
Közművek:
Ideiglenes áram, víz és csatorna a telken, gáz közvetlenül a telek előtt található.
a telken bontandó épület található.
A tulajdonos cég.
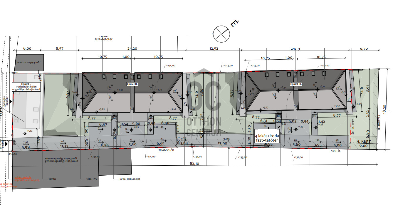
A telek 1413 m2 és a projekt keretében 3 épületben: 1 iroda épület + kettő ikerház megépítése tervezett, benne 4 lakással.
Az ikerházak úgy kerültek megtervezésre, hogy az életterek a lehető legjobban el legyenek egymástól szeparálva, szinte csak a garázsfalak találkoznak egymással és dupla falazat megépítése tervezett.
építési paraméterek:
Főépület lakásszám =T/350
zártsorú beépítési mód
beépíthetőség 40%
zöldfelület 30%
építménymagasság 6 m
I. épület
iroda
84,24 m2+garázs
II. épület
1. lakás
Lakás: 143 m2
Garázs: 17,25 m2
Terasz: 15,47 m2
Telek: 286 m2
2. lakás:
Lakás: 143 m2
Garázs: 17,25 m2
Terasz: 15,47 m2
Telek: 253 m2
III. épület
3. lakás:
Lakás: 143 m2
Garázs: 17,25 m2
Terasz: 15,47 m2
Telek: 255,5 m2
4. lakás:
Lakás: 143 m2
Garázs: 17,25 m2
Terasz: 15,47 m2
Telek: 307,9 m2
A lakások 1 db gépjárműbeállóval+1 felszíni beállóval és kizárólagos használatú, saját kerttel rendelkeznek.
Az épület optimális, DNY-i tájolása, kompakt tömegformálása és kiváló hőszigetelése biztosítják az alacsony energiafelhasználást.
Az ingatlan csendes, mégis központi részen helyezkedik el. Buszmegálló, boltok, óvoda, bölcsőde, iskola, játszótér gyalogosan rövid idő alatt elérhető.
Az ingatlanpiac folyamatosan változik, így érdemes mihamarabb lépni, hogy ne maradjon le erről a remek lehetőségről!
Registration Number
T039036
Property Details
Sales
for sale
Character
plot
Type of Land
Building plot
Zone
residential zone
Plot Size
1,418 m²
Orientation
South-East
Gas
On the street
Electricity
On the street
Buildability
40%
Facade Height
600
Type of Buildable Property
Family house, Semi-detached house, Condominium up to 4 apartments, Condominium between 3-10 apartments

Tóth Róbert
Credit Expert