For sale new construction apartment, P4798-1-0B-11-1101
Budapest XI. kerület, Kelenföld

195,960,000 Ft

517,000 €

  • 86.4m²
  • 4 Rooms
  • 11th floor

Premium Living on the Danube Waterfront in Újbuda

Ez a lakás:
NY,É,D-i tájolású, világos lakás a sétányra néző kilátással.
A természetes fénnyel teli, ablakos konyha, a két fürdőszoba és a praktikus háztartási helyiség a kényelmes mindennapokat szolgálja.
A lakáshoz két terasz tartozik: egyik a nappaliból, másik az egyik hálószobából nyílik, ideális elrendezést kínálva a közös és a privát terek elkülönítésére.
Az egyik hálószoba saját fürdőszobával rendelkezik, ami valódi prémium komfortot ad a lakásnak.

Registration Number

P4798-1-0B-11-1101

Property Details

Sales
for sale
Legal Status
new
Character
apartment
Construction Method
brick
Net Size
86.4 m²
Gross Size
98.2 m²
Size of Terrace / Balcony
24.2 m²
Ceiling Height
270 cm
Number of Levels Within the Property
1
Orientation
South-West
View
city view, Other
Staircase Type
enclosed staircase
Condition
Excellent
Condition of Facade
Excellent
Condition of Staircase
Excellent
Neighborhood
good transport, central
Year of Construction
2027
Number of Bathrooms
2
Position
courtyard-facing
Garage
Separately purchasable
Water
Available
Electricity
Available
Sewer
Available
Elevator
available
Storage
Separately purchasable
Distance to Waterfront
waterfront

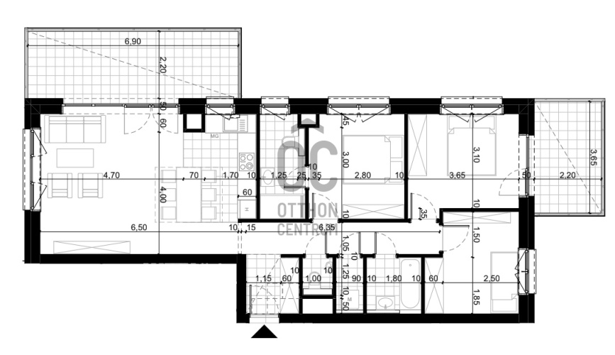
Rooms

entryway
3.35 m²
living room
22.8 m²
kitchen
5.75 m²
dining room
3.96 m²
bathroom
4 m²
bedroom
12.18 m²
bedroom
10.71 m²
bedroom
9.48 m²
corridor
6.93 m²
bathroom-toilet
5.06 m²
toilet-washbasin
1.25 m²
utility room
1.67 m²
terrace
15.86 m²
terrace
8.39 m²
Tóth Róbert
Tóth Róbert

Credit Expert

From Our Office Listings - II. kerület - TDG

for sale new construction apartment

Index image
34

for sale new construction apartment

Index image
37

for sale new construction apartment

Index image
37

for sale apartment

Index image
data_sheet.details.realestate.section.main.otthonstart_flag.label
15

for sale new construction apartment

Index image
28

for sale apartment

Index image
16

for sale apartment

Index image
12

for rent apartment

Index image
34

for sale apartment

Index image
9

for sale apartment

Index image
9