For sale new construction apartment, P4784-1-0A-06-602
Budapest XIII. kerület, Angyalföld

114,037,000 Ft

299,000 €

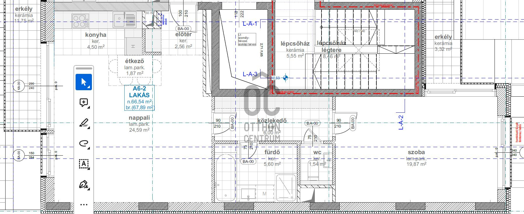
  • 66.5m²
  • 2 Rooms
  • 6th floor

Registration Number

P4784-1-0A-06-602

Property Details

Sales
for sale
Legal Status
new
Character
apartment
Construction Method
brick
Net Size
66.5 m²
Gross Size
70.7 m²
Size of Terrace / Balcony
8.5 m²
Heating
heat pump
Ceiling Height
260 cm
Orientation
West
Staircase Type
enclosed staircase
Condition
Excellent
Condition of Facade
Excellent
Condition of Staircase
Excellent
Neighborhood
quiet, good transport, green, central
Year of Construction
2027
Number of Bathrooms
1
Position
street-facing
Water
Available
Electricity
Available
Sewer
Available
Elevator
available

Rooms

living room
23 m²
kitchen
7 m²
room
20 m²
bathroom
5.8 m²
Németh István
Németh István

Credit Expert

From Our Office Listings - XIII. kerület - Viza utca

Harmónia Liget

Index image
6

for sale family house

Index image
20

for sale apartment

Index image
25