For sale new construction apartment, P4774-1-01-01-002
Budapest II. kerület,

325,782,000 Ft

841,000 €

  • 103.1m²
  • 4 Rooms
  • 1st floor
Exclusive Contract

Off market lehetőség a 2. kerületben!

A projekt emeleti lakása.
I. emeleti kialakítása ellenére egy lépcsővel a saját kizárólagos használatú kertbe juthatunk.

Registration Number

P4774-1-01-01-002

Property Details

Sales
for sale
Legal Status
new
Character
apartment
Construction Method
brick
Net Size
103.1 m²
Gross Size
103.1 m²
Heating
renewable
Ceiling Height
270 cm
Orientation
South-West
Staircase Type
enclosed staircase
Condition
Excellent
Condition of Facade
Excellent
Condition of Staircase
Excellent
Neighborhood
good transport, green, central
Year of Construction
2027
Number of Bathrooms
2
Position
garden-facing
Garage
Mandatory to buy
Water
Available
Electricity
Available
Sewer
Available
Elevator
available
Storage
Mandatory to buy

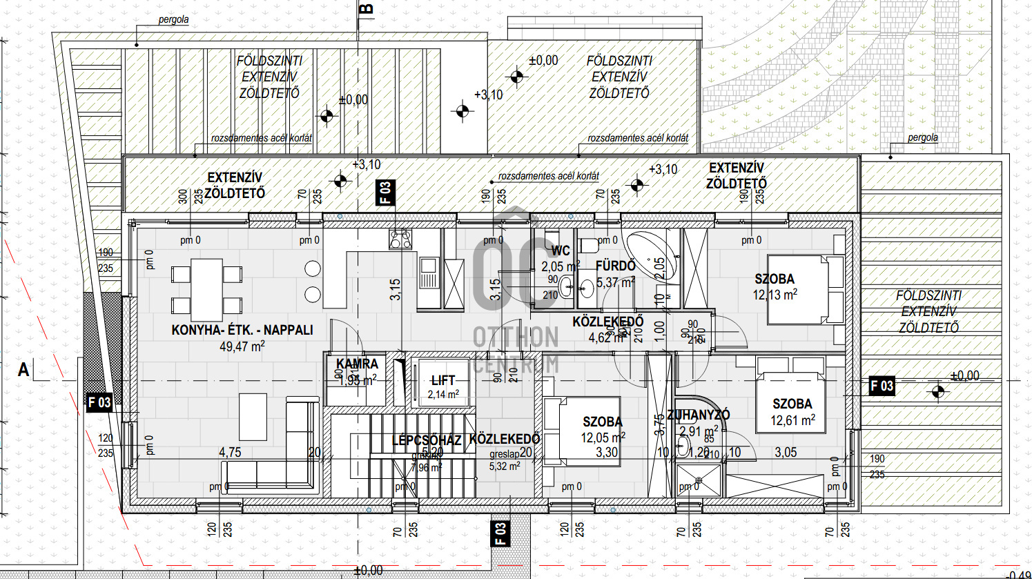
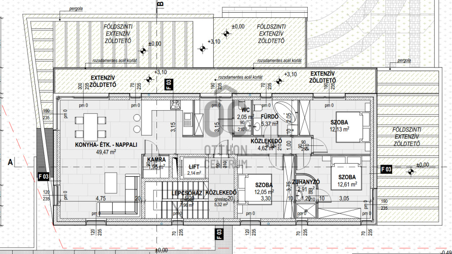
Rooms

open-plan kitchen and living room
49.47 m²
pantry
1.95 m²
toilet-washbasin
2.05 m²
bathroom-toilet
5.37 m²
corridor
4.62 m²
room
12.05 m²
room
12.61 m²
room
12.13 m²
bathroom-toilet
2.91 m²
Tóth Róbert
Tóth Róbert

Credit Expert

From Our Office Listings - III. kerület - WFC

for sale new construction apartment

Index image
26

for sale apartment

Index image
15

for sale apartment

Index image
23

for sale new construction semi-detached house

Index image
17

for sale new construction apartment

Index image
28

for sale apartment

Index image
18

for rent apartment

Index image
36

for sale new construction apartment

Index image
18

for sale new construction apartment

Index image
18

for sale apartment

Index image
16