For sale new construction apartment, P4756-B-01-FZ-001
Budapest III. kerület, Táborhegy, Ér utca

329,000,000 Ft

851,000 €

  • 124m²
  • 5 Rooms
  • ground floor
Exclusive Contract

Registration Number

P4756-B-01-FZ-001

Property Details

Sales
for sale
Legal Status
new
Character
apartment
Construction Method
brick
Net Size
124 m²
Gross Size
124 m²
Size of Terrace / Balcony
39 m²
Garden Size
220 m²
Heating
heat pump
Ceiling Height
270 cm
Number of Levels Within the Property
1
Orientation
East
View
city view
Staircase Type
enclosed staircase
Condition
Excellent
Condition of Facade
Excellent
Condition of Staircase
Excellent
Neighborhood
quiet, green
Year of Construction
2025
Number of Bathrooms
2
Position
garden-facing
Condominium Garden
yes
Garage
Mandatory to buy
Water
Available
Gas
On the street
Electricity
Available
Sewer
Available
Connected to Garden
yes
Storage
Mandatory to buy

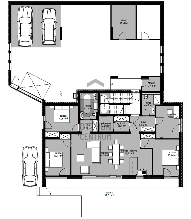
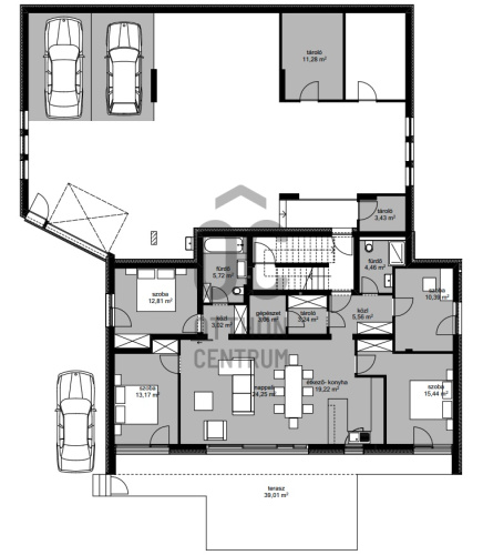
Rooms

corridor
5.56 m²
bathroom-toilet
4.46 m²
bedroom
10.39 m²
storage
3.24 m²
utility room
3.06 m²
living room
24.25 m²
open-plan kitchen and dining room
19.22 m²
bedroom
15.44 m²
bedroom
13.17 m²
corridor
3.02 m²
bathroom-toilet
5.72 m²
bedroom
12.81 m²
terrace
39.01 m²
Ruczek János
Ruczek János

Credit Expert

From Our Office Listings - II. kerület - TDG

for sale new construction apartment

Index image
31

for sale apartment

Index image
13

for rent apartment

Index image
8

for sale apartment

Index image
16

for sale apartment

Index image
19

for sale apartment

Index image
31

eladó lakás

Index image
10

for sale apartment

Index image
25

for sale apartment

Index image
15

for sale apartment

Index image
21

for sale new construction apartment

Index image
23