For sale new construction apartment, P4756-B-01-01-002
Budapest III. kerület, Táborhegy, Ér utca

469,000,000 Ft

1,228,000 €

  • 158m²
  • 5 Rooms
  • 1st floor
Exclusive Contract

Registration Number

P4756-B-01-01-002

Property Details

Sales
for sale
Legal Status
new
Character
apartment
Construction Method
brick
Net Size
158 m²
Gross Size
158 m²
Size of Terrace / Balcony
60 m²
Garden Size
175 m²
Heating
heat pump
Ceiling Height
270 cm
Number of Levels Within the Property
2
Orientation
East
View
city view
Staircase Type
enclosed staircase
Condition
Excellent
Condition of Facade
Excellent
Condition of Staircase
Excellent
Neighborhood
quiet, green
Year of Construction
2025
Number of Bathrooms
3
Position
garden-facing
Condominium Garden
yes
Garage
Mandatory to buy
Water
Available
Gas
On the street
Electricity
Available
Sewer
Available
Storage
Mandatory to buy

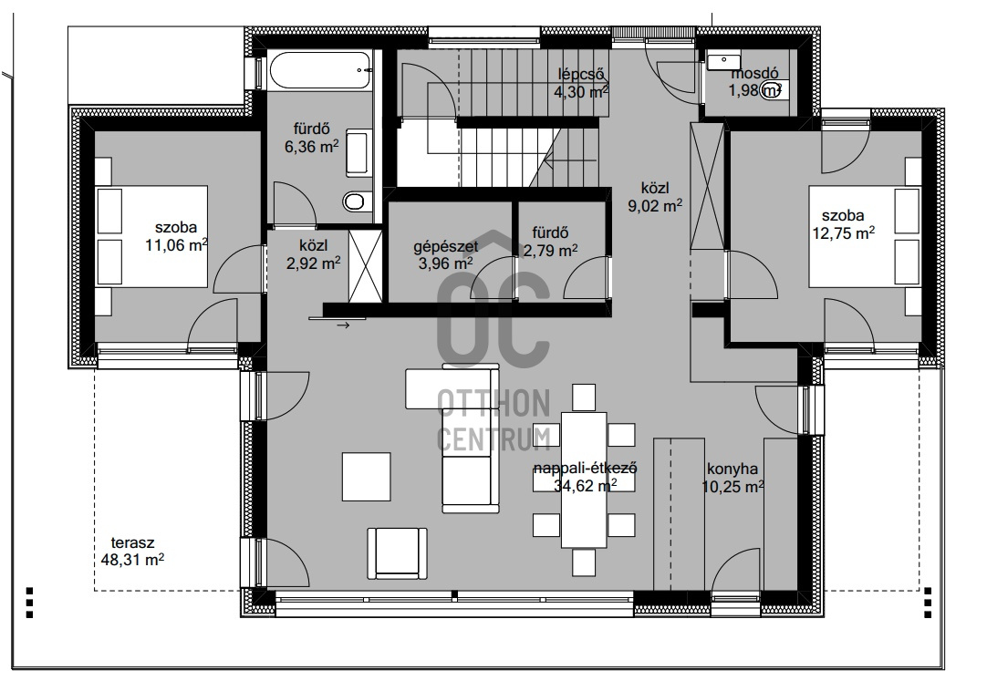
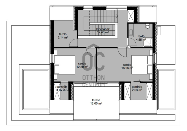
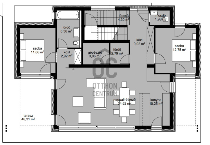
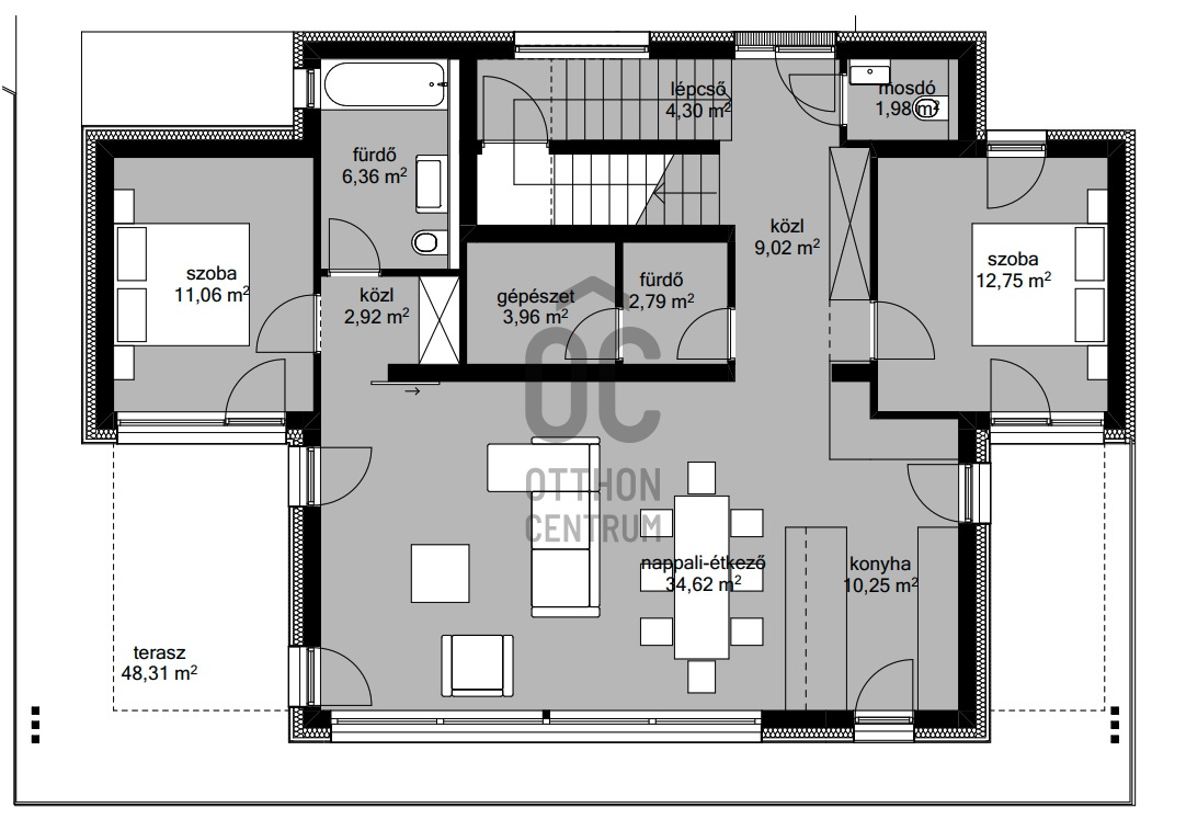
Rooms

staircase
4.3 m²
corridor
9.02 m²
toilet-washbasin
1.98 m²
bedroom
12.75 m²
bathroom-toilet
2.79 m²
utility room
3.96 m²
open-plan living and dining room
34.62 m²
kitchen
10.25 m²
corridor
2.92 m²
bedroom
11.06 m²
bathroom-toilet
6.36 m²
terrace
48.31 m²
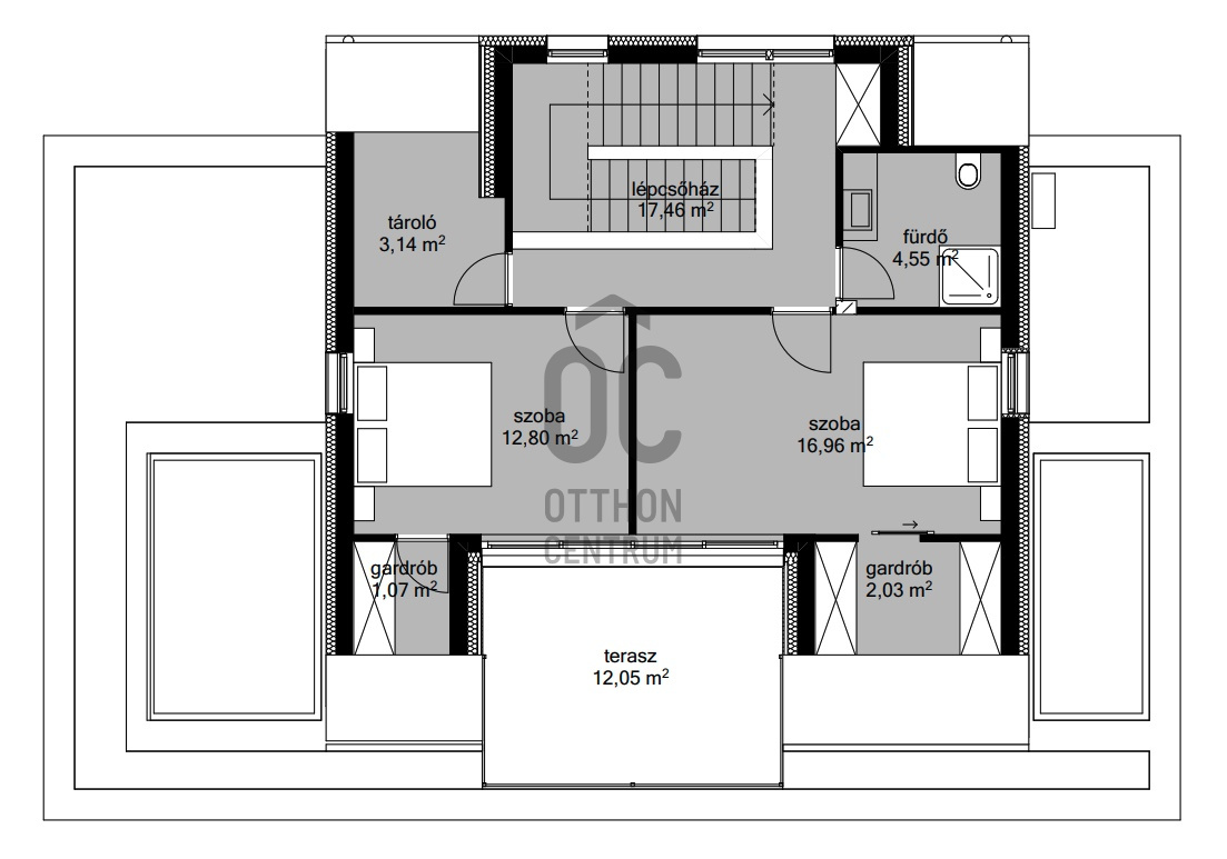
staircase
17.46 m²
bathroom-toilet
4.55 m²
bedroom
16.96 m²
wardrobe
2.03 m²
bedroom
12.8 m²
wardrobe
1.07 m²
storage
3.14 m²
Ruczek János
Ruczek János

Credit Expert

From Our Office Listings - II. kerület - TDG

for sale new construction apartment

Index image
11

for sale new construction apartment

Index image
24

for sale apartment

Index image
18

for sale semi-detached house

Index image
35

for sale apartment

Index image
20

for sale apartment

Index image
data_sheet.details.realestate.section.main.otthonstart_flag.label
13

for sale apartment

Index image
12

for sale apartment

Index image
17

for sale apartment

Index image
data_sheet.details.realestate.section.main.otthonstart_flag.label
13

for sale apartment

Index image
12

for sale apartment

Index image
28

for sale apartment

Index image
13