data_sheet.details.realestate.section.main.otthonstart_flag.label
For sale new construction apartment,
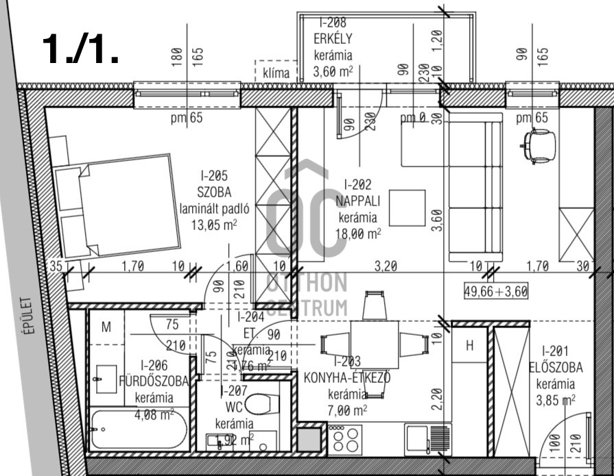
P4737-1-01-01-001
Nyíregyháza,
53,260,000 Ft
137,000 €
- 49.6m²
- 2 Rooms
- 1st floor




Új építésű lakás a Hatzel tér közelében
Eladó 1 szobás, tágas amerikai konyhás nappalival rendelkező lakás, külön fürdőszobával és WC-vel. Minden lakáshoz saját erkély tartozik, amely kellemes kikapcsolódást nyújt. A szobákban laminált parketta, míg a többi helyiségben járólap burkolat található. A földszinten közös tároló áll a lakók rendelkezésére, az udvar közösen használható. Garázs és udvari gépkocsibeálló külön megvásárolható. Ideális választás pároknak vagy befektetés céljára is.
Registration Number
P4737-1-01-01-001
Property Details
Sales
for sale
Legal Status
new
Character
apartment
Construction Method
brick
Net Size
49.6 m²
Gross Size
53.2 m²
Size of Terrace / Balcony
3.6 m²
Heating
Gas circulator
Ceiling Height
275 cm
Number of Levels Within the Property
1
Orientation
West
View
city view
Staircase Type
enclosed staircase
Condition
Excellent
Condition of Facade
Excellent
Condition of Staircase
Excellent
Neighborhood
quiet, good transport, green, central
Year of Construction
2025
Number of Bathrooms
1
Position
street-facing
Garage
Separately purchasable
Water
Available
Gas
Available
Electricity
Available
Sewer
Available
Storage
Shared
Rooms
room
13.05 m²
living room
18 m²
bathroom
4.08 m²
toilet
1.92 m²
open-plan kitchen and dining room
7 m²
entryway
3.85 m²
corridor
1.76 m²

Czövek Zoltánné
Credit Expert