For sale new construction apartment, P4726-V1-01-01-106
Budapest XIII. kerület, Angyalföld

61,500,000 Ft

160,000 €

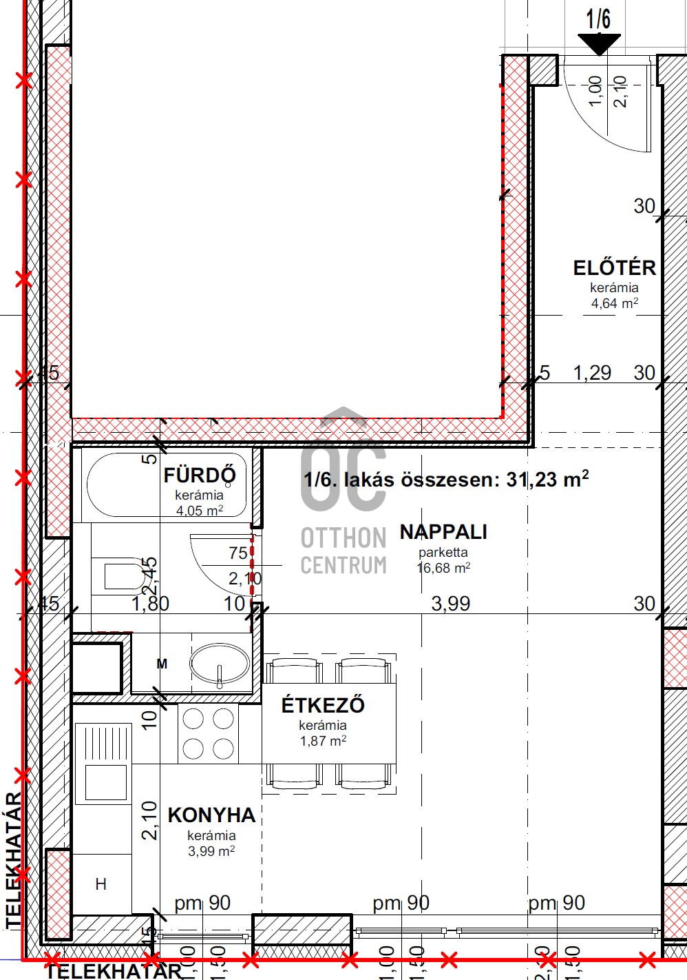
  • 31.2m²
  • 1 Rooms
  • 1st floor

Registration Number

P4726-V1-01-01-106

Property Details

Sales
for sale
Legal Status
new
Character
apartment
Construction Method
brick
Net Size
31.2 m²
Gross Size
31.2 m²
Heating
heat pump
Ceiling Height
270 cm
Number of Levels Within the Property
1
Orientation
North-East
Staircase Type
enclosed staircase
Condition
Excellent
Condition of Facade
Excellent
Condition of Staircase
Excellent
Neighborhood
quiet, good transport, green
Year of Construction
2026
Number of Bathrooms
1
Position
street-facing
Condominium Garden
yes
Garage
Separately purchasable
Water
Available
Gas
Available
Electricity
Available
Sewer
Available
Elevator
available
Storage
Separately purchasable

Rooms

open-plan kitchen and living room
22.54 m²
bathroom-toilet
4.05 m²
Berkes-Jakus Kinga
Berkes-Jakus Kinga

Credit Expert

From Our Office Listings - XIII. kerület - Béke Residence

for sale new construction apartment

Index image
7

for sale apartment

Index image
10

for sale new construction apartment

Index image
5

for sale new construction apartment

Index image
5

for sale new construction apartment

Index image
10

for sale apartment

Index image
7

for sale apartment

Index image
7