136,616,340 Ft
352,000 €
- 66.2m²
- 3 Rooms
- 5th floor













Energiatakarékos, új építésű otthonok!
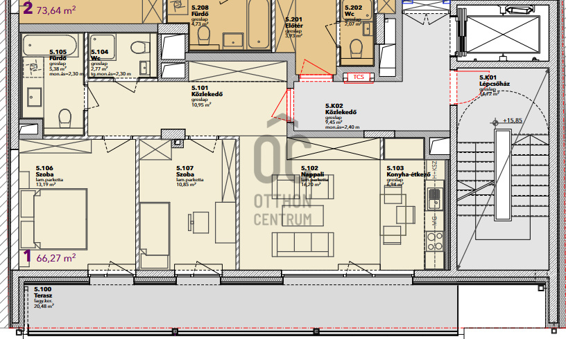
Az ingatlan az ötödik emeleten található. Utcai nézetű. Az összes terület a nettó 66.27 m2-es lakótérből és a 20.48 m2-es terasz felének beszámításából tevődik össze.
Dupla komfortos.
Dupla komfortos.
Registration Number
P4626-1-0A-05-001
Property Details
Sales
for sale
Legal Status
new
Character
apartment
Construction Method
brick
Net Size
66.2 m²
Gross Size
76.5 m²
Size of Terrace / Balcony
20.4 m²
Heating
heat pump
Ceiling Height
260 cm
Orientation
West
Staircase Type
enclosed staircase
Condition
Excellent
Condition of Facade
Excellent
Condition of Staircase
Excellent
Year of Construction
2025
Number of Bathrooms
1
Position
street-facing
Water
Available
Electricity
Available
Sewer
Available
Elevator
available
Rooms
living room
16.2 m²
open-plan kitchen and dining room
6.94 m²
corridor
10.95 m²
bathroom-toilet
2.77 m²
bathroom-toilet
5.36 m²
bedroom
13.19 m²
bedroom
10.85 m²
terrace
20.48 m²

Ruczek Krisztina
Credit Expert