For sale apartment, P4562-1-01-01-106
Budapest VI. kerület, Külső VI.

101,371,200 Ft

261,000 €

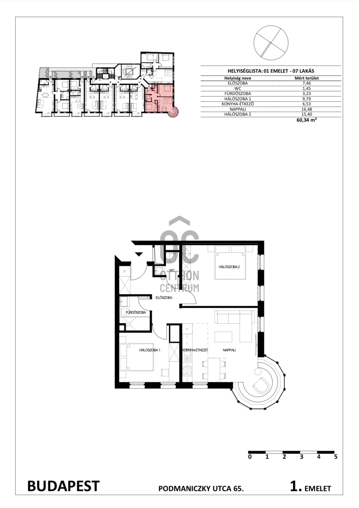
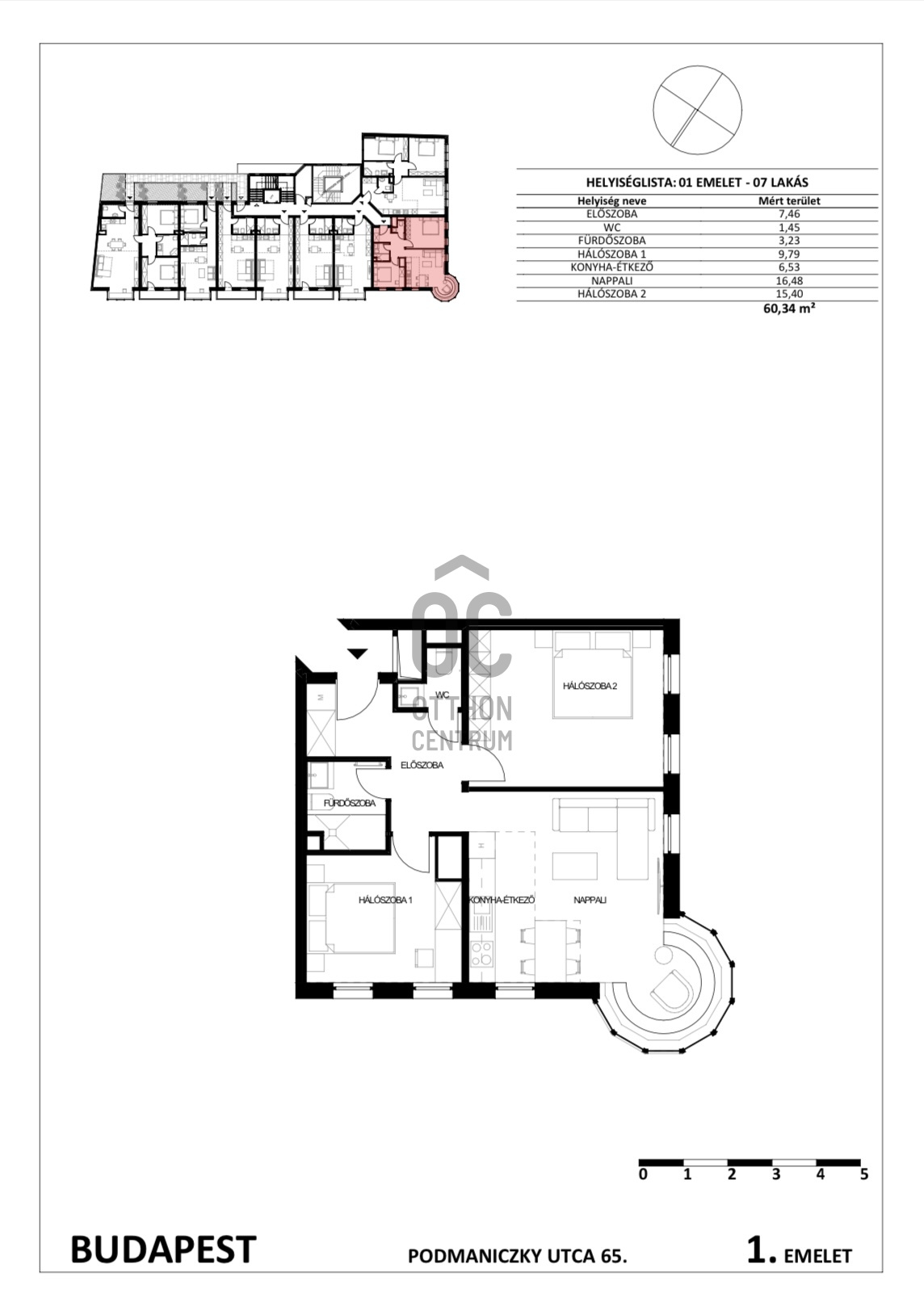
  • 60.3m²
  • 3 Rooms
  • 1st floor

Купите квартиру своей мечты или инвестируйте в эту особенную недвижимость в VI районе Будапешта, где прекрасно сочетаются динамичность и комфорт центра города!

Ingatlan jellemzői:
- 3 szobás lakás
- 60,34m²
- Bájos rizalit a nappaliban
- Városi panorámás kilátás

Registration Number

P4562-1-01-01-106

Property Details

Sales
for sale
Legal Status
used
Character
apartment
Construction Method
brick
Net Size
60.3 m²
Gross Size
60.3 m²
Heating
central heating
Ceiling Height
250 cm
Orientation
South-East
Staircase Type
enclosed staircase
Condition
Excellent
Condition of Facade
Excellent
Condition of Staircase
Excellent
Year of Construction
2025
Number of Bathrooms
1
Position
street-facing
Water
Available
Gas
Available
Electricity
Available
Sewer
Available
Elevator
available

Rooms

entryway
7.47 m²
toilet
1.45 m²
bathroom-toilet
3.57 m²
bedroom
10.13 m²
open-plan kitchen and dining room
6.53 m²
living room
16.69 m²
bedroom
15.58 m²
Ruczek Krisztina
Ruczek Krisztina

Credit Expert

From Our Office Listings - V. kerület - Hild tér

eladó üzleti célú ingatlan

Index image
17

eladó lakás

Index image
17

kiadó üzleti célú ingatlan

Index image
10

eladó üzleti célú ingatlan

Index image
10

eladó lakás

Index image
22

eladó üzleti célú ingatlan

Index image
3

eladó lakás

Index image
19

eladó lakás

Index image
15