For sale new construction apartment, P4544-1-01-04-007
Budapest VI. kerület, Belső VI.

170,200,000 Ft

444,000 €

  • 92m²
  • 4 Rooms
  • 4th floor

LUXUS TETŐTÉRI ÚJÉPÍTÉSŰ LAKÁSOK A BELVÁROSBAN

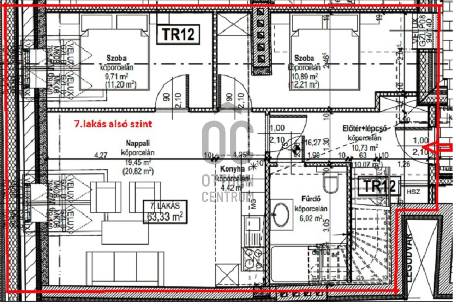
7. LAKÁS,:
KÉT SZINTES, UTCAI NÉZET, 92 NM NETTO ÉS 113 NM BRUTTO LAKÁS MÉRET
AMERIKAI KONYHÁS NAPPALI, 4 SZOBA + 10 NM-ES GALÉRIA, MELY AKÁR KIS NAPPALIKÉNT IS MŰKÖDHET, 2 FÜRDŐSZOBA, 9 NM-ES TETŐTERASZ,

Registration Number

P4544-1-01-04-007

Property Details

Sales
for sale
Legal Status
new
Character
apartment
Construction Method
ytong
Net Size
92 m²
Gross Size
113 m²
Size of Terrace / Balcony
9 m²
Heating
heat pump
Ceiling Height
280 cm
Number of Levels Within the Property
2
Orientation
South-East
Staircase Type
suspended corridor
Condition
Excellent
Condition of Facade
Excellent
Condition of Staircase
Excellent
Year of Construction
2023
Number of Bathrooms
2
Position
street-facing
Water
Available
Electricity
Available
Sewer
Available
Elevator
available

Rooms

open-plan kitchen and living room
24 m²
bedroom
10 m²
bedroom
11 m²
bathroom-toilet
6 m²
entryway
10 m²
bedroom
9 m²
gallery
10 m²
bathroom-toilet
4 m²
terrace
9 m²
Vitéz Kornél
Vitéz Kornél

Credit Expert

From Our Office Listings - XIII. kerület - Pozsonyi út

eladó lakás

Index image
Elérhető Otthon Start hitellel
22

for sale family house

Index image
data_sheet.details.realestate.section.main.otthonstart_flag.label
21

for sale commercial property

Index image
7

for sale commercial property

Index image
12

for sale farmhouse

Index image
data_sheet.details.realestate.section.main.otthonstart_flag.label
15

for sale commercial property

Index image
5

for sale apartment

Index image
15

for sale commercial property

Index image
7

for rent apartment

Index image
17