data_sheet.details.realestate.section.main.otthonstart_flag.label
For sale new construction row house,
P4457-1-B3-NA-000
Ajka, Bakonygyepes
79,000,000 Ft
210,000 €
- 89.7m²
- 3 Rooms
Ajka-Bakonygyepesen 4 db új építésű sorház eladó!
Sikeresen működő, tapasztalt, megbízható kivitelezőtől eladó sorház.
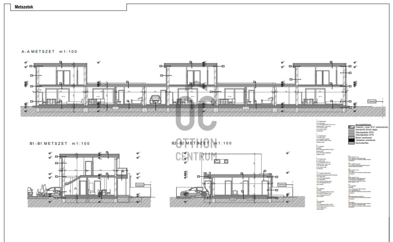
B3 lakás: 89,75 nm, hozzá tartozó telek: 177,65 nm.
Építkezés folyamatban, várható kulcsrakész kivitelezés, átadás 2025. harmadik negyedév.
Lakások műszaki tartalma:
- az épület alápincézetlen 1 illetve 2 szintes lapostetős épület.
- az épület vasalt sávalapokkal lesz alapozva. Az alapok felett lábazati fal készül 30 cm
szélességgel zsalukőből amelyre kifut a vasalt aljzat, betonhálóval. A vasalt aljzatbeton alatt
kavics feltöltés készül, geotextíliára.
- A 1- és 2 szintes épület vb pillérjei, betonfalai szerkezeti méretű oszlopokkal, vasalva,
zsaluzva, illetve esetenként zsalukőből kialakítva.
- Főfalak: 25 és 30 cm-es Porotherm N+F falazattal készülnek.
- Lakáselválasztó falak: Leiertherm 25 cm-es dupla falazat, hangszigeteléssel.
- Áthidalók: monolit és kerámia áthidalók.
- Födém: monolit vasbeton lemezek, szükséges áttörésekkel és attikaképzésekkel.
- Lépcső: monolit vasbeton lépcső amely főfalakra és a födémekre támaszkodik fel.
- Válaszfalak: Leier 10/50 cm-es válaszfaltéglából készülnek.
- Korlátok: a külső erkélykorlátok saválló acél szerkezetek, illetve biztonsági üvegkorlátok
minimum 95 cm magassággal, a kiviteli és a látványterveknek megfelelően. A belső korlátok
saválló acél szerkezetek illetve biztonsági üvegkorlátok.
Bővebb műszaki tartalomról érdeklődjön a megadott elérhetőségeken!
Amennyiben Ön egy igényes ingatlant, kíván vásárolni gyönyörű környezetben, hívjon bizalommal, segítek a gyors, pontos ügyintézésben!
Irodánk teljes körű hitel-, babaváró és CSOK ügyintézéssel, biztosítással, energetikai tanúsítvány készítéssel, valamint megbízható ügyvédi háttérrel segíti ügyfeleit.
Valósítsa meg álmai otthonát velünk!
B3 lakás: 89,75 nm, hozzá tartozó telek: 177,65 nm.
Építkezés folyamatban, várható kulcsrakész kivitelezés, átadás 2025. harmadik negyedév.
Lakások műszaki tartalma:
- az épület alápincézetlen 1 illetve 2 szintes lapostetős épület.
- az épület vasalt sávalapokkal lesz alapozva. Az alapok felett lábazati fal készül 30 cm
szélességgel zsalukőből amelyre kifut a vasalt aljzat, betonhálóval. A vasalt aljzatbeton alatt
kavics feltöltés készül, geotextíliára.
- A 1- és 2 szintes épület vb pillérjei, betonfalai szerkezeti méretű oszlopokkal, vasalva,
zsaluzva, illetve esetenként zsalukőből kialakítva.
- Főfalak: 25 és 30 cm-es Porotherm N+F falazattal készülnek.
- Lakáselválasztó falak: Leiertherm 25 cm-es dupla falazat, hangszigeteléssel.
- Áthidalók: monolit és kerámia áthidalók.
- Födém: monolit vasbeton lemezek, szükséges áttörésekkel és attikaképzésekkel.
- Lépcső: monolit vasbeton lépcső amely főfalakra és a födémekre támaszkodik fel.
- Válaszfalak: Leier 10/50 cm-es válaszfaltéglából készülnek.
- Korlátok: a külső erkélykorlátok saválló acél szerkezetek, illetve biztonsági üvegkorlátok
minimum 95 cm magassággal, a kiviteli és a látványterveknek megfelelően. A belső korlátok
saválló acél szerkezetek illetve biztonsági üvegkorlátok.
Bővebb műszaki tartalomról érdeklődjön a megadott elérhetőségeken!
Amennyiben Ön egy igényes ingatlant, kíván vásárolni gyönyörű környezetben, hívjon bizalommal, segítek a gyors, pontos ügyintézésben!
Irodánk teljes körű hitel-, babaváró és CSOK ügyintézéssel, biztosítással, energetikai tanúsítvány készítéssel, valamint megbízható ügyvédi háttérrel segíti ügyfeleit.
Valósítsa meg álmai otthonát velünk!
Registration Number
P4457-1-B3-NA-000
Property Details
Sales
for sale
Legal Status
new
Character
house
Construction Method
brick
Net Size
89.7 m²
Gross Size
89.7 m²
Plot Size
177.6 m²
Size of Terrace / Balcony
19.7 m²
Heating
heat pump
Ceiling Height
263 cm
Orientation
South-West
Condition
Excellent
Condition of Facade
Excellent
Neighborhood
quiet, good transport, green, central
Year of Construction
2025
Number of Bathrooms
1
Water
Available
Gas
On the street
Electricity
Available
Sewer
Available
Rooms
other room
3.57 m²
staircase
4.52 m²
toilet
1.43 m²
living room
16.02 m²
dining room
7.1 m²
kitchen
10.52 m²
garage
21.15 m²
terrace
19.71 m²
corridor
6.85 m²
toilet
1.94 m²
bathroom
5.44 m²
room
10.89 m²
room
11.68 m²
room
9.79 m²
Szabóné Sipos Krisztina
Credit Expert