367,170,000 Ft
974,000 €
- 84.6m²
- 3 Rooms
- 4th floor
Értékálló luxusotthon a Király utcában
ELHELYEZKEDÉS:
Amikor valaki kimondja, hogy "a legpestibb utca", akkor sokan azonnal rávágják, hogy igen, ez bizony a Király utca, merthogy Krúdy Gyula egy ilyen állandó jelzővel látta el egyik kedvenc utcáját.
A helyiek és turisták körében egyaránt népszerű kulturális lehetőségek, valamint számos történelmi emlékhely karnyújtásnyi közelségben található.
A környék mozgalmas, élettel teli.
Autóval vagy gyalogosan kiválóan megközelíthető a mindössze két perc sétával elérhető Liszt Ferenc tér, a főváros három metróvonalának, valamint számos busz- és villamosjáratnak a centruma.
Hosszútávon bérelhető parkolók mindössze 25 méter távolságban.
ÉPÜLET:
A társasház a folyamatosan pezsgő és fejlődő VI. kerület és a főváros egyik legkedveltebb részén található.
Egy átfogóan restaurált és felújított műemlék épületet ötvözünk a XXI. század technológiáit képviselő modern, kortárs építészettel. Ez az összhang unikális végeredményt teremt Budapest belvárosi szövetének egyik legfrekventáltabb lokációjában. Homlokzat architektúrája építési korának harmóniára törekvő, egyszersmind a klasszikus formavilágból merítkező építészeti felfogás erejét hirdeti.
PANORÁMA:
A teraszokról látható lesz a Királyi Palota, a Mátyás templom, a Köztársasági elnöki palota, a Szabadság szobor, a Dohány utcai zsinagóga, az Operaház és a Szent István Bazilika ikonikus épületei, távolabb nézve a végtelenbe vesző dombok és hegyek nyűgözik majd le az otthonukból kitekintő lakókat.
LAKÁSOK:
A Penthouse lakások a tradíció és a korszerűség tökéletes kapcsolódása Pest tetején, egy történelmet megidéző műemléki környezetben, országos műemléki védettség alatt lévő házban. A tervezők arra törekedtek, hogy a lakások minél több irányból kapjanak természetes megvilágítást, valamint a lakóegységek intimitása biztosított legyen.
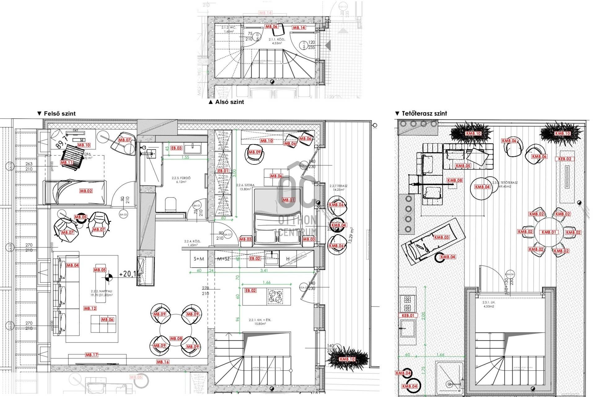
A projekt negyedik szintjén a belvárosban párját ritkítóan nagyméretű tetőterasz került kivitelezésre.
A nagy teraszok felé megnyitott nappalik a nap útját követik, és páratlan panorámát biztosítanak a városra, a Budai várra és annak fenséges épületeire.
A belső terek kialakításához olyan neves hazai belsőépítészeket kértek fel, mint Fejes Gergő lakberendező designer.
Mindezen eszközökkel korszerű, energiahatékony prémium lakóházakat hozunk létre.
MŰSZAKI LEÍRÁS:
Fontos cél, hogy a penthouse lakásokat belsőépítészeti vezetéssel, személyre szabott intelligens megoldásokkal az új tulajdonos igényeire formáljuk. Kiemelt figyelmet fordítunk az anyagok minőségére és a beépített technológiákra.
Legújabb nemzetközi trendeknek megfelelő belsőépítészet
- Modern igényeket kielégítő alaprajzi elrendezések
- Nagyméretű teraszokkal megnyitott nappalik és hálószobák
- Hatalmas ablakfelületek lélegzetelállító panorámával rendelkező emeleti lakások
- Elegáns belsőépítészeti megoldások
- Magas minőségű hideg és meleg burkolatok
- Prémium csaptelepek és szaniterek (Bruma, Gessi, Laufen)
- Prémium minőségű lámpák (Wever & Ducré, Flos, Vibia, Martinelli Luca)
- Hüppe zuhanykabinok
- Az otthonok maximális intimitása biztosított
Mivel megújuló energiával működik, a hőszivattyú a leginkább környezetbarát és egyben legköltséghatékonyabb fűtési megoldás.
A lakástulajdonosok motivációi között, már itthon is megjelent a maximális gázfüggetlenség elérésének célja egyfajta szolgáltatóktól, központi energiaellátástól való függetlenedési törekvés növekvő trendje is tapasztalható.
A lakások hőellátását és hűtését teljesen megújuló energiaforrással, a külső levegő hőenergiájának felhasználásával terveztük, amelyet osztott rendszerű hőszivattyúval hasznosítunk hűtési, fűtési és használati melegvíz termelés célra.
A hőszivattyúk elektromos ellátása kedvező árú GEO tarifás áram vételezéssel történik.
Ezenkívül minden lakás, magas színvonalú Smart Home rendszerrel van felszerelve.
- Energiatakarékos és környezettudatos egyedi hőszivattyús okos hűtés/fűtés rendszer, távoli vezérléssel
- Zöld Energia felhasználás GEO tarifa
- Smart Home rendszer
- Okos világítási rendszer, távoli vezérléssel
- Beépített riasztó rendszer, távoli riasztással és vezérléssel
- Beépített árnyékolási technikák, elektromos redőnyök, zsalúziák, távoli vezérléssel
- 3 rétegű, hő és hangszigetelő üvegezésű alumínium nyílászárók
- Tetőteraszon jakuzzi és kerti zuhany
- Szauna telepítési lehetőség
- Olasz konyhabútorok (Modulnova, Cucinesse) felső kategóriás Bosch konyhagépekkel (hűtő, mosogatógép, mikrohullámú sütő, sütő, beépített mosógép, borhűtő)
- Elektromosan működő bejárati ajtó, távoli vezérléssel
A penthouse lakások értékesítése elindult, ha érdekli a lakás, és szeretné megtekinteni, kérem vegye fel Velem a kapcsolatot elérhetőségeim egyikén.
Amikor valaki kimondja, hogy "a legpestibb utca", akkor sokan azonnal rávágják, hogy igen, ez bizony a Király utca, merthogy Krúdy Gyula egy ilyen állandó jelzővel látta el egyik kedvenc utcáját.
A helyiek és turisták körében egyaránt népszerű kulturális lehetőségek, valamint számos történelmi emlékhely karnyújtásnyi közelségben található.
A környék mozgalmas, élettel teli.
Autóval vagy gyalogosan kiválóan megközelíthető a mindössze két perc sétával elérhető Liszt Ferenc tér, a főváros három metróvonalának, valamint számos busz- és villamosjáratnak a centruma.
Hosszútávon bérelhető parkolók mindössze 25 méter távolságban.
ÉPÜLET:
A társasház a folyamatosan pezsgő és fejlődő VI. kerület és a főváros egyik legkedveltebb részén található.
Egy átfogóan restaurált és felújított műemlék épületet ötvözünk a XXI. század technológiáit képviselő modern, kortárs építészettel. Ez az összhang unikális végeredményt teremt Budapest belvárosi szövetének egyik legfrekventáltabb lokációjában. Homlokzat architektúrája építési korának harmóniára törekvő, egyszersmind a klasszikus formavilágból merítkező építészeti felfogás erejét hirdeti.
PANORÁMA:
A teraszokról látható lesz a Királyi Palota, a Mátyás templom, a Köztársasági elnöki palota, a Szabadság szobor, a Dohány utcai zsinagóga, az Operaház és a Szent István Bazilika ikonikus épületei, távolabb nézve a végtelenbe vesző dombok és hegyek nyűgözik majd le az otthonukból kitekintő lakókat.
LAKÁSOK:
A Penthouse lakások a tradíció és a korszerűség tökéletes kapcsolódása Pest tetején, egy történelmet megidéző műemléki környezetben, országos műemléki védettség alatt lévő házban. A tervezők arra törekedtek, hogy a lakások minél több irányból kapjanak természetes megvilágítást, valamint a lakóegységek intimitása biztosított legyen.
A projekt negyedik szintjén a belvárosban párját ritkítóan nagyméretű tetőterasz került kivitelezésre.
A nagy teraszok felé megnyitott nappalik a nap útját követik, és páratlan panorámát biztosítanak a városra, a Budai várra és annak fenséges épületeire.
A belső terek kialakításához olyan neves hazai belsőépítészeket kértek fel, mint Fejes Gergő lakberendező designer.
Mindezen eszközökkel korszerű, energiahatékony prémium lakóházakat hozunk létre.
MŰSZAKI LEÍRÁS:
Fontos cél, hogy a penthouse lakásokat belsőépítészeti vezetéssel, személyre szabott intelligens megoldásokkal az új tulajdonos igényeire formáljuk. Kiemelt figyelmet fordítunk az anyagok minőségére és a beépített technológiákra.
Legújabb nemzetközi trendeknek megfelelő belsőépítészet
- Modern igényeket kielégítő alaprajzi elrendezések
- Nagyméretű teraszokkal megnyitott nappalik és hálószobák
- Hatalmas ablakfelületek lélegzetelállító panorámával rendelkező emeleti lakások
- Elegáns belsőépítészeti megoldások
- Magas minőségű hideg és meleg burkolatok
- Prémium csaptelepek és szaniterek (Bruma, Gessi, Laufen)
- Prémium minőségű lámpák (Wever & Ducré, Flos, Vibia, Martinelli Luca)
- Hüppe zuhanykabinok
- Az otthonok maximális intimitása biztosított
Mivel megújuló energiával működik, a hőszivattyú a leginkább környezetbarát és egyben legköltséghatékonyabb fűtési megoldás.
A lakástulajdonosok motivációi között, már itthon is megjelent a maximális gázfüggetlenség elérésének célja egyfajta szolgáltatóktól, központi energiaellátástól való függetlenedési törekvés növekvő trendje is tapasztalható.
A lakások hőellátását és hűtését teljesen megújuló energiaforrással, a külső levegő hőenergiájának felhasználásával terveztük, amelyet osztott rendszerű hőszivattyúval hasznosítunk hűtési, fűtési és használati melegvíz termelés célra.
A hőszivattyúk elektromos ellátása kedvező árú GEO tarifás áram vételezéssel történik.
Ezenkívül minden lakás, magas színvonalú Smart Home rendszerrel van felszerelve.
- Energiatakarékos és környezettudatos egyedi hőszivattyús okos hűtés/fűtés rendszer, távoli vezérléssel
- Zöld Energia felhasználás GEO tarifa
- Smart Home rendszer
- Okos világítási rendszer, távoli vezérléssel
- Beépített riasztó rendszer, távoli riasztással és vezérléssel
- Beépített árnyékolási technikák, elektromos redőnyök, zsalúziák, távoli vezérléssel
- 3 rétegű, hő és hangszigetelő üvegezésű alumínium nyílászárók
- Tetőteraszon jakuzzi és kerti zuhany
- Szauna telepítési lehetőség
- Olasz konyhabútorok (Modulnova, Cucinesse) felső kategóriás Bosch konyhagépekkel (hűtő, mosogatógép, mikrohullámú sütő, sütő, beépített mosógép, borhűtő)
- Elektromosan működő bejárati ajtó, távoli vezérléssel
A penthouse lakások értékesítése elindult, ha érdekli a lakás, és szeretné megtekinteni, kérem vegye fel Velem a kapcsolatot elérhetőségeim egyikén.
Registration Number
P4359-1-01-04-002
Property Details
Sales
for sale
Legal Status
new
Character
apartment
Construction Method
brick
Net Size
84.6 m²
Gross Size
84.6 m²
Size of Terrace / Balcony
14.4 m²
Heating
heat pump
Ceiling Height
280 cm
Number of Levels Within the Property
2
Orientation
South-West
View
city view
Staircase Type
circular corridor
Condition
Excellent
Condition of Facade
Good
Condition of Staircase
Good
Neighborhood
quiet, good transport, central
Year of Construction
2017
Number of Bathrooms
1
Position
street-facing
Water
Available
Gas
Available
Electricity
Available
Sewer
Available
Elevator
available
Rooms
corridor
4.5 m²
toilet
1.6 m²
open-plan kitchen and dining room
14.7 m²
living room
28.8 m²
room
20.7 m²
corridor
1.65 m²
bathroom-toilet
6.2 m²
room
14.3 m²
terrace
14.45 m²
staircase
4.6 m²
values.realestate.szobatipus.49
61.11 m²
Örvössy Tamás
Credit Expert