205,000,000 Ft
523,000 €
- 97.8m²
- 4 Rooms
- 6th floor




ÚJ ÉPÍTÉSŰ ENERGIAHATÉKONY LAKÁSOK- VII. KERÜLET
A VII. kerület központi részén várja leendő tulajdonosait ez a 44+2 lakásos új építésű társasház.
!! 1 db PENTHOUSE lakás érhető el !!
A lakás:
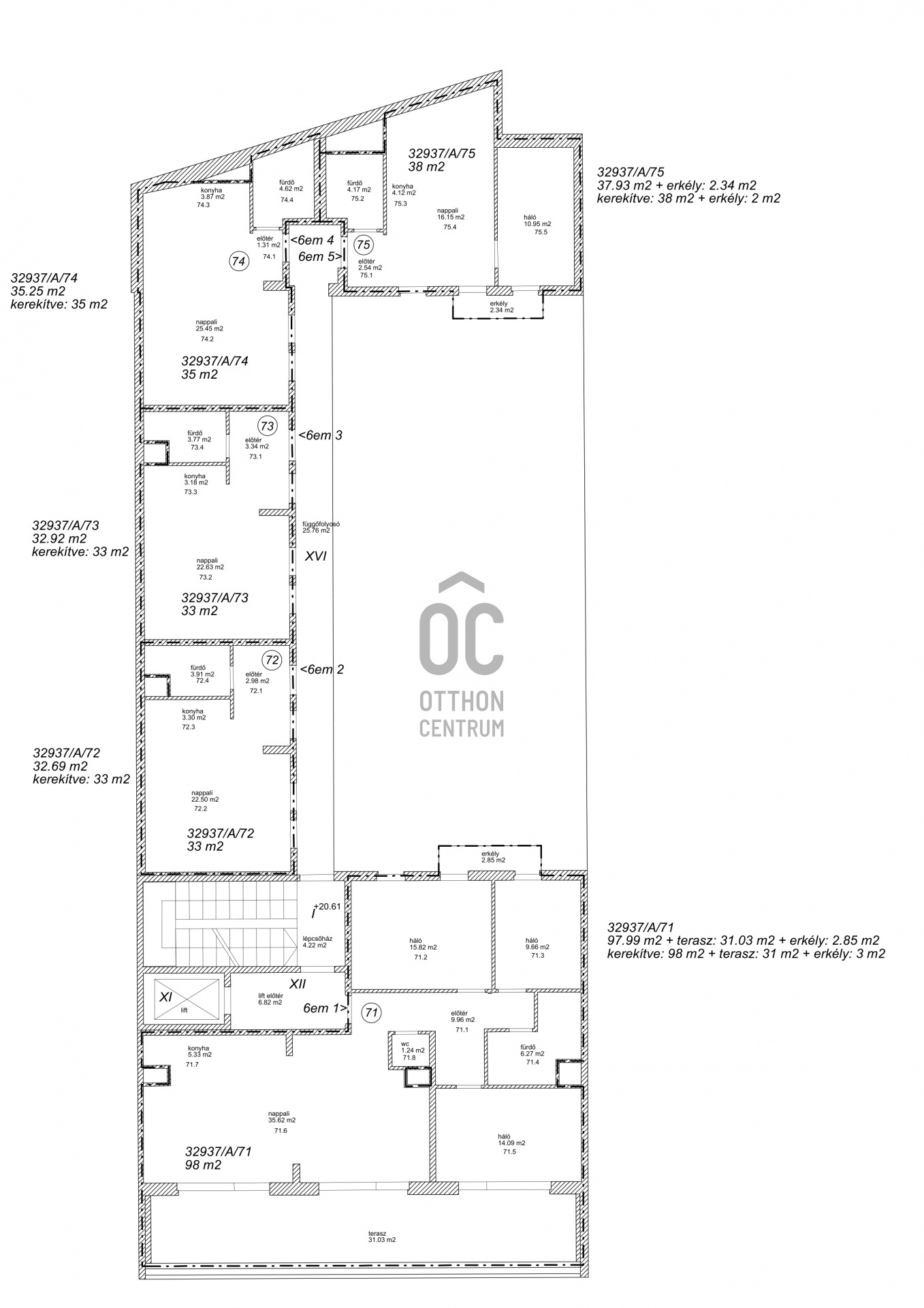
- VI. emelet, zárószint, penthouse lakás
- 98 nm + 31 nm tetőterasz
- D- i tájolású panorámás, utcai nézetű hatalmas nappali és 1 db hálószoba
- nappali- konyha, előszoba, fürdőszoba külön wc elosztás, 3 hálószoba
- a belső udvari nézetű hálószobákhoz tartozó erkély mérete 3 nm - É-i tájolás
!! 1 db PENTHOUSE lakás érhető el !!
A lakás:
- VI. emelet, zárószint, penthouse lakás
- 98 nm + 31 nm tetőterasz
- D- i tájolású panorámás, utcai nézetű hatalmas nappali és 1 db hálószoba
- nappali- konyha, előszoba, fürdőszoba külön wc elosztás, 3 hálószoba
- a belső udvari nézetű hálószobákhoz tartozó erkély mérete 3 nm - É-i tájolás
Registration Number
P4146-1-01-06-001
Property Details
Sales
for sale
Legal Status
new
Character
apartment
Construction Method
brick
Net Size
97.8 m²
Gross Size
98 m²
Size of Terrace / Balcony
33.8 m²
Heating
electric, infrared
Ceiling Height
300 cm
Number of Levels Within the Property
1
Orientation
South
View
city view
Staircase Type
suspended corridor
Condition
Excellent
Condition of Facade
Excellent
Condition of Staircase
Excellent
Basement
Shared
Neighborhood
good transport, central
Year of Construction
2022
Number of Bathrooms
1
Position
street-facing
Condominium Garden
yes
Garage
Separately purchasable
Water
Available
Gas
On the street
Electricity
Available
Sewer
Available
Elevator
available
Storage
Separately purchasable
Rooms
bedroom
15.82 m²
bedroom
9.66 m²
bedroom
14.09 m²
open-plan kitchen and living room
36.62 m²
bathroom
6.27 m²
toilet
1.24 m²
entryway
9.96 m²

Tóth Róbert
Credit Expert