data_sheet.details.realestate.section.main.otthonstart_flag.label
For sale family house, OHH179264
Segesd

29,900,000 Ft

79,000 €

  • 75m²
  • 3 Rooms
  • ground floor
Exclusive Contract


KÖLTÖZZ BE ÚJ OTTHONODBA SEGESDEN!

SEGESD KÖZPONTJÁBAN FELÚJÍTÁS ALATT ÁLLÓ CSALÁDI HÁZ ELADÓ!

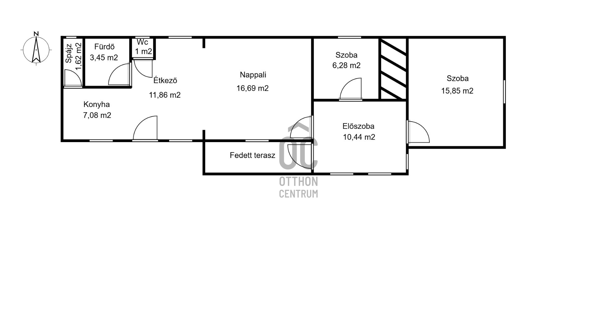
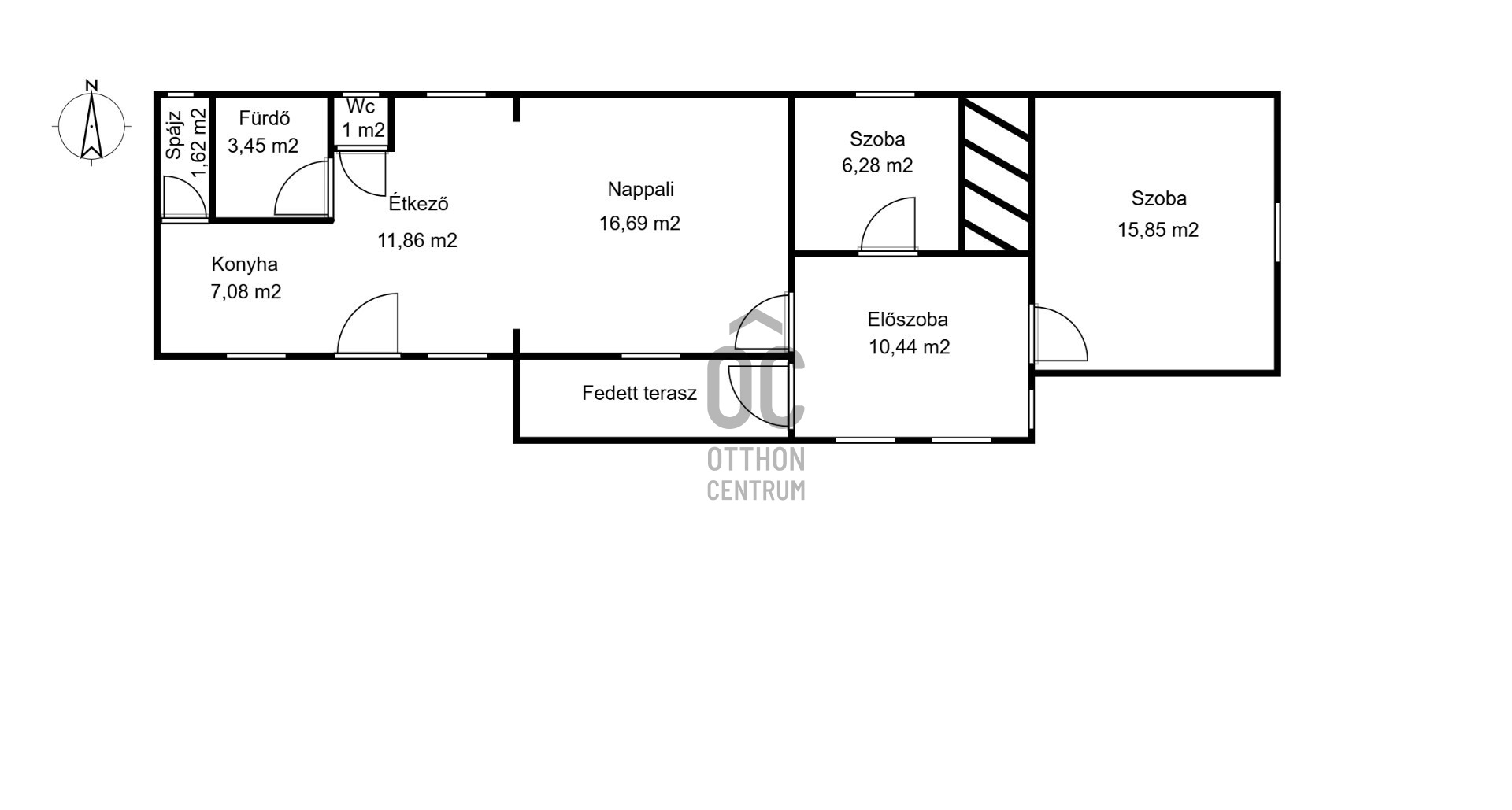
Új lakóit várja ez a részben felújított, részben felújítandó, vegyes falazatú, 75 m2 alapterületű, családi ház. Szerkezetileg jó állapotnak örvend, 2 szoba, előszoba, nappali, étkező, konyha, kamra, fürdő és wc helyiségekkel rendelkezik jelenleg. Fűtése gáz konvektorokkal, illetve klíma berendezéssel megoldott. A tetőszerkezet felújított állapotú, nyílászárói egy részét már műanyagra váltották. Teljes villanyhálózata áthúzásra került, burkolatait részben kicserélték. A ház igény szerint tovább alakítható. Az ingatlan 3141 m2 méretű, gazdálkodásra is alkalmas, nagy telken fekszik, melyen téglából épült melléképület és állattartásra alkalmas ólak, gyümölcsfák is találhatók. 

Az ingatlan összközműves.

Kiváló lehetőséget nyújt akár gyerekes családok, akár az idősebb korosztály számára. Az ingatlan központi elhelyezkedésű, 200 méteren belül busz megálló, étterem, posta, gyógyszertár, orvosi rendelő, védőnői szolgálat, benzinkút is megtalálható.

ELHELYEZKEDÉS ÉS TÁVOLSÁGOK:

Segesd Belső-Somogy egyik, több mint ezeréves történelmi múlttal rendelkező nagyközsége, Nagyatádtól 13 kilométerre északra, Kaposvártól kb. 40 km-re délre helyezkedik el. A községben található bölcsőde, óvoda, iskola, bolt, posta, orvosi rendelő, gyógyszertár, étterem, szociális otthon, benzinkút is megtalálható.

Tedd magadévá ezt a csodálatos lehetőséget, ahol a béke és a nyugalom adott!

Registration Number

OHH179264

Property Details

Sales
for sale
Legal Status
used
Character
house
Construction Method
other
Net Size
75 m²
Plot Size
3,141 m²
Heating
tile stove (gas)
Condition
Excellent
Year of Construction
1950

Rooms

room
15.85 m²
room
6.28 m²
wardrobe
3.64 m²
entryway
10.44 m²
living room
16.5 m²
dining room
8.7 m²
kitchen
7.08 m²
pantry
1.62 m²
bathroom
3.45 m²
toilet
0.64 m²
Horváth Szabina
Horváth Szabina

Credit Expert

From Our Office Listings - Nagykanizsa - Fő út

for sale family house

Index image
data_sheet.details.realestate.section.main.otthonstart_flag.label
29

for sale apartment

Index image
data_sheet.details.realestate.section.main.otthonstart_flag.label
17

for sale family house

Index image
data_sheet.details.realestate.section.main.otthonstart_flag.label
73

for sale family house

Index image
data_sheet.details.realestate.section.main.otthonstart_flag.label
44

for sale panel apartment

Index image
data_sheet.details.realestate.section.main.otthonstart_flag.label
16

for sale family house

Index image
data_sheet.details.realestate.section.main.otthonstart_flag.label
19

for sale family house

Index image
data_sheet.details.realestate.section.main.otthonstart_flag.label
18