data_sheet.details.realestate.section.main.otthonstart_flag.label
For sale family house, OHH176424
Győrújbarát

138,000,000 Ft

363,000 €

  • 133m²
  • 4 Rooms
Exclusive Contract


ÖRÖKPANORÁMÁS, PRÉMIUM MINŐSÉGBEN FELÚJÍTOTT CSALÁDI HÁZ KÜLÖNLEGES EXTRÁKKAL ÉS PÁRATLAN HANGULATTAL

Ha egy olyan otthont keres, ahol a mindennapok nyugalma találkozik az igényes kivitelezéssel, a tágas terekkel és a természet közelségével, akkor ez az ingatlan Önre vár!

Ez a KÉT SZINTES, TELJES KÖRŰEN FELÚJÍTOTT CSALÁDI HÁZ egyedülálló örökpanorámával rendelkezik, mely minden évszakban elvarázsolja az embert. A ház kialakítása kiváló elosztást kínál, gondosan megtervezett terek jellemzik, amelyek egyszerre kényelmesek és élhetők.

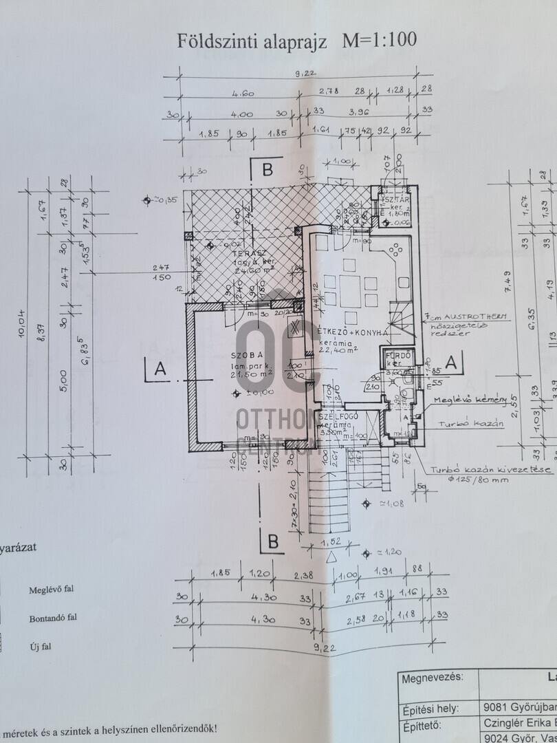
A FÖLDSZINTEN egy tágas, világos szoba kapott helyet, mely nappaliként is funkcionálhat. Az étkező és a konyha egy légtérben található, így a családi étkezések és baráti összejövetelek természetes központjává válhat. Emellett egy igényesen kialakított fürdőszoba, valamint egy praktikus előszoba is szolgálja az ott lakók kényelmét.

Az EMELETI SZINTEN három külön nyíló hálószoba, valamint egy külön illemhelyiség található, ideális családok számára, vagy akár vendégszobák kialakítására is.

A ház minden nyílászárója PRÉMIUM MINŐSÉGŰ, FA KIVITELŰ, ami tovább emeli az ingatlan esztétikai és műszaki értékét.

Az UDVAR ELSŐ RÉSZE IGÉNYESEN TÉRKÖVEZETT, itt kapott helyet a kocsibeálló. A hátsó kert részben TÁGAS, NAPOZÁSRA ÉS PIHENÉSRE CSÁBÍTÓ TERASZ található, valamint egy különálló, könnyűszerkezetes, hatalmas üvegfelületekkel ellátott MEDENCEHÁZ zuhanyzóval, beépített gépészettel, amely akár NAPELEMMEL IS ÜZEMELTETHETŐ, mivel a villamos hálózat kapacitása ezt lehetővé teszi.

A kikapcsolódásról gondoskodik továbbá egy külön KÖNNYŰSZERKEZETES EDZŐTEREM ÉS TÁRSASÁGI HELYISÉG, mely klímával, prémium nyílászárókkal és biliárdasztallal is felszerelt – tökéletes helyszíne baráti összejöveteleknek vagy egy aktív hétköznap estének.

A kert ENYHÉN EMELKEDŐ, így a felső részén egy gondozott SZŐLŐÜLTETVÉNY kínál lehetőséget a természet közelségének megélésére, és akár saját bor készítésére is. Ehhez a ház alatt található 28 M²-ES PINCE ideális feltételeket biztosít.

Az udvar egyik különleges éke egy 12 SZEMÉLYES PAGODA, amely tökéletes háttere lehet meghitt családi ebédeknek, nyári grillpartiknak vagy baráti összejöveteleknek.

Végül, de nem utolsósorban, az ingatlan legfelső része egy ŐSFÁS TERÜLET, amely KÜLÖN HELYRAJZI SZÁMMAL RENDELKEZIK, így akár ÖNÁLLÓ ÉPÍTÉSI TELEKKÉNT IS HASZNOSÍTHATÓ – komoly értéknövelő tényező a jövőre nézve.

Ez az ingatlan tökéletes választás lehet azok számára, akik nem csak egy házat, hanem egy életérzést, élményt és nyugalmat keresnek – kompromisszumok nélkül.

FONTOS INFORMÁCIÓ! A ház vételárába Győrben vagy környékén lévő lakás beszámítása is lehetséges – megegyezés szerint. Amennyiben rendelkezik ilyen ingatlannal, egyeztessünk a részletekről!

NE HAGYJA KI EZT A PÁRATLAN LEHETŐSÉGET – JÖJJÖN EL, ÉS SZERESSEN BELE ELSŐ LÁTÁSRA!

Registration Number

OHH176424

Property Details

Sales
for sale
Legal Status
used
Character
house
Construction Method
brick
Net Size
133 m²
Plot Size
2,029 m²
Size of Terrace / Balcony
12 m²
Heating
Gas circulator
Condition
Good

Rooms

kitchen
28 m²
living room
24 m²
bathroom
5 m²
entryway
5 m²
room
14 m²
room
14 m²
room
13 m²
wardrobe
3 m²
toilet
3.5 m²
corridor
3.5 m²
cellar
20 m²
terrace
12 m²
Dr. Táncos Mónika
Dr. Táncos Mónika

Credit Expert

From Our Office Listings - Győr - Batthyány tér

for sale family house

Index image
26

for sale apartment

Index image
data_sheet.details.realestate.section.main.otthonstart_flag.label
23

for sale family house

Index image
data_sheet.details.realestate.section.main.otthonstart_flag.label
18

for sale apartment

Index image
data_sheet.details.realestate.section.main.otthonstart_flag.label
27

for sale apartment

Index image
data_sheet.details.realestate.section.main.otthonstart_flag.label
13

for sale family house

Index image
data_sheet.details.realestate.section.main.otthonstart_flag.label
8

for sale family house

Index image
data_sheet.details.realestate.section.main.otthonstart_flag.label
11

for sale family house

Index image
data_sheet.details.realestate.section.main.otthonstart_flag.label
17