data_sheet.details.realestate.section.main.otthonstart_flag.label
For sale family house,
OHH173695
Fityeház
27,900,000 Ft
72,000 €
- 115m²
- 4 Rooms
- ground floor


































EGY HELY, AHOL A TÉR, A FÉNY ÉS A NYUGALOM TALÁLKOZIK!
Fityeházán, Nagykanizsától mindössze 15 km-re, Murakeresztúr szomszédságában kínálunk eladásra egy jó állapotú, folyamatosan karbantartott családi házat. A település jó tömegközlekedési kapcsolatokkal rendelkezik, a vasútállomás, iskola és óvoda a közeli Murakeresztúron elérhetők.
A község központi, mégis csendes részén található ház tégla falazatú, új cserép fedéssel, esztétikailag is szép állapotban.
Otthonos tér, átgondolt felújítások
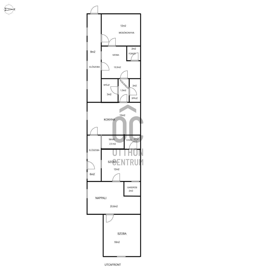
Az 115 m²-es lakótér tágas, napfényes elrendezést kínál:
Nappali + 3 hálószoba
-Két fürdőszoba (zuhanyzó és kád is)
-Tágas konyha-étkező
-Tárolók, kamra, mosókonyha
A ház részleges felújításon esett át:
-Új bejárati ajtó
-Északi oldalon hőszigetelt műanyag ablakok, nappaliban hőszigetelt fa ablakok
-Villanyvezetékek rézre cserélve
-Korszerűsített központi fűtés: vegyes tüzelésű és gázkazánnal is működtethető
-Nappaliban külön kéményes kandalló a hangulatos estékhez
Gondozott kert, melléképületek, pince
-2136 m²-es rendezett telek – bőséges tér kertészkedéshez vagy pihenéshez
-Jó állapotú melléképületek – tárolási lehetőségek
-Kazánház, garázs
-Ház alatt pince
Déli tájolásának köszönhetően a ház rendkívül világos és kellemes hangulatú.
Ez a sok lehetőséget rejtő, kényelmes otthon kiváló választás lehet azok számára, akik nyugodt, falusias környezetben keresnek tágas, jól karbantartott ingatlant.
Registration Number
OHH173695
Property Details
Sales
for sale
Legal Status
used
Character
house
Construction Method
brick
Net Size
115 m²
Plot Size
2,136 m²
Heating
other
Condition
Good
Year of Construction
1960
Rooms
room
18 m²
living room
20.6 m²
wardrobe
2 m²
room
12 m²
entryway
6 m²
kitchen
15 m²
corridor
1.5 m²
pantry
3 m²
bathroom
2 m²
bathroom
2 m²
room
13.5 m²
utility room
12 m²
corridor
6 m²
storage
2.5 m²

Horváth Szabina
Credit Expert