data_sheet.details.realestate.section.main.otthonstart_flag.label
For sale family house,
OHH171161
Sárospatak
54,900,000 Ft
142,000 €
- 232m²
- 9 Rooms



































Az ELADÓ SÁROSPATAKI CSALÁDI HÁZ jellemzői:
- igazi kuriózum, Móricz Zsigmond édesapja által épített ház Sárospatakon a belváros közelében a Dobó Ferenc úton
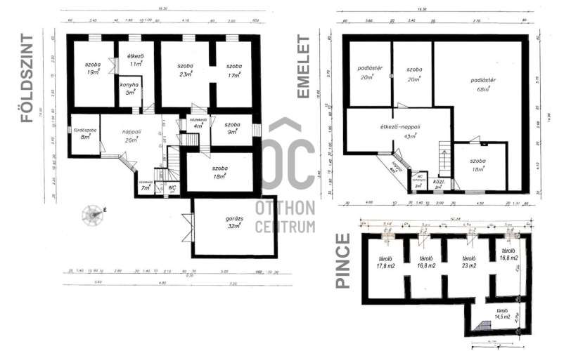
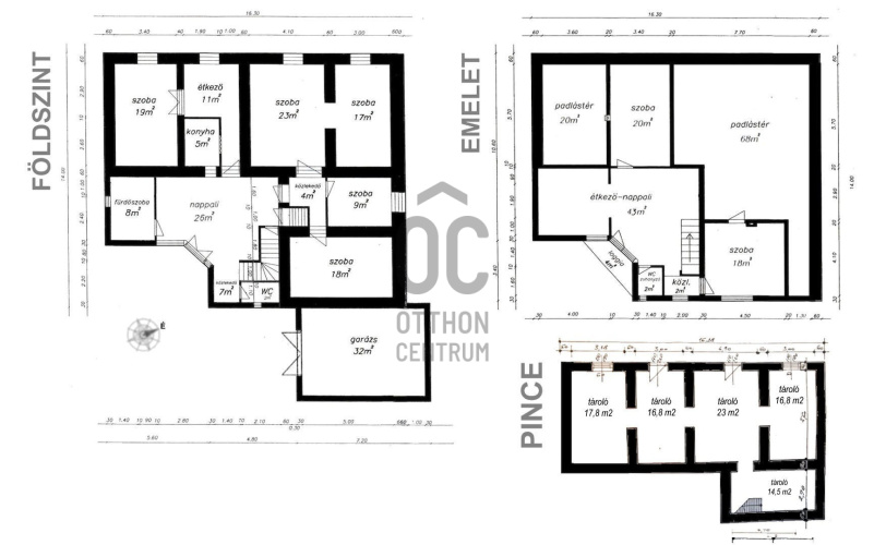
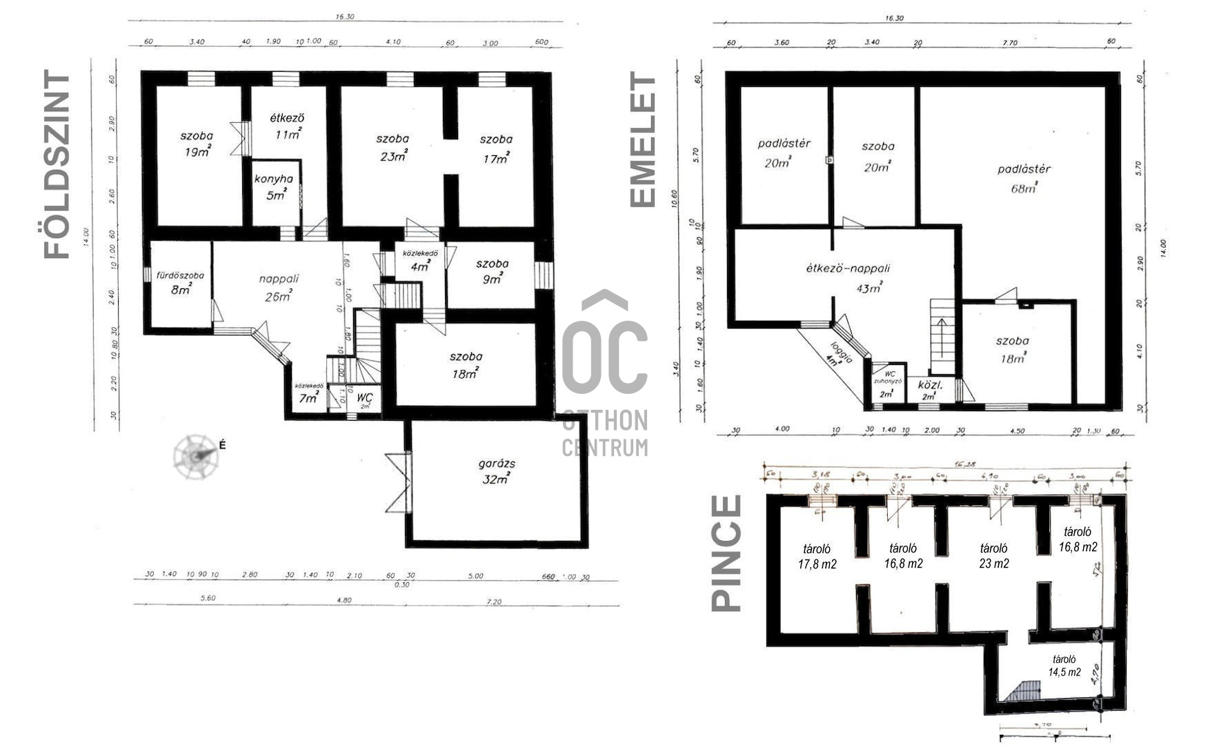
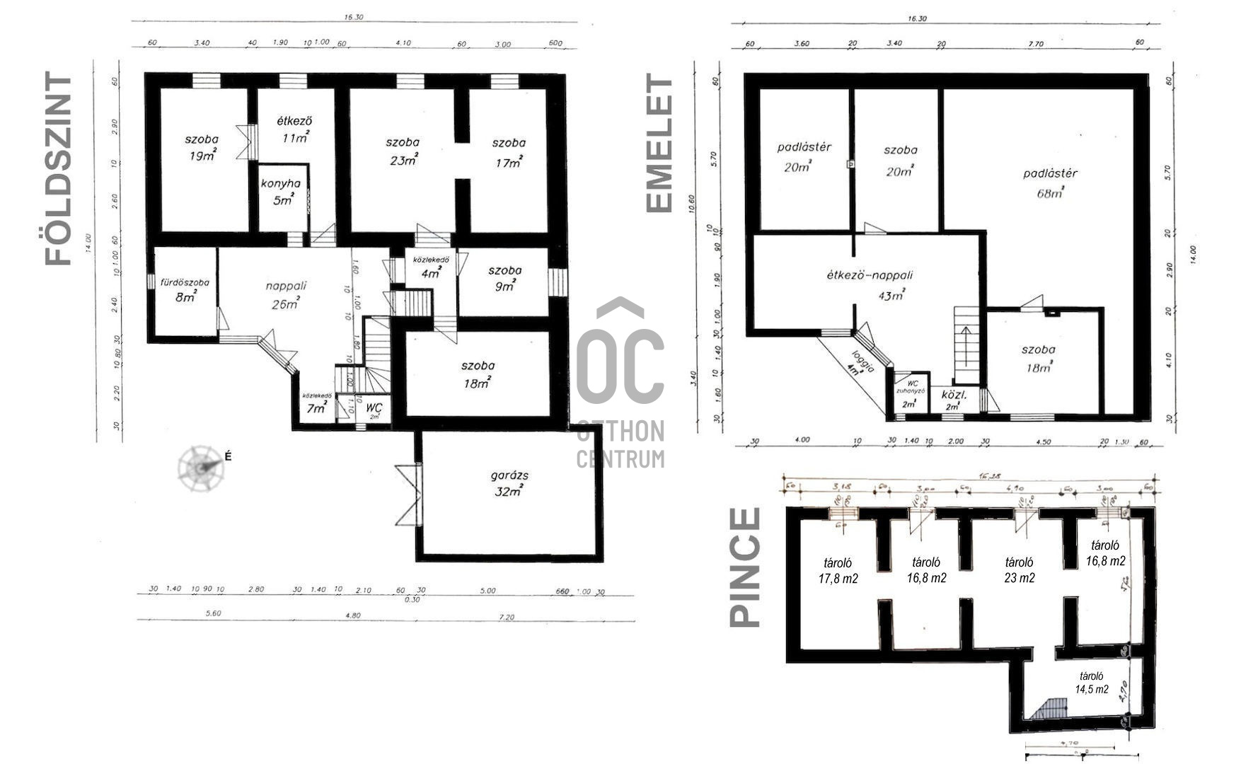
- a földszinten és az emeleten összesen 232 m2 nettó hasznos területen 9 szoba a földszint légkondicionáló működilk
- egy 32 m2-es garázs, 88 m2 beépíthető padlástér és az alagsorban 89 m2-en 5 helyiség ahol akár irodák, üzlethelyiségek is kialakíthatók hiszen a Dobó Ferenc út felé nyíló két bejárattal is rendelkeznek, de a földszinti lakórészből is megközelíthető
- a földszinten nappali + 5 szoba, az emeleten nappali + 2 szoba
- a nappalik délkeleti, a szobák pedig nyugati és északkeleti tájolásúak, igényesen kialakított minden helyiség
- vegyes falazat, tégla, kő és szilikát
- a központi fűtés gázkazánról és vegyes tüzelésű kazánról is megoldható
- az utcafront felé néző oldalon a földszinten fa, az emeleten és az udvar felé néző oldalon pedig hő- és hangszigetelt műanyag nyílászárók, fa beltéri ajtók
- duplakomfort: a földszinten egy 8 m2-es fürdő, egy külön nyíló wc, az emeleten egy tusoló található
- stabil tetőszerkezet, cserép héjazat
- az emeleten egy 4 m2-es fedett loggia kovácsoltvas korláttal
- az 546 m2-es telekre tágas tolókapun keresztül lehet behajtani
- az udvaron egy tágas térkövezett terasz, autóbeálló lebetonozva akár 6 autó számára is elegendő, tágas garázs és egy körbeülhető épített szalonnasütős fedett filagória található a családi és baráti összejövetelekhez
- szépen gondozott nagyrészt füvesített kert
- épített kő/tégla kerítés, a kert végében pedig lemezkerítés
- az ingatlan két helyrajzi számon rögzítve, társasházzá alakítva
- csendes utca, jó szomszédság
- Sárospatak belvárosa csak 200 méterre, a Bodrog folyó 300 méterre, a Rákóczi Vár is csak 1 km távolságra
- buszmegálló 300 méterre, vasútállomás 800 méterre, a 37-es főút autóval 6 perc távolságra
- kiváló adottságainak köszönhetően felvehető babaváró hitel és 3 gyermekes CSOK Plusz kamattámogatott hitel is
- a Szlovák határ 17 km-re húzódik, ahonnan kb. 6-7 km a felújított Borsi kastély, Rákóczi Fejedelmünk szülőháza
- gépkocsival a sátoraljaújhelyi kalandpark mindössze 15 km-re található
Hívjon bizalommal, tekintse meg mielőbb és bele fog szeretni!
Registration Number
OHH171161
Property Details
Sales
for sale
Legal Status
used
Character
house
Construction Method
other
Net Size
232 m²
Plot Size
546 m²
Heating
other
Condition
Good
Rooms
living room
26 m²
room
23 m²
room
19 m²
room
17 m²
room
18 m²
room
9 m²
living room
41 m²
room
20 m²
room
18 m²
dining room
11 m²
kitchen
5 m²
corridor
7 m²
corridor
4 m²
bathroom
8 m²
toilet
2 m²
bathroom
2 m²
corridor
2 m²
garage
32 m²
other
20 m²
other
68 m²
storage
23 m²
storage
17.8 m²
storage
16.8 m²
storage
16.8 m²
storage
14.5 m²

Varkolyné Viktória
Credit Expert