data_sheet.details.realestate.section.main.otthonstart_flag.label
For sale apartment,
OHH159348
Nagykanizsa, Belváros
27,900,000 Ft
72,000 €
- 97m²
- 3 Rooms
- ground floor


















A polgári jellegű lakás jellemzői:
-a Deák tértől 350 m-re a déli városrészben
-néhány perc sétával szinte minden elérhető
-tégla építésű földszintes, kertkapcsolatos társasházban
-műanyag,hőszigetelt ablakok és bejárati ajtó
-villanyhálózat részlegesen felújítva
-előnyös elosztású,K-D-i tájolású napfényes lakás
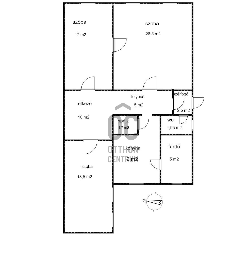
-97 M2-S alapterületen három tágas szoba,konyha,spájz,étkező, fürdő-wc, plusz külön wc, szélfogó
-a szobák galériázhatóak,a lakótér jól alakítható ezáltal
-egyedi konvektoros fűtés,kandalló az étkezőben
-kert felé nyíló terasz
-rendezett,gondozott udvar,jó lakóközösség
-közös költség nincs
-kis ráfordítással költözhető,de igény szerint újítható-szépíthető
-parkolási lehetőség az udvarban
-méretes tároló a kertben,helyére garázs is telepíthető
Registration Number
OHH159348
Property Details
Sales
for sale
Legal Status
used
Character
apartment
Construction Method
brick
Net Size
97 m²
Heating
tile stove (gas)
Condition
Good
Rooms
room
26.5 m²
room
17 m²
room
18.5 m²
kitchen
9 m²
dining room
10 m²
bathroom
5 m²
corridor
5 m²
pantry
1.7 m²
toilet
1.95 m²
other
2.5 m²

Horváth Szabina
Credit Expert