119,990,000 Ft
311,000 €
- 90m²
- 3 Rooms
- 1st floor
Képzelje el, hogy egy csendes, mégis központi elhelyezkedésű, felújítandó lakás várja Önt Budapest VIII. kerületében, a Tisztviselőtelepen.
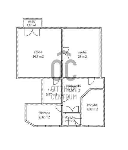
Ez a 90 négyzetméteres, három szobás ingatlan ideális választás lehet középkorú vásárlók számára, akik otthont keresnek, vagy befektetési céllal szeretnék bővíteni portfóliójukat.
A lakás egy tehermentes ingatlan, amely lehetőséget kínál arra, hogy saját ízlésére formálja, hiszen a felújítás során Ön alakíthatja ki álmai otthonát.
A lakás nagy belmagassággal rendelkezik, amely tágas érzetet kelt, és lehetőséget ad a kreatív megoldásokra.
Az ingatlanhoz tartozik egy 2 négyzetméteres erkély, amely tökéletes helyszín a reggeli kávézásra vagy a pihenésre egy hosszú nap után.
Az ingatlan fűtése gáz (cirko), amely gazdaságos megoldást kínál a téli hónapokban.
A környék ellátottsága kiváló, hiszen a közeli üzletek, piacok és szolgáltatások minden igényt kielégítenek.
A közlekedés szempontjából is kitűnő lehetőségeket kínál: a közelben található közlekedési csomópontok révén könnyen elérheti Budapest bármely pontját, legyen szó autós vagy tömegközlekedési megoldásokról.
A csendes utcák és a barátságos szomszédság hozzájárulnak a nyugodt életvitelhez, miközben a belvárosi lakás előnyeit élvezheti.
Tartozik az ingatlanhoz egy saját tároló illetve egy gépkocsi beállási lehetőség zárt körbekerített területen a ház udvarán.
Az ingatlan elhelyezkedése miatt nemcsak lakóhelyként, hanem befektetési célra is ideális választás. A felkapott környék folyamatosan fejlődik, így a jövőbeni értéknövekedés garantált.
A környék biztonságos, ami különösen fontos lehet családok számára, és a szomszédság barátságos légkört teremt.
Ha Ön is szeretné felfedezni ezt a remek lehetőséget, ne habozzon kapcsolatba lépni velem. Szívesen válaszolok kérdéseire, és segítek Önnek abban, hogy megtalálja az ideális ingatlant.
Az ingatlanpiac folyamatosan változik, így érdemes gyorsan dönteni, hogy ne maradjon le erről a kivételes ajánlatról. Kérem, ne habozzon, keressen bizalommal!
Ez a 90 négyzetméteres, három szobás ingatlan ideális választás lehet középkorú vásárlók számára, akik otthont keresnek, vagy befektetési céllal szeretnék bővíteni portfóliójukat.
A lakás egy tehermentes ingatlan, amely lehetőséget kínál arra, hogy saját ízlésére formálja, hiszen a felújítás során Ön alakíthatja ki álmai otthonát.
A lakás nagy belmagassággal rendelkezik, amely tágas érzetet kelt, és lehetőséget ad a kreatív megoldásokra.
Az ingatlanhoz tartozik egy 2 négyzetméteres erkély, amely tökéletes helyszín a reggeli kávézásra vagy a pihenésre egy hosszú nap után.
Az ingatlan fűtése gáz (cirko), amely gazdaságos megoldást kínál a téli hónapokban.
A környék ellátottsága kiváló, hiszen a közeli üzletek, piacok és szolgáltatások minden igényt kielégítenek.
A közlekedés szempontjából is kitűnő lehetőségeket kínál: a közelben található közlekedési csomópontok révén könnyen elérheti Budapest bármely pontját, legyen szó autós vagy tömegközlekedési megoldásokról.
A csendes utcák és a barátságos szomszédság hozzájárulnak a nyugodt életvitelhez, miközben a belvárosi lakás előnyeit élvezheti.
Tartozik az ingatlanhoz egy saját tároló illetve egy gépkocsi beállási lehetőség zárt körbekerített területen a ház udvarán.
Az ingatlan elhelyezkedése miatt nemcsak lakóhelyként, hanem befektetési célra is ideális választás. A felkapott környék folyamatosan fejlődik, így a jövőbeni értéknövekedés garantált.
A környék biztonságos, ami különösen fontos lehet családok számára, és a szomszédság barátságos légkört teremt.
Ha Ön is szeretné felfedezni ezt a remek lehetőséget, ne habozzon kapcsolatba lépni velem. Szívesen válaszolok kérdéseire, és segítek Önnek abban, hogy megtalálja az ideális ingatlant.
Az ingatlanpiac folyamatosan változik, így érdemes gyorsan dönteni, hogy ne maradjon le erről a kivételes ajánlatról. Kérem, ne habozzon, keressen bizalommal!
Registration Number
H514712
Property Details
Sales
for sale
Legal Status
used
Character
apartment
Construction Method
brick
Net Size
90 m²
Gross Size
90 m²
Size of Terrace / Balcony
2 m²
Heating
Gas circulator
Ceiling Height
316 cm
Orientation
East
Staircase Type
circular corridor
Condition
To be renovated
Condition of Facade
Excellent
Condition of Staircase
Excellent
Basement
Independent
Neighborhood
quiet, good transport, green, central
Year of Construction
1926
Number of Bathrooms
1
Position
street-facing
Water
Available
Gas
Available
Electricity
Available
Sewer
Available
Elevator
available
Rooms
room
26 m²
room
23 m²
room
9 m²
hall
12 m²
bathroom-toilet
5 m²
open-plan kitchen and dining room
9 m²
entryway
3 m²
Hazay Melinda
Credit Expert