164,900,000 Ft
439,000 €
- 170m²
- 5 Rooms
Fedezze fel álmai otthonát! 5 szobás családi ház Fóton, Királydombon várja Önt!
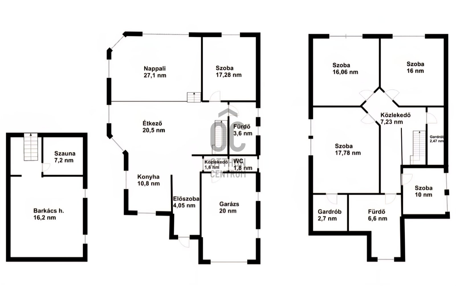
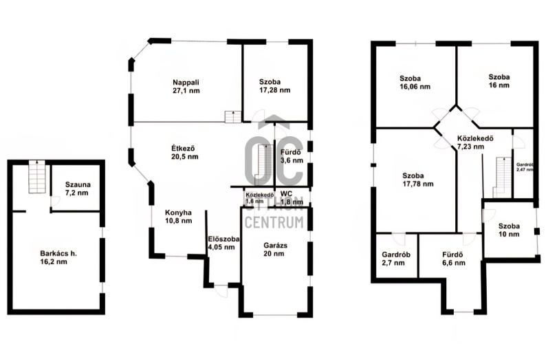
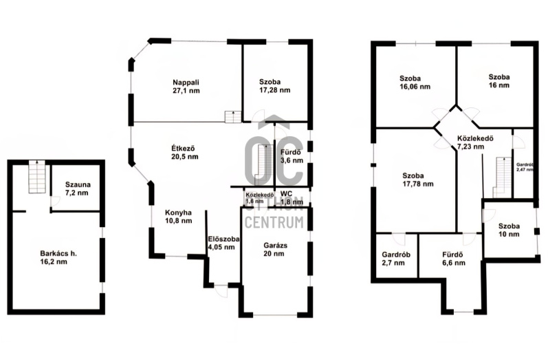
Fót városának Királydomb városrészében található ez a lenyűgöző családi ház, amely ideális választás lehet családosok számára, akik szeretnék megtalálni álmaik otthonát egy csendes és biztonságos környéken. Az ingatlan 170 négyzetméteres alapterülete és 540 négyzetméteres telek mérete lehetővé teszi, hogy a család minden tagja kényelmesen elférjen, miközben a tágas nappali és az amerikai konyha egyedi tervezésének köszönhetően a közös családi pillanatok igazi színhelyévé válik. A házban öt szoba található, amelyből két fürdőszoba biztosítja a maximális kényelmet, így reggelente nem kell várakozni a fürdőszobára. A 30 négyzetméteres terasz és a 10 négyzetméteres erkély tökéletes helyszínt biztosít a pihenésre, baráti összejövetelekre vagy akár egy kellemes reggeli kávéra, miközben a panorámás kilátásban gyönyörködhet. Az ingatlan állapota jó, és a gáz (cirkó) fűtés biztosítja a meleg otthont a hideg téli hónapokban. A ház tehermentes, így gyorsan birtokba vehető, ami különösen fontos lehet a családok számára. A környék ellátottsága kiváló, hiszen a közeli üzletek, óvodák, iskolák és orvosi rendelők mind könnyen elérhetők. A kitűnő közlekedésnek köszönhetően Fót központja és Budapest is gyorsan megközelíthető, legyen szó autós vagy tömegközlekedési lehetőségekről. A csendes utcák és a barátságos szomszédság ideális környezetet biztosítanak a családok számára, ahol a gyerekek biztonságosan játszhatnak. A házhoz tartozó szauna pedig egyedi élményt kínál, amely lehetőséget ad a relaxálásra és a feltöltődésre a mindennapi rohanás után. A riasztórendszer gondoskodik a biztonságról, így Ön teljes nyugalommal élvezheti új otthonát. Ha Ön egy olyan ingatlant keres, amely nemcsak a családja igényeit elégíti ki, hanem a környék előnyeit is maximálisan kihasználja, ne habozzon, keressen bizalommal! Kérdéseivel, igényeivel szívesen állok rendelkezésére, hogy segítséget nyújtsak a megfelelő döntés meghozatalában. Az ingatlan iránt érdeklődők számára ez a lehetőség igazán különleges, hiszen egy felkapott környéken található, amely a jövőbeni értéknövekedés szempontjából is kedvező lehet.
Fót városának Királydomb városrészében található ez a lenyűgöző családi ház, amely ideális választás lehet családosok számára, akik szeretnék megtalálni álmaik otthonát egy csendes és biztonságos környéken. Az ingatlan 170 négyzetméteres alapterülete és 540 négyzetméteres telek mérete lehetővé teszi, hogy a család minden tagja kényelmesen elférjen, miközben a tágas nappali és az amerikai konyha egyedi tervezésének köszönhetően a közös családi pillanatok igazi színhelyévé válik. A házban öt szoba található, amelyből két fürdőszoba biztosítja a maximális kényelmet, így reggelente nem kell várakozni a fürdőszobára. A 30 négyzetméteres terasz és a 10 négyzetméteres erkély tökéletes helyszínt biztosít a pihenésre, baráti összejövetelekre vagy akár egy kellemes reggeli kávéra, miközben a panorámás kilátásban gyönyörködhet. Az ingatlan állapota jó, és a gáz (cirkó) fűtés biztosítja a meleg otthont a hideg téli hónapokban. A ház tehermentes, így gyorsan birtokba vehető, ami különösen fontos lehet a családok számára. A környék ellátottsága kiváló, hiszen a közeli üzletek, óvodák, iskolák és orvosi rendelők mind könnyen elérhetők. A kitűnő közlekedésnek köszönhetően Fót központja és Budapest is gyorsan megközelíthető, legyen szó autós vagy tömegközlekedési lehetőségekről. A csendes utcák és a barátságos szomszédság ideális környezetet biztosítanak a családok számára, ahol a gyerekek biztonságosan játszhatnak. A házhoz tartozó szauna pedig egyedi élményt kínál, amely lehetőséget ad a relaxálásra és a feltöltődésre a mindennapi rohanás után. A riasztórendszer gondoskodik a biztonságról, így Ön teljes nyugalommal élvezheti új otthonát. Ha Ön egy olyan ingatlant keres, amely nemcsak a családja igényeit elégíti ki, hanem a környék előnyeit is maximálisan kihasználja, ne habozzon, keressen bizalommal! Kérdéseivel, igényeivel szívesen állok rendelkezésére, hogy segítséget nyújtsak a megfelelő döntés meghozatalában. Az ingatlan iránt érdeklődők számára ez a lehetőség igazán különleges, hiszen egy felkapott környéken található, amely a jövőbeni értéknövekedés szempontjából is kedvező lehet.
Registration Number
H514322
Property Details
Sales
for sale
Legal Status
used
Character
house
Construction Method
brick
Net Size
170 m²
Gross Size
200 m²
Plot Size
540 m²
Size of Terrace / Balcony
40 m²
Heating
Gas circulator
Ceiling Height
265 cm
Number of Levels Within the Property
2
Orientation
South-West
Condition
Good
Condition of Facade
Good
Neighborhood
quiet, good transport
Year of Construction
2000
Number of Bathrooms
2
Garage Spaces
1
Water
Available
Gas
Available
Electricity
Available
Sewer
Available
Storage
Independent
Rooms
bathroom-toilet
10 m²
open-plan kitchen and dining room
16 m²
living room
26 m²
study
12 m²
room
14 m²
room
14 m²
room
13 m²
Víg Attila
Credit Expert