data_sheet.details.realestate.section.main.otthonstart_flag.label
For sale apartment,
H513794
Hévíz
99,900,000 Ft
265,000 €
- 94m²
- 2 Rooms
- ground floor
Just a few minutes from the world-famous Hévízi Lake Bath, in the pedestrian street of Hévíz – commercial property convertible into an apartment!
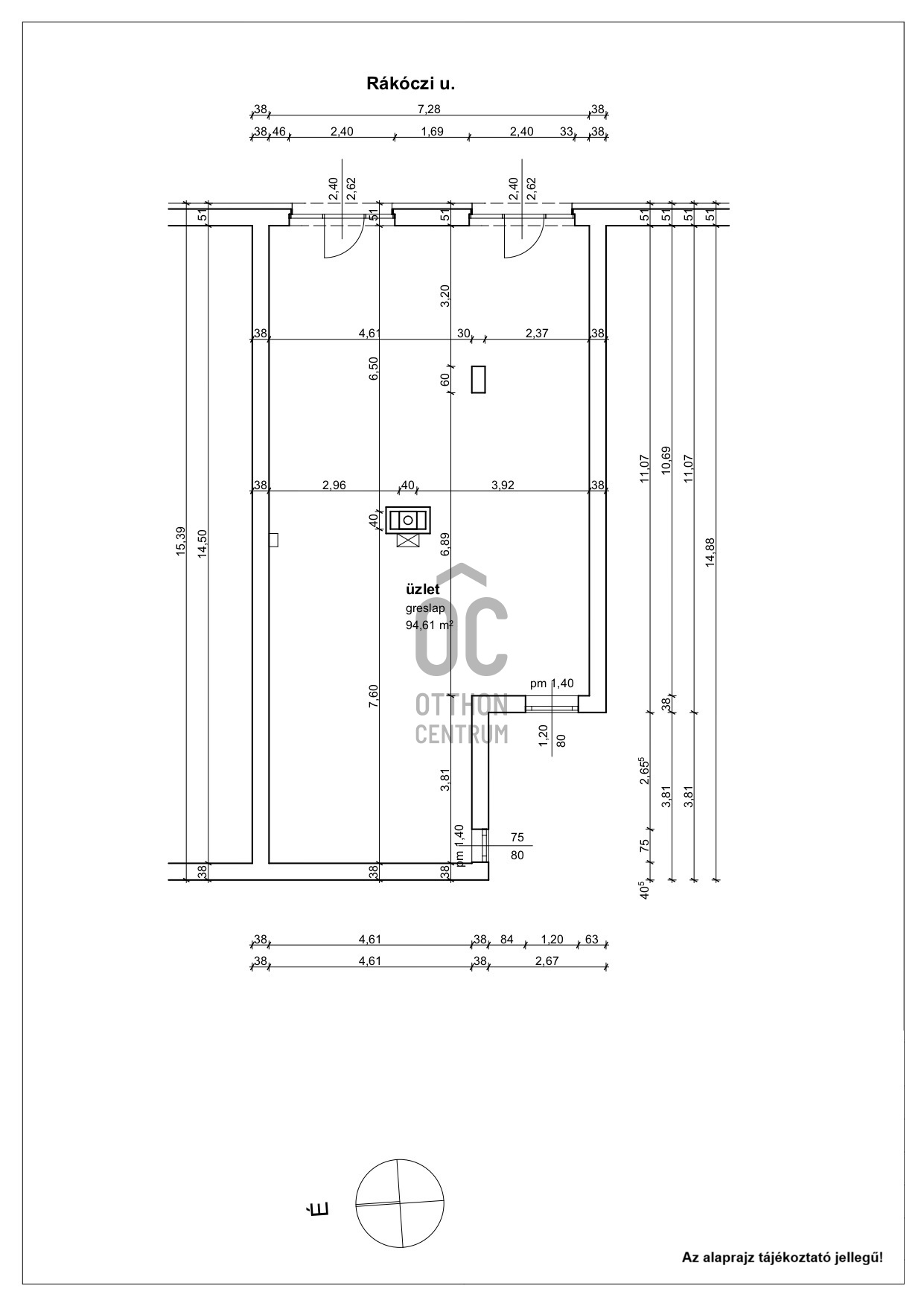
In the most frequented area of Hévíz, in the pedestrian street, a 94 m² ground-floor, brick-built property is for sale. The property is currently operating as two separate commercial units but is also suitable for residential use and can easily be opened into one single unit if desired.
It is located just a few minutes’ walk from the entrance of the Hévízi Lake Bath. The property features a direct street entrance.
Both units are equipped with a kitchenette and a WC with shower, making them independently functional and easy to utilize.
Heating is provided by a gas combi boiler, ensuring cost-efficient operation. The property represents an outstanding investment opportunity in one of the most sought-after locations of Hévíz. The current tenants may remain, allowing the investment to generate immediate returns with a short payback period.
Everything is within easy reach: shops, restaurants, services, and the city’s most visited tourist attractions. Don’t miss this rare opportunity to acquire a property in one of the best locations in Hévíz!
The information provided is based solely on details supplied by our clients. Accordingly, we assume no liability for the completeness, accuracy, or timeliness of the data. We reserve the right to change the price, modify the information, or complete a sale prior to notice, and we accept no legal responsibility in this regard.
It is located just a few minutes’ walk from the entrance of the Hévízi Lake Bath. The property features a direct street entrance.
Both units are equipped with a kitchenette and a WC with shower, making them independently functional and easy to utilize.
Heating is provided by a gas combi boiler, ensuring cost-efficient operation. The property represents an outstanding investment opportunity in one of the most sought-after locations of Hévíz. The current tenants may remain, allowing the investment to generate immediate returns with a short payback period.
Everything is within easy reach: shops, restaurants, services, and the city’s most visited tourist attractions. Don’t miss this rare opportunity to acquire a property in one of the best locations in Hévíz!
The information provided is based solely on details supplied by our clients. Accordingly, we assume no liability for the completeness, accuracy, or timeliness of the data. We reserve the right to change the price, modify the information, or complete a sale prior to notice, and we accept no legal responsibility in this regard.
Registration Number
H513794
Property Details
Sales
for sale
Legal Status
used
Character
apartment
Construction Method
brick
Net Size
94 m²
Gross Size
94 m²
Size of Terrace / Balcony
19 m²
Heating
Gas circulator
Ceiling Height
270 cm
Orientation
West
Staircase Type
none
Condition
Good
Condition of Facade
Good
Condition of Staircase
Good
Neighborhood
quiet, good transport, green, central
Year of Construction
1996
Number of Bathrooms
2
Position
street-facing
Water
Available
Gas
Available
Electricity
Available
Sewer
Available
Distance to Waterfront
500 meters
Rooms
room
1 m²
kitchen
1 m²
bathroom-toilet
1 m²
room
1 m²
kitchen
1 m²
bathroom-toilet
1 m²
terrace
1 m²
Edve János
Credit Expert