data_sheet.details.realestate.section.main.otthonstart_flag.label
For sale apartment,
H513351
Budapest XIV. kerület, Nagyzugló
90,000,000 Ft
239,000 €
- 60m²
- 2 Rooms
- raised ground floor
3-ROOM, TERRACED HOME just 5 minutes from Örs!
FAMILY HOME WITH TERRACE – 3-ROOM APARTMENT 5 MINUTES FROM ÖRS VEZÉR SQUARE – ELIGIBLE FOR 3% SUBSIDIZED LOAN!
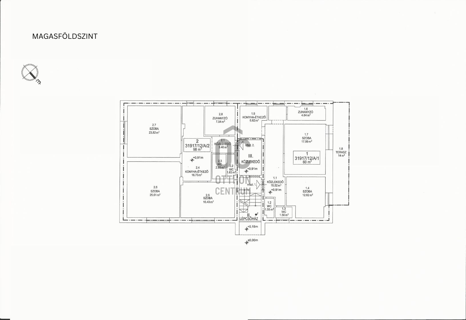
We offer for sale a 60 m², 3-room, raised ground-floor apartment with a terrace, located in a well-connected area of Budapest, just 5 minutes’ walk from Örs Vezér Square. The property is an ideal choice for families.
The apartment is situated in a continuously maintained building designed by an engineer. The building is currently undergoing conversion into a condominium; however, the apartments already have separate land registry numbers, making the property eligible for the 3% subsidized loan.
Main features of the apartment:
60 m² of living space
3 separate, well-proportioned rooms
14 m² sunny terrace
practical, family-friendly layout
bright, spacious interiors
raised ground-floor location – easy access for families with small children or elderly relatives
Storage options:
basement bicycle and stroller storage
shared storage room
community space available for residents
Parking:
⚠️ An inner courtyard parking space must be purchased together with the apartment, providing safe and convenient parking.
Possession:
Move-in possible within 2 months
Renovation / customization:
If the new owner wishes to adapt the apartment to their own needs, a reliable and experienced contractor is available to assist with renovation or layout changes.
Location:
M2 metro line, HÉV suburban railway, and several bus lines within minutes
shopping centers, kindergartens, schools, and medical services nearby
an excellent choice for families with children
This apartment is a great opportunity for those looking to create a comfortable family home in a calm, family-friendly environment with excellent transport connections, while also taking advantage of the favorable 3% subsidized loan option.
For further information or to arrange a viewing, please feel free to contact me.
We offer for sale a 60 m², 3-room, raised ground-floor apartment with a terrace, located in a well-connected area of Budapest, just 5 minutes’ walk from Örs Vezér Square. The property is an ideal choice for families.
The apartment is situated in a continuously maintained building designed by an engineer. The building is currently undergoing conversion into a condominium; however, the apartments already have separate land registry numbers, making the property eligible for the 3% subsidized loan.
Main features of the apartment:
60 m² of living space
3 separate, well-proportioned rooms
14 m² sunny terrace
practical, family-friendly layout
bright, spacious interiors
raised ground-floor location – easy access for families with small children or elderly relatives
Storage options:
basement bicycle and stroller storage
shared storage room
community space available for residents
Parking:
⚠️ An inner courtyard parking space must be purchased together with the apartment, providing safe and convenient parking.
Possession:
Move-in possible within 2 months
Renovation / customization:
If the new owner wishes to adapt the apartment to their own needs, a reliable and experienced contractor is available to assist with renovation or layout changes.
Location:
M2 metro line, HÉV suburban railway, and several bus lines within minutes
shopping centers, kindergartens, schools, and medical services nearby
an excellent choice for families with children
This apartment is a great opportunity for those looking to create a comfortable family home in a calm, family-friendly environment with excellent transport connections, while also taking advantage of the favorable 3% subsidized loan option.
For further information or to arrange a viewing, please feel free to contact me.
Registration Number
H513351
Property Details
Sales
for sale
Legal Status
used
Character
apartment
Construction Method
brick
Net Size
60 m²
Gross Size
65 m²
Size of Terrace / Balcony
14 m²
Heating
Gas circulator
Ceiling Height
360 cm
Orientation
North-West
Staircase Type
enclosed staircase
Condition
Good
Condition of Facade
Excellent
Condition of Staircase
Good
Neighborhood
good transport, green, central
Year of Construction
1970
Number of Bathrooms
1
Position
garden-facing
Water
Available
Gas
Available
Electricity
Available
Sewer
Available
Storage
Shared
Rooms
corridor
15 m²
bathroom
4.6 m²
toilet
1.5 m²
toilet
1.5 m²
room
12.6 m²
room
17.9 m²
kitchen
6.6 m²
Ruczek Krisztina
Credit Expert