For sale family house, H512860
Budakeszi, Villám Miklós utca

289,000,000 Ft

739,000 €

  • 290m²
  • 8 Rooms
Exclusive Contract

A freshly renovated premium house is waiting for you in Budakeszi!

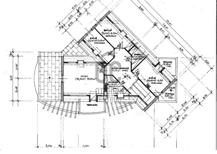
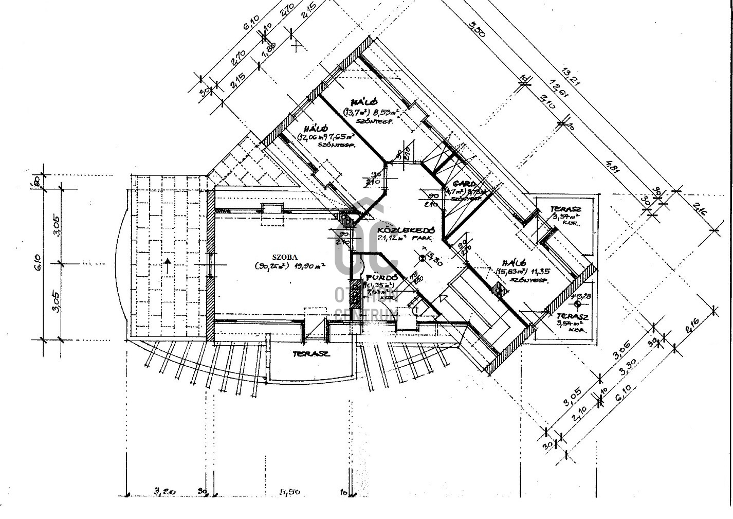
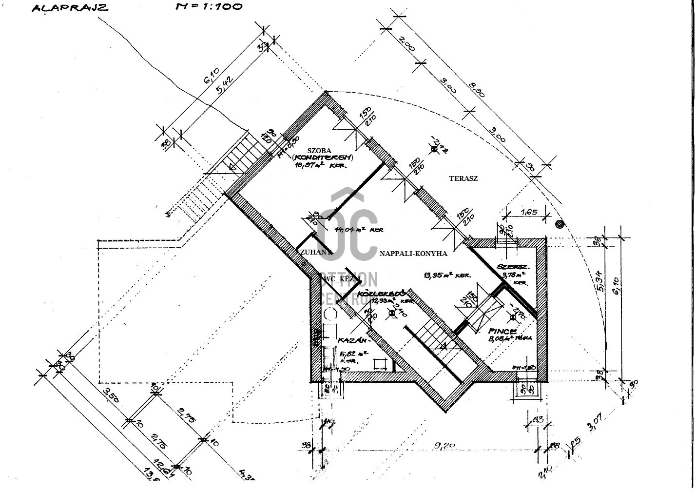
**For Sale: Premium, Newly Renovated Family House in the Barackos Area of Budakeszi** In the Barackos area of Budakeszi, we offer for sale a 849 sqm, south-facing corner plot featuring a newly fully renovated and modernized family house with a net area of 290 sqm and 8 rooms. The property's design is ideal for comfortable cohabitation of two generations. The house boasts bright, spacious areas, modern solutions, and high-quality materials. Energy-efficient operation is supported by a solar panel system and solar collectors, while newly installed heating and cooling air conditioning units ensure year-round comfort. During the renovation, almost everything has been renewed both inside and outside, so there is nothing to do for a long time. The exterior and interior finishes are new, the windows and doors are new, the bathrooms are new, the terraces have been rebuilt, the roofing is new, the exterior facade is new, and the kitchen can be customized according to preferences. From the living room level, a large terrace opens up to the garden, and the bedrooms on the upper floor have three balconies. The lower level also includes a separate kitchen, two rooms, and a cozy wine cellar. The property includes a two-car garage, and there is a three-phase electrical outlet available for electric car charging. In the well-maintained garden, you will find: - Fruit-bearing trees - A grassy relaxation area - A garden barbecue - A 10 m³ rainwater collection cistern Excellent infrastructure: A SPAR supermarket, Széchenyi István Primary School, kindergarten, and nursery, as well as a bus stop, are all within 300 meters. This property is the perfect choice for those looking for a modern, energy-efficient, spacious home in one of Budakeszi's most sought-after areas, in a peaceful environment yet with excellent amenities. Move-in ready! For more information, I look forward to your call.

Registration Number

H512860

Property Details

Sales
for sale
Legal Status
used
Character
house
Construction Method
brick
Net Size
290 m²
Gross Size
340 m²
Plot Size
849 m²
Size of Terrace / Balcony
66 m²
Heating
Gas circulator
Ceiling Height
280 cm
Number of Levels Within the Property
3
Orientation
South
Condition
Excellent
Condition of Facade
Excellent
Basement
Independent
Year of Construction
1998
Number of Bathrooms
3
Condominium Garden
yes
Garage
Included in the price
Garage Spaces
2
Water
Available
Gas
Available
Electricity
Available
Sewer
Available
Multi-Generational
yes
Storage
Independent

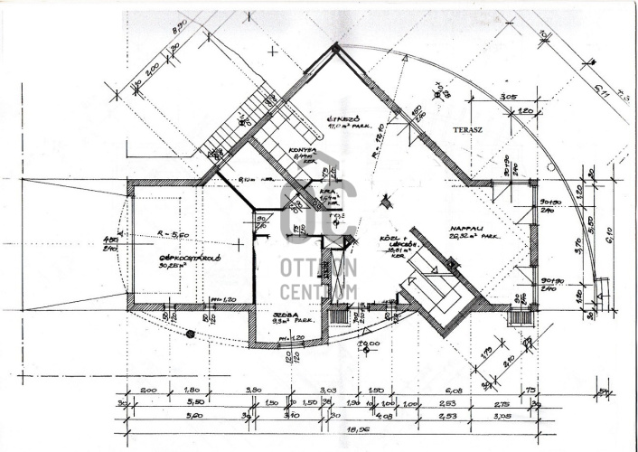
Rooms

open-plan kitchen and living room
45.5 m²
pantry
1.6 m²
corridor
19 m²
entryway
5 m²
room
15 m²
bathroom-toilet
8 m²
garage
30 m²
terrace
30 m²
corridor
21 m²
room
16 m²
terrace
2.5 m²
terrace
2.5 m²
room
14 m²
room
12 m²
room
30 m²
terrace
4 m²
bathroom-toilet
10 m²
wardrobe
4.7 m²
open-plan kitchen and living room
25 m²
wine cellar
10 m²
corridor
13 m²
boiler room
6 m²
bathroom-toilet
3 m²
room
19 m²
room
9 m²
terrace
28 m²
Pfeffer Kinga
Pfeffer Kinga

Credit Expert

From Our Office Listings - Budakeszi

for sale apartment

Index image
data_sheet.details.realestate.section.main.otthonstart_flag.label
28

for sale family house

Index image
27

for sale apartment

Index image
44

for sale apartment

Index image
29

for sale family house

Index image
41

for sale new construction family house

Index image
26

for sale family house

Index image
23