data_sheet.details.realestate.section.main.otthonstart_flag.label
For sale apartment,
H512572
Hegykő
89,990,000 Ft
238,000 €
- 71m²
- 3 Rooms
- 1st floor
Kompromisszumok nélküli minőség !
Prémium minőségű, teljesen berendezett, alig lakott lakás eladó Hegykőn !
Hegykő kedvelt, nyugodt részén, Soprontól mindössze 17 km-re, 2020-ban épült, modern társasházban kínálunk megvételre egy rendkívül igényesen kialakított, azonnal költözhető lakást.
Főbb paraméterek:
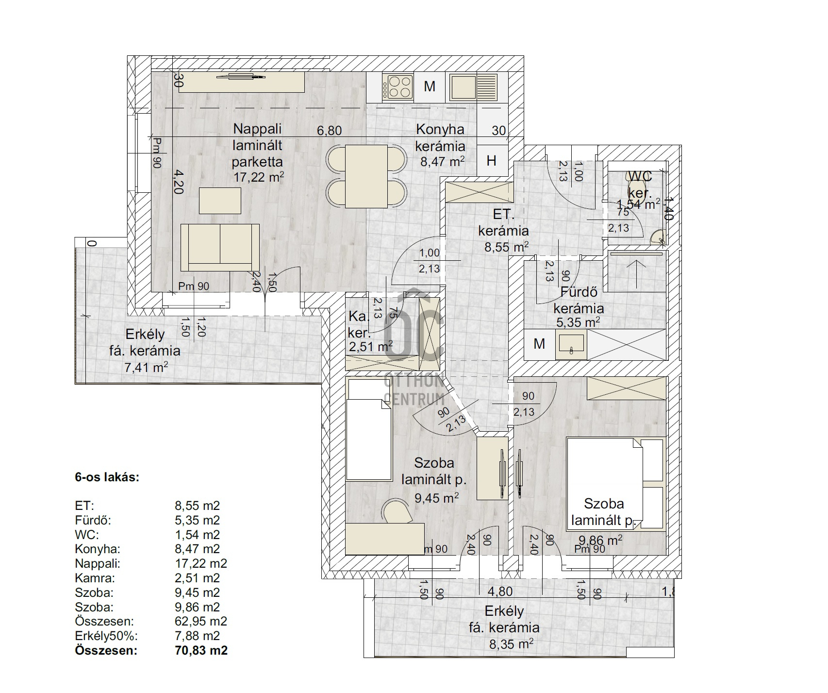
Alapterület: 71 m²
Emelet: 1. emelet
Elrendezés: amerikai konyhás nappali , 2 hálószoba, 2 erkély, külön WC, kamra
Fűtés: házközponti fűtés ( Hibrid hőszivattyú, gáz ) , padlófűtéssel, radiátorokkal
Hűtés: klímaberendezés
Parkolás: saját gépkocsi-beálló ( +2,9 M Ft )
Állapot: újszerű, prémium kivitelezés, minőségi anyagokkal, berendezéssel.
✨ Amitől igazán különleges:
- Teljes berendezéssel és bútorzattal eladó – csak költözni kell ( tényleg teljes berendezéssel, beleértve mosó és szárítógépet bútorokat, MINDENT! )
- Igényes konyhabútor Bosch konyhagépekkel ( sütő, mikró, kerámia főzőlap, elszívó , mosogató, hűtő )
- Modern, letisztult belső design
- Minőségi bútorok, burkolatok és egyedi megoldások
- Világos, jól élhető terek
- Műanyag külső nyílászárók, 3 rétegű üvegezéssel,
- Motoros, alumínium redőnyök
- Kiváló energiahatékonyság, alacsony fenntartási költségek
- A lakást alig lakták, csak időszakos tartózkodásra használták.
Elhelyezkedés
Hegykő kiváló infrastruktúrával rendelkező, folyamatosan fejlődő település, termálfürdőjéről és nyugodt környezetéről ismert. Ideális választás állandó lakhatásra, nyaralónak vagy befektetésnek is egyaránt hiszen a jelenlegi tulaj vissza is bérelné.
Összegzés
Ez a lakás tökéletes választás azok számára, akik modern, igényes otthont keresnek kompromisszumok nélkül, és fontos számukra a jó környezet és akár az azonnali költözés lehetősége.
Hitelre van szüksége??
Az Otthon Centrum az ország egyik legnagyobb és legmegbízhatóbb hitelközvetítőjeként, teljes körű és díjmentes hitelügyintézéssel, biztosításkötéssel áll rendelkezésére!
Kérje személyre szabott ajánlatunkat Kollégáinktól!
Hegykő kedvelt, nyugodt részén, Soprontól mindössze 17 km-re, 2020-ban épült, modern társasházban kínálunk megvételre egy rendkívül igényesen kialakított, azonnal költözhető lakást.
Főbb paraméterek:
Alapterület: 71 m²
Emelet: 1. emelet
Elrendezés: amerikai konyhás nappali , 2 hálószoba, 2 erkély, külön WC, kamra
Fűtés: házközponti fűtés ( Hibrid hőszivattyú, gáz ) , padlófűtéssel, radiátorokkal
Hűtés: klímaberendezés
Parkolás: saját gépkocsi-beálló ( +2,9 M Ft )
Állapot: újszerű, prémium kivitelezés, minőségi anyagokkal, berendezéssel.
✨ Amitől igazán különleges:
- Teljes berendezéssel és bútorzattal eladó – csak költözni kell ( tényleg teljes berendezéssel, beleértve mosó és szárítógépet bútorokat, MINDENT! )
- Igényes konyhabútor Bosch konyhagépekkel ( sütő, mikró, kerámia főzőlap, elszívó , mosogató, hűtő )
- Modern, letisztult belső design
- Minőségi bútorok, burkolatok és egyedi megoldások
- Világos, jól élhető terek
- Műanyag külső nyílászárók, 3 rétegű üvegezéssel,
- Motoros, alumínium redőnyök
- Kiváló energiahatékonyság, alacsony fenntartási költségek
- A lakást alig lakták, csak időszakos tartózkodásra használták.
Elhelyezkedés
Hegykő kiváló infrastruktúrával rendelkező, folyamatosan fejlődő település, termálfürdőjéről és nyugodt környezetéről ismert. Ideális választás állandó lakhatásra, nyaralónak vagy befektetésnek is egyaránt hiszen a jelenlegi tulaj vissza is bérelné.
Összegzés
Ez a lakás tökéletes választás azok számára, akik modern, igényes otthont keresnek kompromisszumok nélkül, és fontos számukra a jó környezet és akár az azonnali költözés lehetősége.
Hitelre van szüksége??
Az Otthon Centrum az ország egyik legnagyobb és legmegbízhatóbb hitelközvetítőjeként, teljes körű és díjmentes hitelügyintézéssel, biztosításkötéssel áll rendelkezésére!
Kérje személyre szabott ajánlatunkat Kollégáinktól!
Registration Number
H512572
Property Details
Sales
for sale
Legal Status
used
Character
apartment
Construction Method
brick
Net Size
71 m²
Gross Size
79 m²
Size of Terrace / Balcony
15.7 m²
Heating
central heating
Ceiling Height
270 cm
Number of Levels Within the Property
1
Orientation
East
Staircase Type
enclosed staircase
Condition
Excellent
Condition of Facade
Excellent
Condition of Staircase
Excellent
Neighborhood
quiet, good transport, green, central
Year of Construction
2020
Number of Bathrooms
1
Position
street-facing
Common Costs
14000
Water
Available
Gas
Available
Electricity
Available
Sewer
Available
Rooms
open-plan kitchen and living room
26 m²
room
9.86 m²
room
9.45 m²
bathroom
5.35 m²
entryway
8.55 m²
toilet
1.54 m²
pantry
2.51 m²
balcony
8.35 m²
balcony
7.41 m²
Preidl Barnabás
Credit Expert