data_sheet.details.realestate.section.main.otthonstart_flag.label
For sale family house, H512086
Nagykanizsa, MAORT-telep

89,000,000 Ft

235,000 €

  • 150m²
  • 4 Rooms

A 150 m² family house with a beautiful yard is for sale in Nagykanizsa!

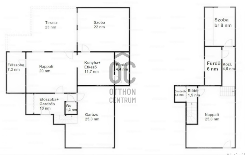
Quality execution with plenty of imagination! Unique design, high-end property for sale near the city center! The property underwent a complete renovation three years ago. The house's exterior and interior spaces have been renewed in a modern style using high-quality materials. If you are looking for a family house close to the city center that is suitable for TWO GENERATIONS, high-quality, in a green area, and ready to move in with an optimal, maintainable lot, then you have found what you are looking for! It is a perfect choice if you desire a modern, comfortable, and high-standard home! Property features: - The house underwent a complete renovation in 2022 and is in excellent condition, built with high-quality materials inside and out. - Ground floor rooms: 2 bedrooms, a living room with a terrace (23 m²), a corridor, kitchen-dining area, bathroom with WC, separate WC, garage (103 m²). - Upper floor rooms: 1 bedroom, a huge living room, a dressing room, a corridor, bathroom with WC, a children's playroom with a gallery (total 47 m²). - A new water supply network has been installed. - The electrical wiring has been fully modernized. - 3-phase electricity is available. - Heating is provided by a condensing gas boiler with radiators. - Additionally, a Fujitsu cooling-heating air conditioning system ensures optimal temperature. - Windows are double-glazed plastic structures equipped with roller blinds. - The bathroom is tiled with high-quality Italian tiles. - High-quality floor coverings in all rooms; on the ground floor, there is an underlay of screed concrete beneath the coverings. - The roof is covered with Bramac tiles, with insulation underneath. - The house has received 10 cm of external insulation. - The fence is aesthetically pleasing VPC. - Our independent, certified colleague is available to assist you with CSOK (Family Housing Allowance) and loan applications free of charge. The plot is 320 m², fully fenced. A storage room and an outbuilding belong to the property. If my advertisement has piqued your interest, I look forward to your call. Our office provides a comprehensive, free service for our searching clients. We offer assistance with professional advice, loan management, preparation of energy certificates, and a lawyer with favorable fees.

Registration Number

H512086

Property Details

Sales
for sale
Legal Status
used
Character
house
Construction Method
brick
Net Size
150 m²
Gross Size
150 m²
Plot Size
320 m²
Size of Terrace / Balcony
23 m²
Heating
Gas circulator
Ceiling Height
263 cm
Number of Levels Within the Property
1
Orientation
South
View
Green view
Condition
Excellent
Condition of Facade
Excellent
Neighborhood
quiet, good transport, green
Year of Construction
1980
Number of Bathrooms
2
Garage
Included in the price
Garage Spaces
1
Water
Available
Gas
Available
Electricity
Available
Sewer
Available
Multi-Generational
yes
Storage
Independent

Rooms

bedroom
22 m²
study
7.3 m²
living room
20 m²
open-plan kitchen and dining room
11.7 m²
bathroom-toilet
4.4 m²
toilet
1.3 m²
living room
25.8 m²
bedroom
8 m²
other room
6 m²
bathroom-toilet
6 m²
staircase
5 m²
corridor
10 m²
garage
25.8 m²
terrace
23 m²
wardrobe
1.5 m²
corridor
4.5 m²
Horváth Szabina
Horváth Szabina

Credit Expert

From Our Office Listings - Nagykanizsa - Fő út

eladó családi ház

Index image
Elérhető Otthon Start hitellel
27

eladó családi ház

Index image
21

eladó családi ház

Index image
Elérhető Otthon Start hitellel
21

eladó családi ház

Index image
Elérhető Otthon Start hitellel
17

eladó nyaraló

Index image
28

eladó lakás

Index image
Elérhető Otthon Start hitellel
19

eladó lakás

Index image
Elérhető Otthon Start hitellel
14

eladó panel lakás

Index image
Elérhető Otthon Start hitellel
15