200,000 Ft
530 €
- 51m²
- 3 Rooms
- 1st floor
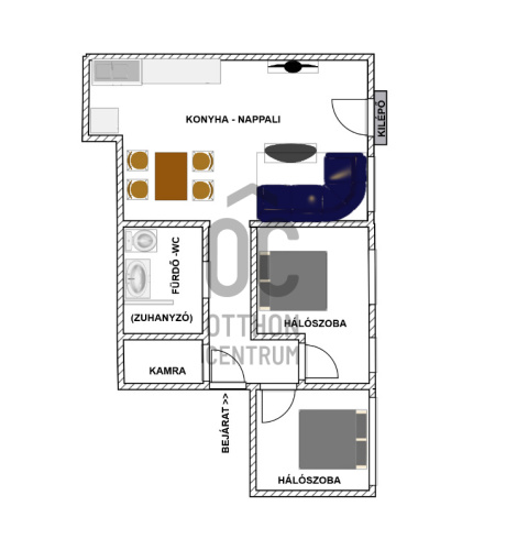
Felújított , nappali-konyhás + 2 hálószobás, I. emeleti lakás várja albérlőjét Tatán, az Öreg-tótól 200m-re.
Az ingatlan teljeskörűen és ízlésesen lett felújítva, rengeteg praktikus átalakítással megspékelve.
A nappaliba bekerült a konyha, így a család akár a pihenéssel, akár az étkezés közben, akár a főzésnél együtt lehet.
2 külön nyíló hálószoba lett kialakítva, ezzel megszűnt a helyiségeken keresztül járás.
A fürdőszoba a régi kád helyett üvegparavános, tágas és modern zuhanyfülkét kapott.
A bejáratnál egy klasszikus előszoba is kialakult, a folyosón pedig további helyet takarítottak meg a praktikus tolóajtóknak köszönhetően.
A tárolásra egy külön nyíló kamra helyiség áll rendelkezésre, ami a mosógépnek és a bojlernek is helyet ad, illetve a folyosón kialakítottak egy beugrót, ahova gardrób szekrény került.
Az ingatlan műanyag nyílászárókkal rendelkezik és egy szigetelt társasház része.
A fűtés helyiségeként elhelyezett elektromos fali fűtőpanelokkal történik, így tetszőlegesen szabályozható.
A lakás konyhabútorral, kerámia főzőlappal, elektromos sütővel, hűtővel, étkezőasztallal, valamint fürdőszoba bútorral és gardrób szekrénnyel felszerelt.
Központi elhelyezkedése ellenére kimondottan csendes környezetben fekszik,
és gyalogos távolságra van a hétköznapi szükségletektől (boltok, buszállomás, iskola, óvoda, orvosi rendelő stb.) valamint Tata nevezetességeitől (Öreg-tó, Vár és környéke ).
Parkolásra közvetlenül társasház mellett rengeteg hely áll rendelkezésre.
A lakás azonnal költözhető.
2 havi kaució szükséges.
A lakás eddig is mentes volt a dohányzástól és ezután sem megengedett.
Komoly, rendes albérlő(ke)t keresünk, hosszú távú együttműködésre, aki(k) akár munkáltatói igazolást is be tudna(k) mutatni a bérleti szerződés előtt.
Mivel 51nm-es lakásról van szó, kérem vegyék figyelemebe, hogy a tulajdonos nem nagycsaládosok jelentkezését várja.
Ha szeretné megtekinteni a lakást, az eredményesebb kommunikáció érdekében kérem, mindenképp telefonon vegye fel a kapcsolatot.
Keressen bizalommal!
Az ingatlan teljeskörűen és ízlésesen lett felújítva, rengeteg praktikus átalakítással megspékelve.
A nappaliba bekerült a konyha, így a család akár a pihenéssel, akár az étkezés közben, akár a főzésnél együtt lehet.
2 külön nyíló hálószoba lett kialakítva, ezzel megszűnt a helyiségeken keresztül járás.
A fürdőszoba a régi kád helyett üvegparavános, tágas és modern zuhanyfülkét kapott.
A bejáratnál egy klasszikus előszoba is kialakult, a folyosón pedig további helyet takarítottak meg a praktikus tolóajtóknak köszönhetően.
A tárolásra egy külön nyíló kamra helyiség áll rendelkezésre, ami a mosógépnek és a bojlernek is helyet ad, illetve a folyosón kialakítottak egy beugrót, ahova gardrób szekrény került.
Az ingatlan műanyag nyílászárókkal rendelkezik és egy szigetelt társasház része.
A fűtés helyiségeként elhelyezett elektromos fali fűtőpanelokkal történik, így tetszőlegesen szabályozható.
A lakás konyhabútorral, kerámia főzőlappal, elektromos sütővel, hűtővel, étkezőasztallal, valamint fürdőszoba bútorral és gardrób szekrénnyel felszerelt.
Központi elhelyezkedése ellenére kimondottan csendes környezetben fekszik,
és gyalogos távolságra van a hétköznapi szükségletektől (boltok, buszállomás, iskola, óvoda, orvosi rendelő stb.) valamint Tata nevezetességeitől (Öreg-tó, Vár és környéke ).
Parkolásra közvetlenül társasház mellett rengeteg hely áll rendelkezésre.
A lakás azonnal költözhető.
2 havi kaució szükséges.
A lakás eddig is mentes volt a dohányzástól és ezután sem megengedett.
Komoly, rendes albérlő(ke)t keresünk, hosszú távú együttműködésre, aki(k) akár munkáltatói igazolást is be tudna(k) mutatni a bérleti szerződés előtt.
Mivel 51nm-es lakásról van szó, kérem vegyék figyelemebe, hogy a tulajdonos nem nagycsaládosok jelentkezését várja.
Ha szeretné megtekinteni a lakást, az eredményesebb kommunikáció érdekében kérem, mindenképp telefonon vegye fel a kapcsolatot.
Keressen bizalommal!
Registration Number
H511115
Property Details
Sales
for rent
Legal Status
used
Character
apartment
Construction Method
brick
Net Size
51 m²
Gross Size
51 m²
Size of Terrace / Balcony
0.3 m²
Ceiling Height
270 cm
Orientation
North-East
Staircase Type
enclosed staircase
Condition
Excellent
Condition of Facade
Good
Condition of Staircase
Good
Year of Construction
1970
Number of Bathrooms
1
Position
courtyard-facing
Water
Available
Electricity
Available
Sewer
Available
Storage
Shared
Rooms
open-plan kitchen and living room
21 m²
room
11 m²
room
10 m²
bathroom-toilet
4 m²
pantry
2 m²
entryway
2 m²
corridor
3 m²
Sovány Nóra
Credit Expert